Homepage Fill in Your Welder Performance Qualification Record Template
Table of Contents

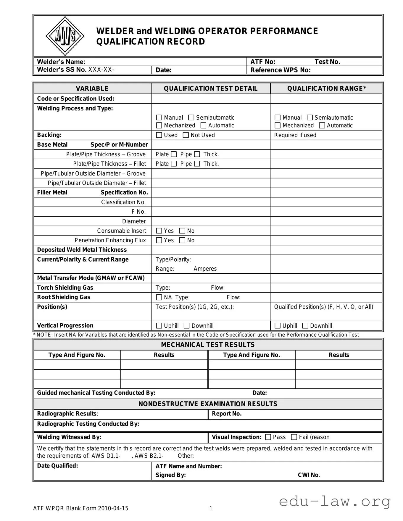
The Welder Performance Qualification Record (WPQR) form is a vital document that plays a significant role in the welding industry. It serves as an official record of a welder's qualifications, demonstrating their ability to perform specific welding tasks according to established standards. Each WPQR includes essential details such as the welder's name, identification numbers, and the reference Welding Procedure Specification (WPS) number. Additionally, it outlines the various welding processes employed, whether manual, semiautomatic, mechanized, or automatic. The form captures crucial variables, including base metal specifications, thickness, filler metal classifications, and the positions in which the welder is qualified to work. Furthermore, it documents the results of mechanical tests and non-destructive examinations, ensuring that the welds meet the required safety and quality standards. By providing a comprehensive overview of a welder's skills and the conditions under which they have been tested, the WPQR not only assures employers of a welder's capabilities but also enhances overall workplace safety and compliance with industry regulations.

Sample - Welder Performance Qualification Record Form

WELDER and WELDING OPERATOR PERFORMANCE

QUALIFICATION RECORD

 

Welder’s Name:

 

 

 

 

ATF No:

 

Test No.

 

Welder’s SS No. XXX-XX-

 

Date:

 

 

Reference WPS No:

 

 

 

 

 

 

 

 

 

 

 

 

 

 

VARIABLE

 

 

QUALIFICATION TEST DETAIL

 

 

QUALIFICATION RANGE*

 

 

Code or Specification Used:

 

 

 

 

 

 

 

 

 

 

 

 

 

 

 

 

 

 

 

 

 

 

 

 

 

Welding Process and Type:

 

 

 

 

 

 

 

 

 

 

 

 

 

 

 

 

Manual

Semiautomatic

 

 

Manual

 

Semiautomatic

 

 

 

 

 

Mechanized

Automatic

 

 

Mechanized

Automatic

 

 

 

 

 

 

 

 

 

 

 

Backing:

 

 

 

Used

Not Used

 

 

Required if used

 

 

 

 

 

 

 

 

 

 

 

 

 

 

 

Base Metal

Spec/P or M-Number

 

 

 

 

 

 

 

 

 

 

 

 

 

 

 

 

 

 

 

 

 

 

 

 

Plate/Pipe Thickness – Groove

 

Plate

Pipe

Thick.

 

 

 

 

 

 

 

 

 

 

 

 

 

 

 

 

 

 

 

 

 

Plate/Pipe Thickness – Fillet

 

Plate

Pipe

Thick.

 

 

 

 

 

 

 

 

 

 

 

 

 

 

 

 

 

 

 

 

Pipe/Tubular Outside Diameter – Groove

 

 

 

 

 

 

 

 

 

 

 

 

 

 

 

 

 

 

 

 

 

 

 

 

 

Pipe/Tubular Outside Diameter – Fillet

 

 

 

 

 

 

 

 

 

 

 

 

 

 

 

 

 

 

 

 

 

 

 

 

 

 

Filler Metal

Specification No.

 

 

 

 

 

 

 

 

 

 

 

 

 

 

 

 

 

 

 

 

 

 

 

 

 

 

 

Classification No.

 

 

 

 

 

 

 

 

 

 

 

 

 

 

 

 

 

 

 

 

 

 

 

 

 

 

 

F No.

 

 

 

 

 

 

 

 

 

 

 

 

 

 

 

 

 

 

 

 

 

 

 

 

 

 

 

Diameter

 

 

 

 

 

 

 

 

 

 

 

 

 

 

 

 

 

 

 

 

 

 

 

 

 

 

 

Consumable Insert

 

Yes

No

 

 

 

 

 

 

 

 

 

 

 

 

 

 

 

 

 

 

 

 

 

 

 

 

Penetration Enhancing Flux

 

Yes

No

 

 

 

 

 

 

 

 

 

 

 

 

 

 

 

 

 

 

 

 

 

 

Deposited Weld Metal Thickness

 

 

 

 

 

 

 

 

 

 

 

 

 

 

 

 

 

 

 

 

 

 

 

 

Current/Polarity & Current Range

 

Type/Polarity:

 

 

 

 

 

 

 

 

 

 

 

 

 

Range:

Amperes

 

 

 

 

 

 

 

 

 

 

 

 

 

 

 

 

 

 

 

 

Metal Transfer Mode (GMAW or FCAW)

 

 

 

 

 

 

 

 

 

 

 

 

 

 

 

 

 

 

 

 

 

 

 

 

Torch Shielding Gas

 

Type:

 

Flow:

 

 

 

 

 

 

 

 

 

 

 

 

 

 

 

 

 

 

Root Shielding Gas

 

NA Type:

Flow:

 

 

 

 

 

 

 

 

 

 

 

 

 

 

 

 

Position(s)

 

 

 

Test Position(s) (1G, 2G, etc.):

 

 

Qualified Position(s) (F, H, V, O, or All)

 

 

 

 

 

 

 

 

 

 

Vertical Progression

 

Uphill

Downhill

 

 

Uphill

Downhill

 

 

 

 

 

 

 

 

 

 

 

 

 

 

 

* NOTE: Insert NA for Variables that are identified as Non-essential in the Code or Specification used for the Performance Qualification Test

 

 

 

 

MECHANICAL TEST RESULTS

 

 

 

Type And Figure No.

 

 

Results

 

Type And Figure No.

Results

 

 

 

 

 

 

 

 

 

 

 

 

 

 

 

 

 

 

 

 

 

 

 

 

 

 

 

 

 

 

 

 

 

 

Guided mechanical Testing Conducted By:

 

Date:

 

 

 

 

 

 

 

 

 

 

 

 

 

NONDESTRUCTIVE EXAMINATION RESULTS

 

 

 

Radiographic Results:

 

 

 

Report No.

 

 

 

 

 

 

 

 

 

 

Radiographic Testing Conducted By:

 

 

 

 

 

 

 

 

 

 

 

 

 

 

 

 

 

 

 

 

 

Welding Witnessed By:

 

 

 

Visual Inspection: Pass

Fail (reason

)

 

 

 

 

 

We certify that the statements in this record are correct and the test welds were prepared, welded and tested in accordance with

 

the requirements of: AWS D1.1-

, AWS B2.1-

Other:

 

 

 

 

 

 

 

 

 

Date Qualified:

 

ATF Name and Number:

 

 

 

 

 

 

Signed By:

CWI No.

 

 

 

 

 

 

 

 

ATF WPQR Blank Form 2010-04-15

 

 

1

 

 

File Specs

Fact Name Details
Purpose The Welder Performance Qualification Record form is used to document a welder's qualifications and capabilities in various welding processes.
Welder Identification Each record includes essential information about the welder, such as their name, Social Security Number, and ATF number.
Test Information The form captures details about the specific test conducted, including test number and reference WPS number.
Welding Processes It specifies the type of welding process used, such as manual, semiautomatic, or automatic, and includes details on the backing used.
Qualification Range The record outlines the qualification range for various variables, including base metal specifications and thicknesses.
Mechanical Testing Results from mechanical tests are documented, including types of tests conducted and their outcomes.
Non-Destructive Examination It includes results from non-destructive examinations, such as radiographic testing, to verify weld integrity.
Certification The form requires certification by a Certified Welding Inspector (CWI) to validate the accuracy of the information provided.
State-Specific Forms Some states may have specific laws governing the use of this form, such as regulations under AWS D1.1 or AWS B2.1.

Welder Performance Qualification Record - Usage Guidelines

Completing the Welder Performance Qualification Record form requires careful attention to detail. Each section of the form must be filled out accurately to ensure that the welder's qualifications are properly documented. Follow the steps below to complete the form correctly.

  1. Enter the welder's name in the designated field.
  2. Fill in the ATF number and test number.
  3. Provide the welder's Social Security number in the specified format.
  4. Input the date of the qualification test.
  5. Reference the WPS number as required.
  6. Indicate the code or specification used for the qualification test.
  7. Choose the welding process and type, selecting from options like manual, semiautomatic, mechanized, or automatic.
  8. Specify if backing was used, and indicate if it was required.
  9. Document the base metal specification or P/M number.
  10. Fill in the plate or pipe thickness for both groove and fillet welds.
  11. List the outside diameter of the pipe or tubular for both groove and fillet welds.
  12. Provide the filler metal specification number and classification number.
  13. Indicate the filler metal diameter.
  14. Specify if a consumable insert was used.
  15. State if penetration enhancing flux was used.
  16. Document the deposited weld metal thickness.
  17. Input the current/polarity and current range, specifying the type and range in amperes.
  18. Identify the metal transfer mode used (e.g., GMAW or FCAW).
  19. Specify the torch shielding gas type and flow rate.
  20. Indicate the root shielding gas type and flow rate, if applicable.
  21. List the test positions (e.g., 1G, 2G) and the qualified positions (e.g., F, H, V, O, or All).
  22. Document the vertical progression method (uphill or downhill).
  23. For mechanical test results, enter the type and figure number along with the results.
  24. Record the name of the person who conducted the guided mechanical testing and the date it was conducted.
  25. Provide the radiographic results and report number.
  26. Document who conducted the radiographic testing and who witnessed the welding.
  27. Indicate the result of the visual inspection (pass or fail) and provide a reason if it failed.
  28. Certify the statements in the record by entering the date qualified, ATF name, and number.
  29. Have the form signed by the appropriate individual, including their CWI number.

Your Questions, Answered

What is a Welder Performance Qualification Record form?

The Welder Performance Qualification Record (WPQR) form is a document that certifies a welder's skills and qualifications. It captures essential details about the welder, the tests they have completed, and the results of those tests. This record serves as proof that the welder is capable of performing specific welding tasks according to industry standards.

Who needs to fill out the WPQR form?

The WPQR form must be completed by welders and welding operators who are seeking to demonstrate their qualifications. It is typically filled out after the welder has completed a performance qualification test, which assesses their ability to produce welds that meet specified standards.

What information is required on the WPQR form?

The WPQR form requires various details, including the welder's name, identification numbers, test number, reference Welding Procedure Specification (WPS) number, and the type of welding process used. Additionally, it includes specifics about the materials, thicknesses, and positions tested, as well as results from mechanical tests and non-destructive examinations.

What types of welding processes can be documented?

The WPQR form accommodates multiple welding processes, including manual, semiautomatic, mechanized, and automatic welding. It allows for a comprehensive understanding of the welder's capabilities across different techniques and applications.

What are the significance of the mechanical test results?

Mechanical test results are crucial as they provide evidence of the welder's ability to produce welds that can withstand various stresses and conditions. These results are obtained through guided mechanical testing and are essential for validating the welder's qualifications.

How is non-destructive examination conducted?

Non-destructive examination (NDE) involves testing the welds without damaging them to assess their integrity. This may include methods such as radiographic testing and visual inspections. The results of these examinations are documented on the WPQR form to ensure compliance with safety and quality standards.

What does it mean if a weld passes or fails visual inspection?

A pass in visual inspection indicates that the weld meets the specified criteria for quality and appearance, while a fail suggests that there are deficiencies that could compromise the weld's performance. The reasons for failure must be documented to guide corrective actions.

Who certifies the information on the WPQR form?

The information on the WPQR form is certified by a qualified individual, often a Certified Welding Inspector (CWI). Their signature confirms that the tests were conducted according to the relevant standards and that the information provided is accurate.

How long is the WPQR valid?

The validity of the WPQR may vary based on the specific codes or standards being followed. Generally, it remains valid as long as the welder continues to practice their skills and remains compliant with the relevant standards. Regular re-evaluation may be required to maintain qualification.

Common mistakes

  1. Incomplete Information: Failing to fill out all required fields can lead to delays or disqualification. Ensure every section is complete, especially the welder’s name, test number, and date.

  2. Incorrect WPS Reference: Using the wrong Welding Procedure Specification (WPS) number can invalidate the qualification. Double-check that the WPS number matches the test being performed.

  3. Missing Test Results: Not including the results from mechanical tests or non-destructive examinations can cause issues. Always document the results clearly and accurately.

  4. Improper Signatures: Ensure that all required signatures are present. Missing signatures from the Certified Welding Inspector (CWI) or other officials can lead to complications.

  5. Incorrect Specification Codes: Using the wrong code or specification can result in non-compliance. Verify that the code used aligns with the requirements of the project.

  6. Neglecting to Document Variables: Not indicating whether variables like backing or filler metal were used can lead to misunderstandings. Clearly mark these details as required.

  7. Failing to Review Before Submission: Skipping a final review can lead to unnoticed errors. Always take the time to review the form for accuracy before submission.

Documents used along the form

The Welder Performance Qualification Record form is an essential document that verifies a welder's skills and qualifications. However, several other forms and documents complement this record, providing a comprehensive view of a welder's capabilities and compliance with industry standards. Below is a list of five key documents often used alongside the Welder Performance Qualification Record.

  • Welding Procedure Specification (WPS): This document outlines the specific parameters and methods for welding a particular joint. It includes details such as the type of welding process, base materials, filler materials, and techniques to be used. The WPS serves as a guideline for welders to ensure consistency and quality in their work.
  • Procedure Qualification Record (PQR): The PQR is a record that demonstrates that a specific welding procedure meets the required standards. It includes the results of tests performed on welded samples, verifying that the procedure produces welds that meet the mechanical and structural requirements set forth in the applicable codes.
  • Certificate of Compliance: This certificate is issued to confirm that a welder or welding procedure complies with industry standards and regulations. It provides assurance to clients and regulatory bodies that the welding work meets necessary safety and quality benchmarks.
  • Non-Destructive Testing (NDT) Report: This report documents the results of tests performed to evaluate the integrity of welds without causing damage. Methods such as radiographic testing or ultrasonic testing are often used, and the report includes findings that help ensure the quality and safety of the welded structures.
  • Welder Certification: This document certifies that a welder has successfully completed training and passed tests to demonstrate their welding skills. Certification can be specific to certain processes, materials, or positions, and it is often required by employers to ensure that welders are qualified for the tasks they will undertake.

Each of these documents plays a vital role in ensuring that welding practices meet the necessary standards for safety and quality. By maintaining accurate records and certifications, both welders and employers can uphold industry integrity and foster trust with clients and regulatory agencies.

Similar forms

The Welder Performance Qualification Record (WPQR) is similar to the Welding Procedure Specification (WPS) document. Both forms are essential in the welding industry, serving as a foundation for ensuring quality and compliance. The WPS outlines the procedures and parameters for welding, such as the type of materials used, welding processes, and specific techniques. While the WPQR focuses on the qualifications of individual welders, the WPS provides the guidelines that those welders must follow to produce acceptable welds. Together, they ensure that both the process and the personnel meet industry standards.

Another document closely related to the WPQR is the Qualification Test Report (QTR). The QTR provides detailed results from the qualification tests conducted on welders. This includes information about the tests performed, the materials used, and the results obtained. While the WPQR serves as a record of a welder’s qualifications, the QTR offers a more in-depth look at the actual performance during testing. Both documents are vital for maintaining the integrity of welding operations and ensuring that welders are capable of performing to required standards.

The Welder’s Certification Card is also similar to the WPQR. This card serves as proof that a welder has successfully completed the necessary tests and is qualified to perform welding tasks. It typically includes the welder's name, certification number, and the types of welding they are certified for. While the WPQR details the qualifications and testing process, the certification card provides a quick reference for employers and clients to verify a welder's credentials. Together, they reinforce the welder's qualifications in the field.

Another related document is the Welding Inspection Report. This report is generated after a welding inspection is conducted and includes findings from visual inspections, non-destructive testing, and any other evaluations performed. The Welding Inspection Report assesses the quality of welds against the specifications outlined in the WPS. While the WPQR focuses on the qualifications of the welder, the inspection report evaluates the quality of their work, ensuring that all welding meets the required standards.

The Certificate of Compliance (CoC) is another document that bears similarity to the WPQR. A CoC verifies that a product or service meets specified standards and regulations. In the context of welding, it often accompanies welded components and confirms that they were produced in accordance with relevant codes and specifications. While the WPQR certifies the qualifications of the welder, the CoC provides assurance that the final product adheres to quality and safety standards.

The Welding Procedure Qualification Record (WPQR) is also akin to the Procedure Qualification Record (PQR). The PQR documents the results of tests performed to validate a specific welding procedure. This record includes details about the materials, welding processes, and mechanical properties of the welds produced. While the WPQR focuses on individual welder qualifications, the PQR emphasizes the testing of the welding procedure itself, ensuring that it is capable of producing sound welds under defined conditions.

The Non-Destructive Testing (NDT) Report is another document that shares similarities with the WPQR. This report details the results of various non-destructive tests conducted on welds to assess their integrity without causing damage. It may include results from radiographic, ultrasonic, or magnetic particle testing. While the WPQR certifies the qualifications of the welder, the NDT report evaluates the quality of the welds they produce, ensuring compliance with industry standards.

Lastly, the Welding Quality Control Plan (WQCP) is comparable to the WPQR. The WQCP outlines the procedures and measures in place to ensure quality control throughout the welding process. It includes details about inspection protocols, testing methods, and responsibilities of personnel involved in the welding operation. While the WPQR focuses on the qualifications of individual welders, the WQCP provides a comprehensive framework for maintaining quality and consistency across all welding activities.

Dos and Don'ts

When filling out the Welder Performance Qualification Record form, attention to detail is crucial. Here are six important dos and don’ts to ensure accuracy and compliance.

  • Do provide complete and accurate information for all required fields, including the welder’s name and ATF number.
  • Do use the correct reference WPS number to avoid discrepancies during qualification.
  • Do clearly indicate the welding process and type, ensuring it matches the specifications used.
  • Do include details about the base metal specifications and thickness accurately.
  • Don’t leave any fields blank unless specified as non-essential; this may lead to disqualification.
  • Don’t forget to sign and date the form, as this confirms the authenticity of the record.

Completing this form correctly can significantly impact the qualification process. Take the time to review all entries for accuracy and completeness.

Misconceptions

Understanding the Welder Performance Qualification Record (WPQR) form is crucial for welders and employers alike. However, several misconceptions often arise regarding its purpose and use. Here are ten common misconceptions about the WPQR form, along with clarifications:

  1. The WPQR form is only for certified welders. Many believe that only certified welders need this form. In reality, it is beneficial for all welders to have a record of their qualifications, regardless of certification status.
  2. Once completed, the WPQR form never needs to be updated. This is not true. The WPQR should be updated whenever a welder gains new qualifications or experiences changes in their welding processes or techniques.
  3. The WPQR is the same as a welding certification. While the WPQR documents the qualifications of a welder, it is not a certification itself. It serves as a record of the welder's skills and the tests they have passed.
  4. Only the welder needs to sign the WPQR form. This is a misconception. The form requires signatures from various parties, including the Certified Welding Inspector (CWI) and the organization conducting the testing.
  5. The WPQR form is only relevant for structural welding. Many people think the WPQR is limited to structural applications. However, it is applicable to various welding contexts, including pipe welding and manufacturing.
  6. All variables on the WPQR form are essential. Some users may assume that every variable listed on the form is critical. In fact, certain variables can be marked as non-essential, allowing for flexibility based on the specific code or specification used.
  7. The WPQR can be filled out by anyone. This is misleading. Only qualified personnel, such as a CWI, should complete and certify the WPQR to ensure accuracy and compliance with industry standards.
  8. The WPQR does not require any testing. Some believe that merely filling out the form is sufficient. In truth, the WPQR is based on actual performance tests that the welder must complete successfully.
  9. Visual inspection results are not important. This is incorrect. Visual inspection results are critical and must be documented on the WPQR, as they provide essential information about the quality of the welds.
  10. The WPQR is only needed for large projects. Many think that only large projects require a WPQR. However, it is a valuable tool for any welding job, regardless of size, to ensure quality and compliance.

By addressing these misconceptions, individuals can better understand the importance and proper use of the Welder Performance Qualification Record form, ultimately enhancing the quality and safety of welding practices.

Key takeaways

Filling out the Welder Performance Qualification Record form is an important step in documenting a welder's skills and qualifications. Here are some key takeaways to keep in mind:

  • Accurate Information: Ensure that all personal details, such as the welder's name and identification numbers, are filled out accurately to avoid any confusion later.
  • Reference WPS No: Always include the Welding Procedure Specification (WPS) number, as it serves as a guide for the qualifications being tested.
  • Qualification Range: Clearly define the qualification range, including the types of welding processes and materials used. This information is crucial for understanding the welder's capabilities.
  • Mechanical Test Results: Document the results of any mechanical tests conducted. These results validate the quality of the welds performed.
  • Non-Destructive Examination: Include results from non-destructive testing, such as radiographic tests. This step ensures that the weld integrity is maintained without damaging the material.
  • Visual Inspection: Record the outcome of visual inspections. A clear pass or fail status, along with reasons for failure, helps maintain transparency.
  • Certification: The form must be signed by a Certified Welding Inspector (CWI) or authorized individual, certifying that the information is correct and meets the necessary standards.
  • Test Positions: Indicate the test and qualified positions accurately. This ensures that the welder is qualified for the specific positions they will be working in.
  • Compliance with Standards: Ensure that all tests and qualifications comply with relevant codes and specifications, such as AWS D1.1 or AWS B2.1, to uphold industry standards.

By following these guidelines, you can effectively complete the Welder Performance Qualification Record form, which is essential for validating a welder's skills and ensuring quality in welding practices.