Homepage Fill in Your Swimming Pool Inspection Template
Table of Contents

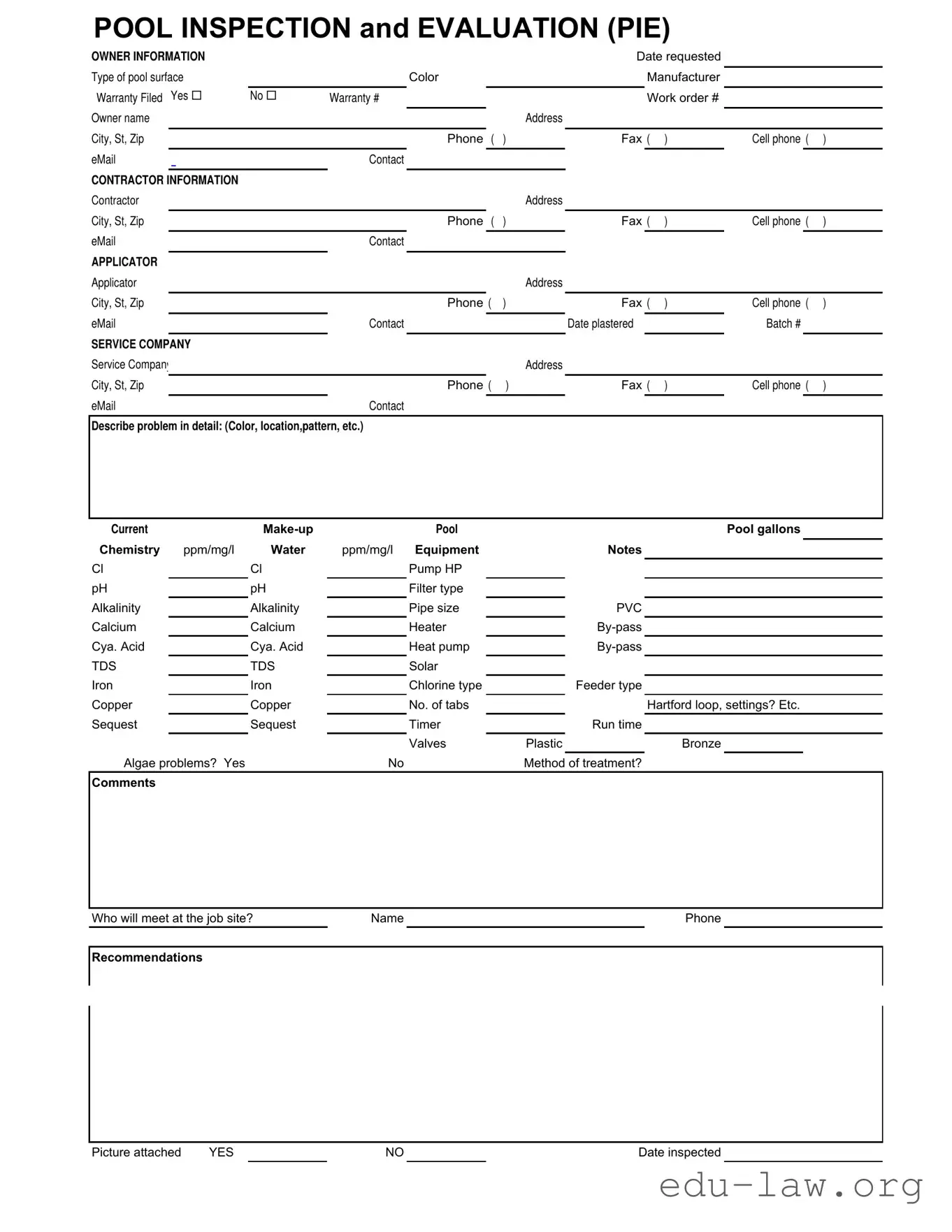
The Swimming Pool Inspection form is a vital tool for ensuring the safety and functionality of swimming pools. This comprehensive document collects essential information about the pool, including details about the owner, contractor, and service company involved. It captures the type of pool surface, its color, and manufacturer, alongside warranty information. The form also requires a thorough description of any issues, such as color discrepancies or patterns, which helps in diagnosing problems effectively. Additionally, it includes critical data on the pool's chemistry, equipment specifications, and maintenance practices. From the current water conditions to the type of chlorine used, every detail plays a role in the overall health of the pool. The form also prompts for recommendations and allows for the attachment of pictures, providing a complete picture of the pool's condition. This structured approach not only aids in immediate repairs but also supports long-term maintenance planning.

Sample - Swimming Pool Inspection Form

POOL INSPECTION and EVALUATION (PIE)

OWNER INFORMATION

 

 

 

 

 

 

 

 

 

Date requested

 

 

 

Type of pool surface

 

 

 

 

 

 

 

 

 

 

 

 

 

 

 

 

 

Color

 

 

 

 

 

Manufacturer

 

 

 

 

 

 

 

 

 

 

 

 

 

 

 

 

 

 

 

 

 

Warranty Filed Yes

No

Warranty #

 

 

 

 

 

Work order #

 

 

 

Owner name

 

 

 

 

 

 

 

Address

 

 

 

 

 

 

 

 

 

 

 

 

 

 

 

 

 

 

 

 

 

 

City, St, Zip

 

 

 

Phone (

)

 

 

Fax (

)

 

Cell phone (

)

 

 

 

 

 

 

 

 

 

 

 

 

 

 

 

 

 

eMail

 

Contact

 

 

 

 

 

 

 

 

 

 

 

 

 

 

 

 

 

 

 

 

 

 

 

 

 

 

 

 

 

 

CONTRACTOR INFORMATION

 

 

 

 

 

 

 

 

 

 

 

 

 

 

 

 

 

Contractor

 

 

 

 

 

 

 

Address

 

 

 

 

 

 

 

 

 

 

 

 

 

 

 

 

 

 

 

 

 

City, St, Zip

 

 

 

Phone (

)

 

 

Fax (

)

 

Cell phone (

)

 

 

 

 

 

 

 

 

 

 

 

 

 

 

 

 

 

eMail

 

Contact

 

 

 

 

 

 

 

 

 

 

 

 

 

 

 

 

 

 

 

 

 

 

 

 

 

 

 

 

 

 

APPLICATOR

 

 

 

 

 

 

 

 

 

 

 

 

 

 

 

 

 

Applicator

 

 

 

 

 

 

 

Address

 

 

 

 

 

 

 

 

 

 

 

 

 

 

 

 

 

 

 

 

 

City, St, Zip

 

 

 

Phone (

)

 

 

Fax (

)

 

Cell phone (

)

 

 

 

 

 

 

 

 

 

 

 

 

 

 

 

eMail

 

Contact

 

 

 

Date plastered

 

 

Batch #

 

 

 

 

 

 

 

 

 

 

 

 

 

 

 

 

 

 

 

 

SERVICE COMPANY

 

 

 

 

 

 

 

 

 

 

 

 

 

 

 

 

 

Service Company

 

 

 

 

 

 

 

Address

 

 

 

 

 

 

 

 

 

 

 

 

 

 

 

 

 

 

 

 

 

City, St, Zip

 

 

 

Phone (

)

 

 

Fax (

)

 

Cell phone (

)

 

 

 

 

 

 

 

 

 

 

 

 

 

 

 

 

eMail

 

Contact

 

 

 

 

 

 

 

 

 

 

 

Describe problem in detail: (Color, location,pattern, etc.)

Current

 

Make-up

 

Pool

 

 

 

 

 

Pool gallons

Chemistry

ppm/mg/l

Water

ppm/mg/l Equipment

 

 

Notes

 

 

 

 

 

 

 

 

 

 

Cl

 

Cl

 

Pump HP

 

 

 

 

 

 

 

 

pH

 

pH

 

Filter type

 

 

 

 

 

 

 

 

Alkalinity

 

Alkalinity

 

Pipe size

 

 

PVC

 

 

 

 

 

Calcium

 

Calcium

 

Heater

 

 

By-pass

 

 

 

 

 

Cya. Acid

 

Cya. Acid

 

Heat pump

 

 

By-pass

 

 

 

 

TDS

 

TDS

 

Solar

 

 

 

 

 

 

 

 

Iron

 

Iron

 

Chlorine type

 

 

Feeder type

 

 

 

 

Copper

 

Copper

 

No. of tabs

 

 

 

 

Hartford loop, settings? Etc.

Sequest

 

Sequest

 

Timer

 

 

Run time

 

 

 

 

 

 

 

 

 

Valves

Plastic

 

Bronze

 

 

Algae problems? Yes

 

No

Method of treatment?

 

 

 

 

Comments

 

 

 

 

 

 

 

 

 

 

 

 

 

 

 

 

 

 

 

 

 

 

 

 

 

Who will meet at the job site?

Name

 

Phone

Recommendations

Picture attached

YES

 

NO

 

Date inspected

File Specs

Fact Name Description
Purpose of the Form The Swimming Pool Inspection form is designed to evaluate the condition and safety of swimming pools. It helps ensure compliance with health and safety standards.
Owner Information This section collects essential details about the pool owner, including their contact information and the specifics of the pool itself.
Contractor and Applicator Details Information about the contractor and applicator is required. This includes their addresses and contact information, ensuring accountability and communication.
Service Company Role The service company’s information is crucial for ongoing maintenance and repairs. This section allows for tracking who is responsible for the pool's upkeep.
State-Specific Regulations Different states have unique laws governing pool inspections. For example, California's Health and Safety Code mandates specific inspection protocols to protect public health.

Swimming Pool Inspection - Usage Guidelines

Completing the Swimming Pool Inspection form is essential for ensuring a thorough evaluation of your pool. This form will help gather all necessary information for a comprehensive inspection. Follow the steps below to fill out the form accurately.

  1. Owner Information: Start by entering the date requested. Specify the type of pool surface and its color. Provide the manufacturer's name and indicate if the warranty has been filed, along with the warranty number and work order number.
  2. Owner Details: Fill in the owner's name, address (including city, state, and zip code), and contact information, including phone, fax, and cell phone numbers. Don't forget to include an email address.
  3. Contractor Information: Next, enter the contractor's name and address details, including city, state, and zip code. Include their contact phone, fax, and cell phone numbers, along with an email address.
  4. Applicator Information: Provide the applicator's name and address, including city, state, and zip code. Fill in their contact phone, fax, and cell phone numbers, as well as an email address.
  5. Date Plastered: Indicate the date the pool was plastered and the batch number.
  6. Service Company Information: Enter the name of the service company, along with their address, city, state, and zip code. Include their contact phone, fax, and cell phone numbers, as well as an email address.
  7. Problem Description: Describe the problem in detail, including specifics about color, location, and pattern.
  8. Current Pool Information: Fill in the pool's current makeup in gallons, along with chemistry readings for chlorine, pH, alkalinity, calcium, and total dissolved solids (TDS).
  9. Equipment Details: Provide information on the pump horsepower, filter type, pipe size, heater, and any other relevant equipment notes.
  10. Algae Problems: Indicate whether there are algae problems and specify the method of treatment if applicable.
  11. Comments: Write any additional comments that may be relevant to the inspection.
  12. Job Site Meeting: Specify who will meet at the job site, including their name and phone number.
  13. Recommendations: Note any recommendations and indicate whether a picture is attached.
  14. Date Inspected: Finally, enter the date of the inspection.

Your Questions, Answered

What is the purpose of the Swimming Pool Inspection form?

The Swimming Pool Inspection form, also known as the Pool Inspection and Evaluation (PIE), serves to document the condition and maintenance needs of a swimming pool. This form gathers essential information about the pool's surface, equipment, and any existing issues. By compiling this data, it aids both pool owners and contractors in understanding the current state of the pool and determining necessary repairs or maintenance actions.

What information is required from the pool owner?

The pool owner must provide several key details on the form. This includes their name, address, contact information, and specifics about the pool itself, such as its surface type and color. Additionally, the owner needs to indicate whether a warranty has been filed and provide the warranty number if applicable. This information helps establish ownership and ensures that the inspection is conducted under the correct context.

What details should be filled out by the contractor?

Contractor information is crucial for follow-up and accountability. The contractor's name, address, and contact details, including phone and email, should be included. This ensures that the pool owner can easily reach out for further discussions or to schedule necessary repairs. The contractor's role in the inspection process is vital, as they will often be the ones addressing any identified issues.

How do I describe the problem with my pool?

When detailing the problem, clarity is key. Describe the issue in as much detail as possible, including specific observations about color changes, locations of stains or damage, and any patterns that may be present. This descriptive approach enables the inspector to understand the situation better and address it effectively. Mentioning any previous treatments or maintenance performed can also provide valuable context.

What is included in the equipment notes section?

The equipment notes section requires information about various components of the pool system. This includes details on the pump's horsepower, filter type, and any additional features like heaters or solar systems. It may also involve noting the types of chemicals used, such as chlorine or acid. Providing this information helps the inspector assess the overall functionality and safety of the pool's equipment.

What happens after the inspection is completed?

Once the inspection is completed, the inspector will compile their findings and recommendations. These insights will be shared with the pool owner, often accompanied by photographs of any issues identified. The form may also include a section for the inspector's comments and recommendations for future maintenance or repairs. This documentation serves as a reference for both the owner and any contractors involved in subsequent work.

Who should be present at the job site during the inspection?

It is advisable for the pool owner or a designated representative to be present at the job site during the inspection. Their presence allows for immediate communication regarding any concerns or questions that may arise. Additionally, the inspector may require access to specific areas or equipment, making it beneficial to have someone available to facilitate this process. The form includes a section to specify who will be present, ensuring clear communication about expectations.

Common mistakes

When filling out the Swimming Pool Inspection form, it’s easy to make mistakes. Here are nine common errors to avoid:

  1. Incomplete Owner Information:

    Make sure to fill in all required fields, including name, address, and contact information. Missing details can lead to delays.

  2. Incorrect Pool Type:

    Double-check that the type of pool surface is accurately noted. This information is crucial for proper evaluation.

  3. Warranty Information:

    Ensure that the warranty status is clearly indicated. If there is a warranty, include the warranty number.

  4. Missing Contractor Details:

    Provide complete contact information for the contractor. Omitting this can complicate communication.

  5. Neglecting the Problem Description:

    Describe the problem in detail. Include specifics like color, location, and pattern. Vague descriptions can lead to misunderstandings.

  6. Overlooking Water Chemistry:

    Fill in all relevant water chemistry details, such as chlorine levels and pH. These readings are essential for proper pool maintenance.

  7. Equipment Information:

    List all equipment accurately, including pump size and filter type. Missing equipment details can hinder the inspection process.

  8. Failing to Attach Pictures:

    If pictures are required, ensure they are attached. Visuals can provide additional context for the inspector.

  9. Not Indicating Inspection Date:

    Always include the date of inspection. This helps in tracking and referencing the inspection history.

Avoiding these mistakes will help ensure a smooth inspection process. Take your time to review the form before submission.

Documents used along the form

The Swimming Pool Inspection form is an essential document for evaluating the condition and safety of a swimming pool. It is often accompanied by other forms and documents that provide additional context or necessary information. Below are some commonly used forms related to pool inspections.

  • Service Agreement: This document outlines the terms and conditions between the pool owner and the service company. It details the scope of work, payment terms, and responsibilities of both parties. A clear service agreement helps prevent misunderstandings regarding maintenance and repairs.
  • Maintenance Log: A maintenance log is used to track all maintenance activities performed on the pool. This includes routine cleaning, chemical balancing, and any repairs made. Keeping an accurate log can assist in identifying recurring issues and ensuring compliance with safety standards.
  • Warranty Information: This document provides details about the warranty coverage for the pool and its components. It includes information on what is covered, the duration of the warranty, and any necessary steps for filing a claim. Understanding warranty details can help pool owners make informed decisions about repairs and replacements.
  • Repair Estimate: A repair estimate outlines the anticipated costs associated with fixing identified issues during the inspection. It breaks down labor and material costs, providing transparency for the pool owner. This document is crucial for budgeting and planning future maintenance expenses.

Incorporating these documents alongside the Swimming Pool Inspection form can enhance the overall understanding of the pool's condition and facilitate better decision-making for maintenance and repairs. Each form serves a specific purpose, contributing to the effective management of pool safety and upkeep.

Similar forms

The Home Inspection Report is a document that shares similarities with the Swimming Pool Inspection form. Both forms are designed to assess the condition of a property, though the Home Inspection Report covers a broader range of areas, including structural integrity, electrical systems, and plumbing. Like the pool inspection, it requires detailed information about the property, such as the owner's name and contact details, as well as specific observations and recommendations. Both documents aim to inform the property owner of any issues that may require attention, ensuring safety and compliance with regulations.

The Vehicle Inspection Report parallels the Swimming Pool Inspection form in its purpose of evaluating safety and functionality. This report typically includes details about the vehicle's condition, such as the engine, brakes, and tires, much like how the pool inspection evaluates water chemistry and equipment. Both documents require specific data collection, including the date of inspection and the inspector's contact information. The goal is to identify any necessary repairs or maintenance, ensuring that both vehicles and pools are safe for use.

The HVAC Inspection Report is another document that shares key features with the Swimming Pool Inspection form. Both reports focus on the operational efficiency and safety of systems that are critical to comfort and health. The HVAC report assesses heating and cooling systems, detailing any issues or necessary repairs, similar to how the pool inspection evaluates water quality and equipment functionality. Each report includes a section for recommendations, helping owners understand what actions they need to take to maintain their systems.

A Pest Inspection Report is similar to the Swimming Pool Inspection form in that both documents are used to identify problems that could affect the safety and enjoyment of a property. The pest report typically includes information about any infestations and recommended treatments, while the pool inspection details water chemistry and equipment issues. Both forms require the inspector's contact information and the date of inspection, and they provide crucial insights for property owners to address potential hazards.

The Roof Inspection Report shares similarities with the Swimming Pool Inspection form, focusing on the condition and safety of a critical component of a property. Like the pool inspection, it requires detailed observations and notes about the condition of the roof, including any signs of damage or wear. Both documents aim to inform the property owner about necessary repairs or maintenance, ensuring the longevity and safety of the structure. Each report typically includes the inspector's contact information and recommendations for action.

The Electrical Inspection Report is another document that resembles the Swimming Pool Inspection form in its focus on safety and compliance. This report evaluates the electrical systems within a property, identifying any potential hazards or code violations. Similar to the pool inspection, it requires specific information about the property and the inspector, as well as detailed notes on the condition of the electrical components. Both documents serve to protect the property owner by highlighting issues that need to be addressed.

The Fire Safety Inspection Report is comparable to the Swimming Pool Inspection form in its goal of ensuring safety. This report assesses fire prevention measures, such as smoke detectors and fire extinguishers, while the pool inspection evaluates water quality and equipment. Both documents require detailed observations and recommendations, helping property owners understand what improvements or repairs are necessary to maintain safety standards. Each report also includes the inspector's contact details and the date of inspection.

The Asbestos Inspection Report shares important similarities with the Swimming Pool Inspection form, particularly in the context of health and safety. This report identifies the presence of asbestos in a property, detailing areas of concern and recommended actions for remediation. Like the pool inspection, it requires specific information about the property and the inspector, as well as a thorough evaluation of potential hazards. Both documents aim to protect the health of the occupants by identifying risks that need to be addressed.

The Lead-Based Paint Inspection Report is another document that parallels the Swimming Pool Inspection form. Both reports focus on identifying potential hazards within a property. The lead inspection assesses the presence of lead-based paint, especially in older homes, while the pool inspection evaluates water quality and equipment safety. Each report requires detailed observations and recommendations, providing property owners with the information they need to ensure a safe living environment.

Finally, the Environmental Assessment Report has similarities with the Swimming Pool Inspection form in terms of evaluating safety and compliance. This report examines environmental factors that may affect a property, such as soil contamination or water quality. Like the pool inspection, it requires detailed information about the property and the inspector, as well as specific observations and recommendations. Both documents serve to inform property owners about potential risks and necessary actions to maintain a safe environment.

Dos and Don'ts

When filling out the Swimming Pool Inspection form, it is essential to follow certain guidelines to ensure accuracy and completeness.

  • Do provide accurate owner information, including name, address, and contact details.
  • Do describe the problem in detail, noting specifics like color, location, and pattern.
  • Don't leave any sections blank unless they are not applicable to your situation.
  • Don't forget to attach any relevant pictures that may help in the evaluation.

Misconceptions

Misconceptions about the Swimming Pool Inspection form can lead to confusion and unnecessary delays. Here are nine common misunderstandings:

  1. All pools require the same inspection. Each pool is unique. The inspection process varies based on the type of pool, its surface, and other specific factors.
  2. The form is only for new pools. This form is essential for both new and existing pools. Regular inspections help maintain safety and compliance.
  3. Only the owner needs to fill out the form. While the owner provides key information, contractors and service companies also play a crucial role in the inspection process.
  4. Warranty information is optional. Providing warranty details is important. It helps determine coverage and responsibilities during the inspection.
  5. Problems can be described briefly. Detailed descriptions are necessary. The more information provided, the better the inspection team can address the issue.
  6. Once submitted, the form cannot be changed. Changes can be made if new information arises. It’s important to keep the inspection form updated.
  7. The inspection is only about water quality. Inspections assess various aspects, including equipment, structure, and safety features, not just water chemistry.
  8. Photos are not required. Including pictures can provide valuable context and help the inspection team understand the situation better.
  9. Inspection results are final and unchangeable. Recommendations can be revisited. If conditions change or new issues arise, further evaluations may be necessary.

Understanding these misconceptions can help ensure a smoother inspection process and promote safer swimming environments.

Key takeaways

Filling out the Swimming Pool Inspection form is an essential step for pool owners, contractors, and service companies. Here are some key takeaways to keep in mind:

  • Accurate Owner Information: Ensure that all owner details, including name, address, and contact information, are filled out correctly. This helps in maintaining clear communication throughout the inspection process.
  • Detailed Problem Description: When describing issues with the pool, be as specific as possible. Include details about color, location, and patterns. This clarity can significantly aid in diagnosing and resolving the problem.
  • Complete Contractor and Applicator Information: Providing comprehensive details about the contractor and applicator, such as their contact information, ensures accountability and facilitates follow-up if needed.
  • Thorough Chemistry Checks: Pay close attention to the chemistry section of the form. Record all relevant measurements like pH, alkalinity, and chlorine levels. These readings are crucial for maintaining a safe swimming environment.
  • Documentation and Recommendations: Attach any relevant pictures and include recommendations based on the inspection findings. This documentation can be invaluable for future reference and for any necessary repairs or adjustments.

By keeping these takeaways in mind, you can ensure that the Swimming Pool Inspection form is filled out effectively, leading to a smoother inspection process and better outcomes for your pool maintenance needs.