Homepage Fill in Your South Carolina Pt 401 Template
Table of Contents

The South Carolina PT-401 form is a crucial document for individuals and organizations seeking tax exemptions on various types of property within the state. This application must be completed by either the property owner or an authorized agent, ensuring that all relevant sections are filled out accurately to avoid delays in processing. Key details required on the form include the legal owner's information, property location, and specific exemptions being sought, whether for real estate or personal property. The form also necessitates supporting documentation, such as deeds, financial statements, and proof of eligibility for certain exemptions, particularly for veterans and nonprofit organizations. Understanding the classifications of exempt property, as outlined in South Carolina law, is essential for applicants. This includes exemptions for educational institutions, charitable organizations, and properties used for public purposes. By following the instructions closely and providing all necessary information, applicants can navigate the process more smoothly and potentially benefit from significant tax savings.

Sample - South Carolina Pt 401 Form

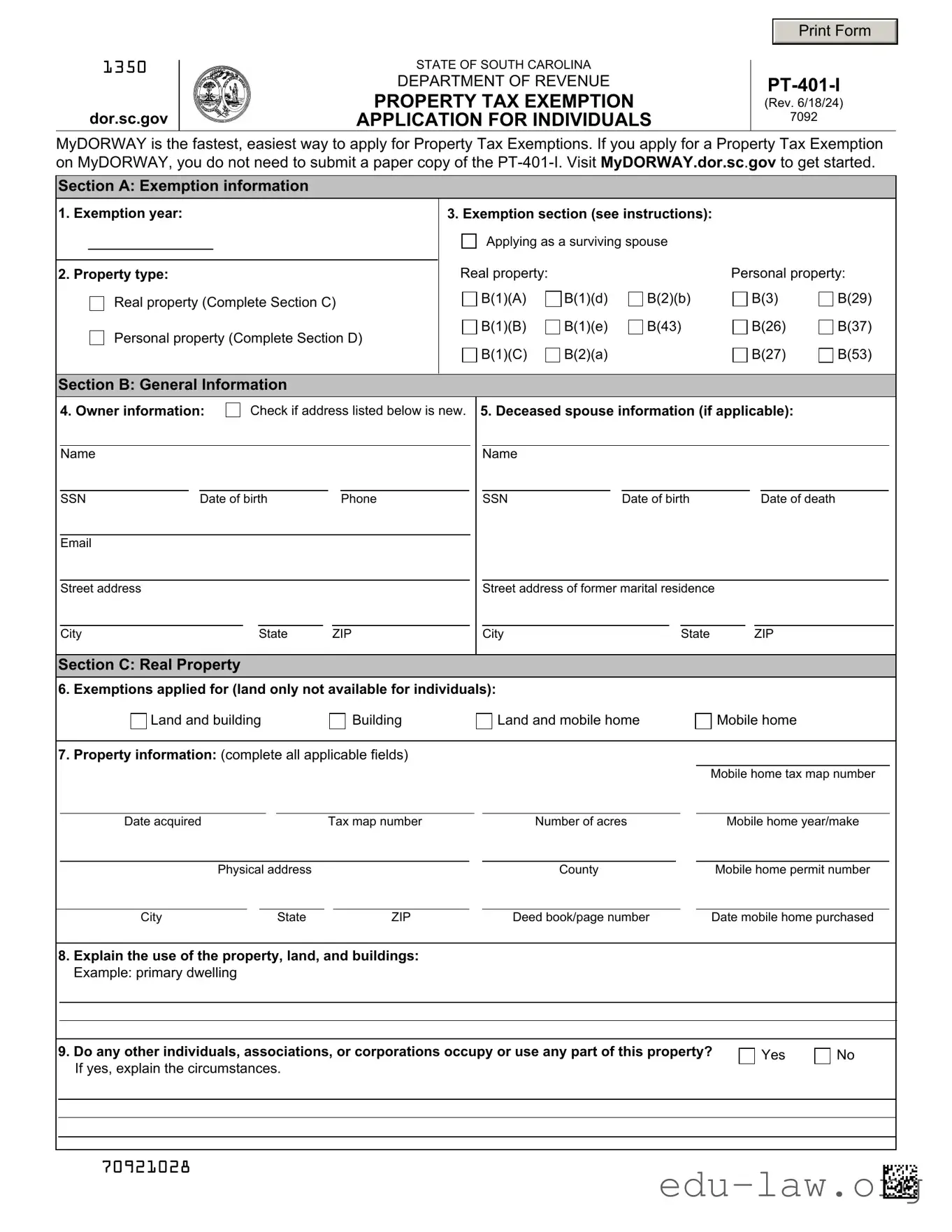
1350

dor.sc.gov

STATE OF SOUTH CAROLINA

DEPARTMENT OF REVENUE

PROPERTY TAX EXEMPTION

APPLICATION FOR INDIVIDUALS

Print Form

PT-401-I

(Rev. 6/18/24)

7092

MyDORWAY is the fastest, easiest way to apply for Property Tax Exemptions. If you apply for a Property Tax Exemption on MyDORWAY, you do not need to submit a paper copy of the PT-401-I. Visit MyDORWAY.dor.sc.gov to get started.

Section A: Exemption information

1. Exemption year:

 

 

 

 

 

 

 

 

 

 

 

3. Exemption section (see instructions):

 

 

 

 

 

 

 

 

 

 

 

 

 

 

 

 

 

 

 

 

 

 

 

 

 

 

 

 

 

 

 

 

 

 

Applying as a surviving spouse

 

 

 

 

 

 

 

 

 

 

 

 

 

 

 

 

 

 

 

 

 

 

 

 

 

 

 

 

 

 

 

 

 

 

 

 

 

 

 

 

 

 

 

 

 

 

 

 

 

 

 

 

 

 

 

 

 

 

 

Real property:

 

 

 

 

 

 

 

Personal property:

2. Property type:

 

 

 

 

 

 

 

 

 

 

 

 

 

 

 

 

 

 

 

 

 

 

 

Real property (Complete Section C)

 

 

 

B(1)(A)

 

 

 

B(1)(d)

 

 

 

B(2)(b)

 

 

 

 

B(3)

 

 

B(29)

 

 

 

 

 

 

 

 

 

 

 

 

 

 

 

 

 

 

 

 

 

 

 

 

 

 

 

 

 

 

 

 

 

 

 

 

 

 

 

 

 

 

 

 

 

 

 

 

 

 

 

 

 

 

 

Personal property (Complete Section D)

 

 

 

B(1)(B)

 

 

B(1)(e)

 

 

 

B(43)

 

 

 

 

B(26)

 

 

B(37)

 

 

 

 

 

 

 

 

 

 

 

 

 

 

 

 

 

 

 

 

 

 

 

 

 

 

 

 

 

 

 

 

 

 

 

 

 

 

 

 

 

 

 

 

 

B(1)(C)

 

 

B(2)(a)

 

 

 

 

 

 

 

 

 

 

B(27)

 

 

B(53)

 

 

 

 

 

 

 

 

 

 

 

 

 

 

 

 

 

 

 

 

 

 

 

 

 

 

 

 

 

 

 

 

 

 

 

 

 

 

 

 

 

 

 

 

 

 

 

 

 

 

 

 

 

 

 

 

 

 

 

 

 

 

 

 

 

 

 

 

 

 

 

 

 

 

 

 

 

 

 

 

 

 

 

 

 

 

 

 

 

 

 

 

 

 

 

 

 

 

 

 

 

 

 

 

 

 

 

 

 

 

 

 

 

 

 

 

 

 

 

 

 

 

 

 

 

 

 

 

 

 

 

 

 

 

Section B: General Information

 

 

 

 

 

 

 

 

 

 

 

 

 

 

 

 

 

 

 

 

 

 

 

 

 

 

 

 

 

 

 

 

4. Owner information:

 

 

 

Check if address listed below is new. 5. Deceased spouse information (if applicable):

 

 

 

 

 

 

 

 

 

 

 

 

 

 

 

 

 

 

 

 

 

 

 

 

 

 

 

 

 

 

 

 

 

 

 

 

 

 

 

 

 

 

 

 

 

 

 

 

 

 

Name

 

 

 

 

 

 

 

 

 

 

 

 

 

 

 

 

Name

 

 

 

 

 

 

 

 

 

 

 

 

 

 

 

 

 

 

 

 

 

 

 

 

 

 

 

 

 

 

 

 

 

 

 

 

 

 

 

 

 

 

 

 

 

 

 

 

 

 

 

 

SSN

Date of birth

Phone

 

 

 

 

SSN

 

Date of birth

 

 

 

 

Date of death

 

 

 

 

 

 

 

 

 

 

 

 

 

 

 

 

 

 

 

 

 

 

 

 

 

 

 

 

 

 

 

 

 

 

 

 

 

 

 

 

 

 

 

 

Email

 

 

 

 

 

 

 

 

 

 

 

 

 

 

 

 

 

 

 

 

 

 

 

 

 

 

 

 

 

 

 

 

 

 

 

 

 

 

 

 

 

 

 

 

 

 

 

 

 

 

 

 

 

 

 

 

 

 

 

 

 

 

 

 

 

 

 

 

 

 

 

 

 

Street address

 

 

 

 

 

 

 

 

 

 

 

 

 

 

Street address of former marital residence

 

 

 

 

 

 

 

 

 

 

 

 

 

 

 

 

 

 

 

 

 

 

 

 

 

 

 

 

 

 

 

 

 

 

 

 

 

 

 

 

 

 

 

 

 

 

City

 

 

 

 

 

State

ZIP

 

 

 

City

 

 

 

 

 

State

 

 

 

ZIP

 

 

Section C: Real Property

6. Exemptions applied for (land only not available for individuals):

 

 

 

 

Land and building

 

 

 

 

 

Building

 

 

Land and mobile home

 

 

Mobile home

 

 

 

 

 

 

 

 

 

 

 

 

 

 

 

 

 

 

 

 

 

 

 

 

 

 

 

 

 

 

 

 

 

 

 

 

 

 

 

 

 

 

 

 

 

 

 

 

 

 

7.

Property information: (complete all applicable fields)

 

 

 

 

 

 

 

 

 

 

 

 

 

 

 

 

 

 

 

 

 

 

 

 

 

 

 

 

 

 

 

 

 

 

 

 

Mobile home tax map number

 

 

 

 

 

 

 

 

 

 

 

 

 

 

 

 

 

 

 

 

 

 

 

 

 

 

 

 

Date acquired

 

 

Tax map number

 

 

Number of acres

 

 

Mobile home year/make

 

 

 

 

 

 

 

 

 

 

 

 

 

 

 

 

 

 

 

 

 

 

 

 

 

 

 

 

 

Physical address

 

 

 

 

 

 

 

 

County

 

 

Mobile home permit number

 

 

 

 

 

 

 

 

 

 

 

 

 

 

 

 

 

 

 

 

 

 

 

 

 

 

City

 

 

State

 

 

 

ZIP

 

 

Deed book/page number

 

Date mobile home purchased

 

 

 

 

 

 

 

 

 

 

 

 

 

 

 

 

 

 

 

 

 

 

 

 

 

 

 

 

8.

Explain the use of the property, land, and buildings:

 

 

 

 

 

 

 

 

 

 

 

 

 

 

 

 

 

Example: primary dwelling

 

 

 

 

 

 

 

 

 

 

 

 

 

 

 

 

 

 

 

 

 

 

 

 

 

 

 

 

 

 

 

 

 

 

 

 

 

 

 

 

 

 

 

 

 

 

 

 

 

 

 

 

 

 

 

 

 

 

 

 

 

 

 

 

 

 

 

 

 

 

 

 

 

 

 

 

 

 

 

 

 

 

 

 

 

 

 

 

 

 

 

 

 

 

 

 

 

 

 

 

 

 

 

 

 

 

 

 

 

 

9.

Do any other individuals, associations, or corporations occupy or use any part of this property?

 

 

Yes

 

No

 

 

 

 

 

If yes, explain the circumstances.

 

 

 

 

 

 

 

 

 

 

 

 

 

 

 

 

 

 

 

 

 

 

 

 

 

 

 

 

 

 

 

 

 

 

 

 

 

 

 

 

 

 

 

 

70921028

Section C: Real Property (cont'd)

10.

Do you receive any rent for this property?

 

 

 

 

 

 

 

 

Yes

 

No

If yes, from whom?

 

 

 

 

 

 

 

 

 

 

 

 

 

 

 

 

 

 

 

 

 

 

 

 

 

 

 

 

 

 

 

 

 

 

11.

Do you lease or rent this property?

 

 

 

 

 

 

 

 

 

 

Yes

 

 

No

If yes, from whom?

 

 

 

 

 

 

 

 

 

 

 

 

 

 

 

 

 

 

 

 

 

 

 

 

 

 

 

 

 

 

 

 

 

 

 

 

 

 

 

Section D: Personal Property

 

 

 

 

 

 

 

 

12.

Complete the chart below to apply for vehicle exemption:

 

 

 

 

 

Vehicle Identification Number

Type

 

Make

Year

Registered Owner

County of

 

 

 

Registration

 

 

 

 

 

 

 

 

 

 

 

 

 

 

 

 

 

 

 

 

 

 

 

 

 

 

 

 

 

 

 

 

 

 

 

 

 

 

 

13.

List any vehicles to be removed:

 

 

 

 

 

 

 

 

 

 

 

 

 

 

 

 

 

 

 

 

 

 

 

Vehicle Identification Number

Type

 

Make

Year

Registered Owner

County of

 

 

 

Registration

 

 

 

 

 

 

 

 

 

 

 

 

 

 

 

 

 

 

 

 

 

 

 

 

 

 

 

 

 

 

 

 

 

 

 

 

 

 

 

 

 

 

 

 

 

Section E: Declaration of Owner or Owner's Agent

I understand that a misstatement or concealment of fact in an application is sufficient grounds for the denial of this application for exemption. Under penalties of perjury, I declare and affirm that I have read and understood this form, and the information I have provided is true, correct, and complete.

Signature

 

Date

Important Reminders

·If you leave the Exemption year requested blank, it will default to the current year.

·Claims for exemptions must be received within two years from the date taxes were paid.

·If you are requesting refunds for two years, you must include the paid tax receipts.

·You will need to reapply if there is

oa change in status, or

oa change in ownership of previously exempted property

INSTRUCTIONS

MyDORWAY is the fastest, easiest way to apply for Property Tax Exemptions. If you apply for a Property Tax Exemption on MyDORWAY, you do not need to submit a paper copy of the PT-401-I.

Choose from one of the following ways to apply:

·If you don't have a MyDORWAY account, visit MyDORWAY.dor.sc.gov. Under Applications & Searches, click Exempt Property Application. On the next screen, select Request Individual Property Exemption.

·If you are able to create a MyDORWAY account, get started at dor.sc.gov/MyDORWAY-signup. You will need your SSN along with line 1 from your last Individual Income Tax return, your last refund amount, or a Letter ID.

·If you are not using MyDORWAY, mail your application to this address: SCDOR, Government Services Division, PO Box 125, Columbia, SC 29214-0720

·We also accept applications in person at any of our service centers. Visit dor.sc.gov/contact/in-person for location information and hours.

Questions? We're here to help. Email us at [email protected].

70922026

EXEMPTION SECTIONS:

Required documentation is listed for each exemption.

For more information, SC Code Sections are available at dor.sc.gov/policy.

Real Property (Land and Home) Exemptions for Individuals

B(1)(A) - Dwelling home of a veteran who is permanently and totally disabled as a result of a service-connected disability

A veteran who is totally and permanently disabled from a service-connected disability may apply for a Property Tax exemption for a dwelling home they own solely, in fee or for life, or jointly with a spouse. VA Rating decision letters do not meet requirements of law. Provide copies of the following:

·Certificate from VA or Local County Service Officer certifying total and permanent service-connected disability, with the effective date

·Recorded deed

·Documentation that the 4% special assessment ratio for an owner-occupied dwelling from the county assessor's office has been granted, either solely to the applicant or jointly with a spouse

·Your marriage certificate if the home is jointly titled with a spouse

·Title, bond for title, or bill of sale if the property is a mobile home

A surviving spouse may apply for this exemption for the dwelling home they solely own or acquired from the deceased spouse, as long as the spouse remains unmarried, resides in the house, and owns the house in fee or for life.

If you are applying as a surviving spouse, provide copies of the following:

·Documentation from the VA showing that you are the survivor of the veteran

·Form DD 1300, Report of Casualty, if you are applying as the surviving spouse of a soldier killed in action

·Veteran's death certificate

·Recorded deed of distribution, or last will and testament. If the home was solely owned by the surviving spouse prior to the deceased veteran's death, then a copy of the recorded deed is necessary.

·Documentation that the 4% special assessment ratio for an owner-occupied dwelling from the county assessor's office has been granted, solely to the applicant

·Title, bond for title, or bill of sale if the property is a mobile home

B(1)(B) - Dwelling home of a former law enforcement officer, who is permanently and totally disabled as a result of a law enforcement service-connected disability in South Carolina

A former law enforcement officer who is totally and permanently disabled as a result of their law enforcement service- connected disability may apply for a Property Tax exemption for a dwelling home they own solely, in fee or for life, or jointly with a spouse. Provide copies of the following:

·Documentation from commanding officer certifying that the applicant was totally and permanently disabled in the line of duty in South Carolina, with the effective date

·Final order issued by Workers’ Compensation Commission of total and permanent service-connected disability in South Carolina, with the effective date

·Recorded deed

·Documentation that the 4% special assessment ratio for an owner-occupied dwelling from the county assessor's office has been granted, either solely to the applicant or jointly with a spouse

·Your marriage certificate if the home is jointly titled with a spouse

·Title, bond for title, or bill of sale if the property is a mobile home

A surviving spouse may apply for this exemption for the dwelling home they solely own or acquired from the deceased spouse, as long as the spouse remains unmarried, resides in the house, and owns the house in fee or for life.

If you are applying as a surviving spouse, provide copies of the following:

·Documentation from commanding officer certifying that the South Carolina law enforcement officer was killed in the line of duty in South Carolina

·Officer's death certificate

·Recorded deed of distribution, or last will and testament. If the home was solely owned by the surviving spouse prior to the deceased veteran's death, then a copy of the recorded deed is necessary.

·Documentation that the 4% special assessment ratio for an owner-occupied dwelling from the county assessor's office has been granted, solely to the applicant

·Title, bond for title, or bill of sale if the property is a mobile home

B(1)(C) - Dwelling home of a former firefighter, including volunteer firefighter, who is permanently and totally disabled as a result of a firefighting service-connected disability in South Carolina

A former firefighter or volunteer firefighter who is totally and permanently disabled as a result of their firefighting service- connected disability may apply for a Property Tax exemption for a dwelling home they own in fee or for life, or jointly with a spouse. Provide copies of the following:

·Documentation from the fire department chief certifying the applicant was totally and permanently disabled in the line of duty in South Carolina, with the effective date

·Final order issued by Workers’ Compensation Commission of total and permanent service-connected disability in South Carolina, with the effective date

·Recorded deed

·Documentation that the 4% special assessment ratio for an owner-occupied dwelling from the county assessor's office has been granted, either solely to the applicant or jointly with a spouse

·Your marriage certificate if the home is jointly titled with a spouse

·Title, bond for title, or bill of sale if the property is a mobile home

A surviving spouse may apply for this exemption for the dwelling home they solely own or acquired from the deceased spouse, as long as the spouse remains unmarried, resides in the house, and owns the house in fee or for life.

If you are applying as a surviving spouse, provide copies of the following:

·Documentation from the fire department chief certifying that the South Carolina firefighter was killed in the line of duty in South Carolina

·Firefighter's death certificate

·Recorded deed of distribution, or last will and testament. If the home was solely owned by the surviving spouse prior to the deceased veteran's death, then a copy of the recorded deed is necessary.

·Documentation that the 4% special assessment ratio for an owner-occupied dwelling from the county assessor's office has been granted, solely to the applicant

·Title, bond for title, or bill of sale if the property is a mobile home

B(1)(d) - For the above B(1)(A), B(1)(B), and B(1)(C) Property held in trust

When a trustee holds the legal title to a dwelling for a beneficiary and the beneficiary qualifies for the exemption and uses the dwelling as their primary residence, the dwelling is exempt from property taxation. Provide copies of the following:

·The same documentation listed above for B(1)(A), B(1)(B), and B(1)(C)

·A copy of the signed trust agreement verifying the applicant is the income beneficiary

·Documentation that the beneficiary has been granted the 4% special assessment ratio for an owner-occupied dwelling from the county assessor's office

B(1)(e) - For the above B(1)(A), B(1)(B), and B(1)(C) Eligible ownership requirements

A person who owns an interest in a house and meets all other requirements of this item and is otherwise an eligible owner but for the ownership requirement is deemed to be an eligible owner so long as the county assessor certifies to the South Carolina Department of Revenue that the house is located on heirs' property and the person is the owner-occupied resident of the house. For purposes of this item, heirs' property has the same meaning as provided in Section 15-61-320. Provide copies of the following:

·The same documentation listed above for B(1)(A), B(1)(B), and B(1)(C)

·Certification from the county assessor's office that the house is located on heirs' property

·Documentation that the beneficiary has been granted the 4% special assessment ratio for an owner-occupied dwelling from the county assessor's office

B(2)(a) - Dwelling home of a paraplegic or hemiplegic person

A paraplegic or hemiplegic person may apply for a Property Tax exemption for a dwelling home and a lot up to one acre that they own solely or jointly with a spouse. For purposes of this exemption, "paraplegic" or "hemiplegic" includes a person with Parkinson's disease, Multiple Sclerosis, or Amyotrophic Lateral Sclerosis, which has caused the same ambulatory difficulties as a person with paraparesis or hemiparesis. Provide copies of the following:

·Signed physician’s statement on the physician’s letterhead certifying the paraplegic or hemiplegic condition OR certifying that the Parkinson's disease, Multiple Sclerosis, or Amyotrophic Lateral Sclerosis has caused the same ambulatory difficulties as mentioned above, including the effective date of ambulatory difficulties

·Recorded deed

·Documentation that the 4% special assessment ratio for an owner-occupied dwelling from the county assessor's office has been granted, either solely to the applicant or jointly with a spouse

·Your marriage certificate if the home is jointly titled with a spouse

·Title, bond for title, or bill of sale if the property is a mobile home

A surviving spouse may apply for this exemption for the dwelling home they acquired from the deceased spouse, as long as the spouse remains unmarried, resides in the house, and owns the house in fee or for life.

If you are applying as a surviving spouse, provide copies of the following:

·Former applicant's death certificate

·Recorded deed of distribution, or last will and testament

·Documentation that the 4% special assessment ratio for an owner-occupied dwelling from the county assessor's office has been granted, solely to the applicant

·Title, bond for title, or bill of sale if the property is a mobile home

B(2)(b) - For the above B(2)(a) Property held in trust

When a trustee holds the legal title to a dwelling for a beneficiary and the beneficiary qualifies for the exemption and uses the dwelling as their primary residence, the dwelling is exempt from property taxation. Provide copies of the following:

·The same documentation listed above for B(2)(a)

·A copy of the signed trust agreement verifying the applicant is the income beneficiary

·Documentation that the beneficiary has been granted the 4% special assessment ratio for an owner-occupied dwelling from the county assessor's office

B(43) - Dwelling home of a Medal of Honor or Prisoner of War recipient

A Medal of Honor recipient or Prisoner of War in World War I, World War II, the Korean Conflict, or the Vietnam Conflict may apply for a Property Tax exemption for a dwelling home and a lot up to one acre that they own solely or jointly with a spouse. Provide copies of the following:

·Certificate from VA or Local County Service Officer certifying you are a recipient of the Medal of Honor or that you were a Prisoner of War

·Recorded deed

·Documentation that the 4% special assessment ratio for an owner-occupied dwelling from the county assessor's office has been granted, either solely to the applicant or jointly with a spouse

·Your marriage certificate if the home is jointly titled with a spouse

·Title, bond for title, or bill of sale if the property is a mobile home

A surviving spouse may apply for this exemption for the dwelling home they solely own or acquired from the deceased spouse, as long as the spouse remains unmarried, resides in the house, and owns the house in fee or for life.

If you are applying as a surviving spouse, provide copies of the following:

·Documentation from the VA showing that you are the survivor

·Former POW or Medal of Honor recipient's death certificate

·Recorded deed of distribution, or last will and testament. If the home was solely owned by the surviving spouse prior to the deceased spouse's death, then a copy of the recorded deed is necessary.

·Documentation that the 4% special assessment ratio for an owner-occupied dwelling from the county assessor's office has been granted, solely to the applicant

·Title, bond for title, or bill of sale if the property is a mobile home

Personal Property (Vehicle) Exemptions for Individuals

Vehicles must be registered with the South Carolina Department of Motor Vehicles (SCDMV) before you apply for exemptions. If the vehicle is registered or purchased out of state, you must pay vehicle taxes up front. If the exemption is granted, the applicant may seek reimbursement from the county where the taxes were paid.

If you have previously been approved for an exemption and are adding or removing a vehicle, Veterans Administration (VA) documentation is not necessary.

If you are applying for a vehicle exemption, provide copies as defined for your specific exemption.

A marriage certificate must be provided for jointly titled vehicles. Prior to November 2018, this was not a requirement.

B(3) - Vehicle exemption for Disabled Veterans/Spouses

A veteran who is totally and permanently disabled from a service-connected disability may apply for a Property Tax exemption for two private passenger vehicles they own or lease. To qualify for the exemption, the vehicle must be registered solely in the name of the veteran, or jointly with a spouse. Provide copies of the following:

·Certificate from VA or Local County Service Officer certifying total and permanent service-connected disability, with the effective date

·South Carolina vehicle registration card; or South Carolina bill of sale; or South Carolina issued title

·Your marriage certificate if the vehicle is jointly titled with a spouse, or if the vehicle is solely in the spouse's name

·Vehicles titled solely in the spouse's name do not qualify until tax year 2024

B(3) - For the above B(3) Property held in trust

Effective tax year 2024, a trustee that holds the legal title to a vehicle for a beneficiary and the beneficiary qualifies for the exemption and uses this vehicle, the vehicle is exempt from property taxation. Provide copies of the following:

·The same documentation listed above for B(3)

·A copy of the fully executed trust agreement verifying the applicant is the income beneficiary

A surviving spouse may apply for this exemption for one vehicle they own or lease, for their lifetime or until their remarriage. Surviving spouses are allowed an exemption for only one vehicle.

If you are applying as a surviving spouse, provide copies of the following:

·Veteran's death certificate

·Documentation from the VA showing that you are the survivor of the veteran

·South Carolina vehicle registration card; or South Carolina bill of sale; or South Carolina issued title showing that you are the sole owner of the vehicle

B(26) - Vehicle exemption for Medal of Honor recipients

Medal of Honor recipients may apply for a Property Tax exemption for two private passenger vehicles that they own or lease. Provide copies of the following:

·Certificate from VA or Local County Service Officer certifying receipt of Medal of Honor

·South Carolina vehicle registration card; or South Carolina bill of sale; or South Carolina issued title

If you have previously been approved for this exemption and are adding or removing a vehicle, provide a copy of the South Carolina vehicle registration card; or South Carolina bill of sale; or South Carolina issued title.

B(27) - Vehicle exemption for persons required to use wheelchairs

Persons required to use a wheelchair may apply for a Property Tax exemption for two personal motor vehicles that they own or lease, either solely or jointly. Provide copies of the following:

·Signed physician’s statement on the physician’s letterhead certifying the required use of a wheelchair on a permanent basis, with effective date of permanent wheelchair use (must be from a South Carolina licensed physician)

·South Carolina vehicle registration card; or South Carolina bill of sale; or South Carolina issued title

B(29) - Vehicle exemption for Prisoner of War

A Prisoner of War (POW) in World War I, World War II, the Korean Conflict, or the Vietnam Conflict may apply for a Property Tax exemption for two private passenger vehicles (not exceeding three-quarters of a ton) that they own or lease. To qualify for the exemption, the vehicle must be registered solely in the name of the veteran, or jointly with a spouse. Provide copies of the following:

·Certificate from VA or Local County Service Officer certifying you were a Prisoner of War

·South Carolina vehicle registration card; or South Carolina bill of sale; or South Carolina issued title

·Your marriage certificate if the vehicle is jointly titled with a spouse

A surviving spouse may apply for this exemption for one vehicle they own or lease, for their lifetime or until their remarriage. Surviving spouses are allowed an exemption for only one vehicle.

If you are applying as a surviving spouse, provide copies of the following:

·Former POW's death certificate

·Documentation from the VA showing that you are the survivor of the qualified former POW

·South Carolina vehicle registration card; or South Carolina bill of sale; or South Carolina issued title showing that you are the sole owner of the vehicle

If you have previously been approved for this exemption and are adding or removing a vehicle, VA documentation is not necessary.

B(37) - Vehicle exemption for parent or legal guardian of a minor child who is blind or requires the use of a wheelchair

A parent or legal guardian of a minor who is blind or requires the use of a wheelchair may apply for a Property Tax exemption for one personal motor vehicle that they own or lease, provided the vehicle is used to transport the minor. Provide copies of the following:

·Signed physician’s statement on the physician’s letterhead certifying the minor is blind or required to use a wheelchair, with effective date (must be from a South Carolina licensed physician)

·The minor's original birth certificate showing parents' names, or court documentation of legal guardianship

·South Carolina vehicle registration card; or South Carolina bill of sale; or South Carolina issued title

If you have previously been approved for this exemption and are adding or removing a vehicle, documentation of legal guardianship and certification of the minor's disability is not necessary.

B(53) - Renewable energy resource exemption for solar panels

A property tax exemption for solar panels placed on the rooftops of residential homes. In order to qualify for the exemption, the solar panels system must be installed and running and cannot exceed 20 kilowatts.

Provide copies of the following:

·A table for assets owned as of December 31 of the preceding year

·Identify the items you are seeking the exemption for with the dates of acquisition, cost at acquisition, accumulated depreciation, and net values

File Specs

Fact Name Details
Form Purpose The PT-401 form is used to apply for property tax exemptions in South Carolina.
Eligibility Eligible applicants include property owners or their agents seeking exemptions for real property or vehicles.
Required Information Applicants must provide legal owner details, property location, and applicable SC Code sections.
Mailing Address Completed forms should be mailed to the South Carolina Department of Revenue, Property Division, Columbia, SC 29214-0303.
Governing Law The application is governed by South Carolina Code Section 12-37-220.
Supporting Documents Applicants must submit necessary documentation, such as deeds, vehicle registrations, and IRS letters.
Deadline Applications must be completed fully to avoid delays; incomplete applications will be returned.
Exemption Types Exemptions may apply to educational institutions, nonprofits, and certain disabled veterans.
Application Revision The current version of the PT-401 form was revised on May 20, 2009.

South Carolina Pt 401 - Usage Guidelines

Completing the South Carolina PT 401 form requires careful attention to detail. The form must be filled out completely to avoid delays in processing. It is essential to ensure that all required information is provided and that any necessary supporting documents are attached before submission.

  1. Begin by entering the legal owner's name, address, and either the Social Security number or Federal Identification number.
  2. Indicate the year(s) for which the exemption is being requested.
  3. If applying for an exemption for real property, specify the date the real estate was acquired.
  4. List the South Carolina code section relevant to the property.
  5. Identify the county where the property is located or registered.
  6. Provide the location of the property, if it differs from the mailing address.
  7. Enter the tax map number, which can be obtained from the county assessor.
  8. If requesting an exemption for real estate, check all applicable boxes.
  9. List the deed book and page number, also available from the county assessor.
  10. For vehicles, provide all requested information, including the Vehicle Identification Number (VIN), not the license tag number. Specify the type of vehicle (e.g., automobile, bus, etc.), along with the make and year.
  11. If applying for furniture and fixtures, attach a separate sheet detailing the item(s), date of acquisition, cost at acquisition, accumulated depreciation, and net value.

Once the form is completed, review it for accuracy and completeness. All necessary documents should be gathered and attached. The form can then be mailed to the South Carolina Department of Revenue, Property Division, at the specified address. It is advisable to keep a copy of the completed form and all attachments for personal records.

Your Questions, Answered

What is the South Carolina PT-401 form?

The South Carolina PT-401 form is the application for tax exemption on certain properties. This form must be completed by the property owner or an authorized agent. It allows individuals and organizations to apply for exemptions based on specific criteria set by the state, such as for educational institutions, charitable organizations, and certain veterans.

Who can apply for an exemption using the PT-401 form?

Eligible applicants include individuals, nonprofit organizations, and certain government entities. For example, schools, churches, and veterans with disabilities can apply. Each category has specific requirements, so it's important to review the criteria carefully before applying.

What information is required to complete the PT-401 form?

The form requires various details, including the legal owner's name, address, Social Security number or federal ID, and the year(s) for which the exemption is requested. Additional information about the property, such as the tax map number, deed book and page number, and location, is also needed. For vehicles, the Vehicle Identification Number (VIN) and other details must be provided.

Where do I send the completed PT-401 form?

Once you complete the PT-401 form, mail it to the South Carolina Department of Revenue, Property Division, located in Columbia, South Carolina. The address is 29214-0303. Make sure to check that all sections are filled out to avoid delays.

What happens if my application is incomplete?

If the PT-401 form is incomplete, it will be returned to you. This can lead to delays in processing your exemption request. It’s crucial to ensure that all required fields are filled out accurately before submitting the form.

What types of properties can be exempted?

Various properties can qualify for exemption, including real estate owned by educational institutions, churches, and nonprofit organizations. Additionally, certain vehicles owned by disabled veterans or individuals with specific disabilities may also be exempt. Each category has its own specific requirements and documentation needed.

What documents should I attach with my application?

Depending on the type of exemption you are applying for, you may need to attach several documents. Commonly required documents include the deed or title to the property, vehicle registration cards, IRS Determination Letters, and financial statements. Always check the specific requirements for your exemption category.

Can I apply for more than one exemption?

Yes, you can apply for multiple exemptions if you meet the criteria for each. However, you must complete a separate PT-401 form for each exemption you are applying for. Be sure to provide all necessary information and documentation for each application.

How long does it take to process the PT-401 application?

The processing time for the PT-401 application can vary. Once the form is submitted, it will be reviewed by the South Carolina Department of Revenue. If all information is complete and accurate, you can expect to receive a decision in a reasonable timeframe. However, delays can occur if additional information is needed.

Common mistakes

  1. Incomplete Information: One common mistake is leaving sections of the PT-401 form blank. Each section must be filled out completely. Incomplete applications will be returned, delaying the exemption process.

  2. Incorrect Identification Numbers: Applicants often provide the wrong Social Security Number or Federal Identification Number. Ensure that the numbers are accurate to avoid processing issues.

  3. Failure to Include Required Documentation: Many applicants forget to attach necessary documents, such as the deed or title to the property. Missing documents can lead to rejection of the application.

  4. Not Specifying the Correct Year: When indicating the year(s) for which the exemption is being requested, some people forget to specify. This can lead to confusion and delays in processing.

Documents used along the form

The South Carolina PT-401 form is essential for applying for property tax exemptions. Along with this form, several other documents and forms may be required to support the application. Below is a list of related documents commonly used in conjunction with the PT-401 form, along with brief descriptions of each.

  • IRS Determination Letter: This document confirms the tax-exempt status of an organization under Section 501(c)(3) of the Internal Revenue Code. It is often required for nonprofit entities seeking tax exemptions.
  • Articles of Incorporation: This is a legal document that establishes a corporation's existence in South Carolina. It includes essential details such as the corporation's name, purpose, and structure.
  • Bylaws: Bylaws outline the internal rules and procedures for an organization. They govern how the organization operates and are often required to demonstrate compliance with legal standards.
  • Financial Statements: These documents, including balance sheets and income statements, provide an overview of an organization's financial status. Typically, the most recent three years of audited financial statements are requested.
  • Deed or Title to Real Property: This document proves ownership of the property for which the exemption is being sought. It is crucial for establishing the eligibility of the property for tax exemption.
  • Lease Agreement: If applicable, this document outlines the terms under which property is leased. It is required when the exemption is sought for property leased to a government entity or nonprofit organization.

In summary, these documents complement the PT-401 form and are vital for ensuring a complete and accurate application for property tax exemptions in South Carolina. Proper preparation and submission of these forms can facilitate a smoother review process by the South Carolina Department of Revenue.

Similar forms

The South Carolina PT 401 form shares similarities with the IRS Form 1023, which is the application for recognition of exemption under Section 501(c)(3) of the Internal Revenue Code. Both documents require detailed information about the organization or property seeking exemption. For instance, both forms ask for identification details, including the legal name, address, and the nature of the property or organization. Additionally, both forms necessitate supporting documentation, such as articles of incorporation and financial statements, to demonstrate compliance with the respective exemption criteria. The thoroughness required in both applications underscores the importance of transparency and accountability in the exemption process.

Another document that bears resemblance to the PT 401 is the South Carolina Form ST-389, the Sales and Use Tax Exemption Certificate. Like the PT 401, the ST-389 requires applicants to provide detailed information about the entity applying for the exemption, including its legal name and address. Both forms also require applicants to specify the type of exemption sought, whether for property tax or sales tax. Furthermore, each form mandates the submission of supporting documentation, such as proof of the organization’s nonprofit status, to validate the exemption claim. This parallel reflects a common goal of ensuring that exemptions are granted only to qualifying entities.

The PT 401 form is also similar to the North Carolina Form AV-9, which is used to apply for property tax exemptions. Both forms require applicants to provide comprehensive information about the property or organization, including ownership details and the purpose for which the property is used. Each application mandates the inclusion of specific supporting documents, such as deeds or titles, to substantiate the claim for exemption. This consistency in documentation requirements across state lines highlights the shared objective of maintaining rigorous standards in the exemption process.

Lastly, the PT 401 form resembles the Massachusetts Form 3ABC, which is the application for property tax exemptions for charitable organizations. Both forms necessitate the completion of detailed sections regarding the organization’s operations, financial status, and the specific property for which exemption is sought. They also require applicants to submit various supporting documents, such as financial statements and proof of nonprofit status, to ensure compliance with exemption criteria. The similarities in these forms reflect a broader commitment to ensuring that tax exemptions are granted only to those entities that genuinely serve public interests.

Dos and Don'ts

When filling out the South Carolina PT-401 form for tax exemption, it is essential to follow specific guidelines to ensure a smooth application process. Here are five things you should and shouldn't do:

  • Do provide all required information, including your legal name, address, and identification numbers.
  • Do indicate the year(s) for which you are applying for the exemption.
  • Do check the applicable boxes for the type of exemption you are seeking.
  • Don't leave any sections blank; incomplete applications will be returned.
  • Don't forget to attach any necessary documentation, such as property deeds or IRS letters, as specified in the instructions.

Misconceptions

  • Misconception 1: The PT-401 form can be submitted without all required information.
  • In reality, every section of the form must be completed. Incomplete applications will be returned, delaying the process.

  • Misconception 2: Only the property owner can submit the application.
  • An agent can also submit the application on behalf of the owner, provided they have the necessary authorization.

  • Misconception 3: The form is only for real estate exemptions.
  • The PT-401 form applies to various types of property, including vehicles and personal property, as specified in the instructions.

  • Misconception 4: There is no deadline for submitting the PT-401 form.
  • Timely submission is crucial. Late applications may not be considered for the current tax year.

  • Misconception 5: All properties owned by nonprofit organizations automatically qualify for exemption.
  • Each property must meet specific criteria outlined in the form, and proper documentation must be provided.

  • Misconception 6: The vehicle identification number (VIN) is the same as the license tag number.
  • This is incorrect. The VIN is a unique identifier for the vehicle, separate from the license tag number.

  • Misconception 7: Only certain types of organizations can apply for exemptions.
  • While specific organizations are eligible, many types of entities can apply, including schools, libraries, and charities.

  • Misconception 8: The PT-401 form does not require supporting documents.
  • Supporting documents are essential. These may include deeds, registration cards, and financial statements, depending on the exemption type.

Key takeaways

  • Ensure that all sections of the PT-401 form are completed accurately. Incomplete applications will be returned, which can delay the exemption process.

  • Provide necessary documentation along with the application. This includes deeds, vehicle registration, and financial statements, depending on the type of exemption being requested.

  • Identify the specific exemption category that applies to your property. Different classifications have unique requirements and documentation needs.

  • Mail the completed application to the South Carolina Department of Revenue, Property Division, to the specified address. Make sure to keep a copy for your records.