Homepage Fill in Your Npma33 Template
Table of Contents

The NPMA-33 form is an essential tool for anyone involved in real estate transactions, particularly when it comes to understanding the condition of a property regarding wood-destroying insects. This inspection report provides a thorough overview of the findings from a visual inspection conducted by a qualified pest control professional. Key details captured include the inspection date, the company’s licensing information, and the property address, ensuring all parties are informed. The report outlines the presence or absence of wood-destroying insects, such as termites and carpenter ants, and highlights any visible damage or signs of infestation. It also includes recommendations for treatment if necessary, while clarifying that the inspection does not guarantee the absence of future infestations. Importantly, the NPMA-33 form addresses limitations, emphasizing that certain areas may be inaccessible, which could impact the findings. Homeowners and buyers alike should pay close attention to this document, as it not only serves as a record of the inspection but also offers guidance on maintaining a pest-free environment. Understanding the nuances of the NPMA-33 can empower individuals to make informed decisions about their property investments.

Sample - Npma33 Form

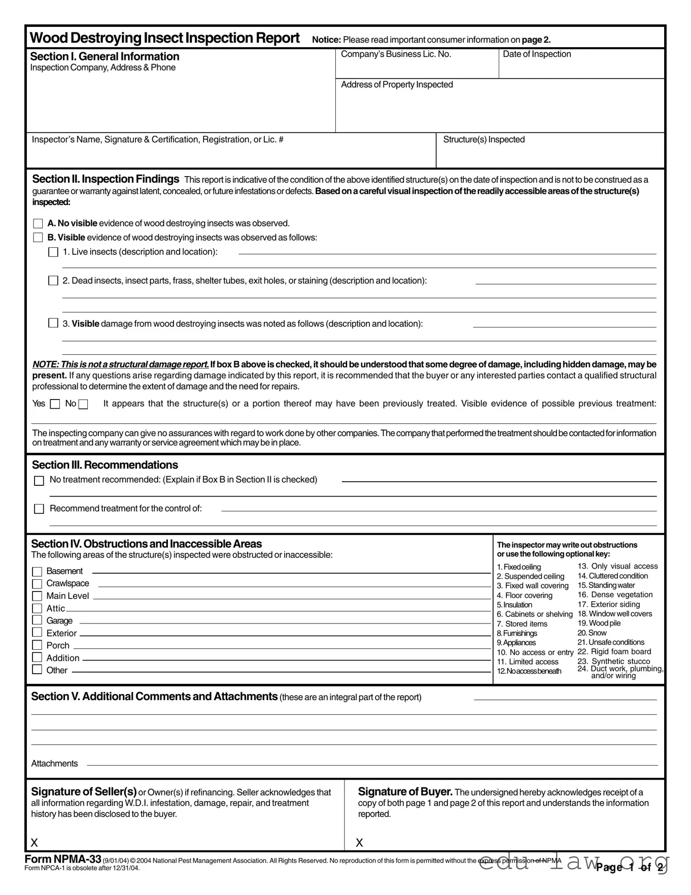
Wood Destroying Insect Inspection Report

Notice: Please read important consumer information on page 2.

Section I. General Information

 

Company’s Business Lic. No.

Date of Inspection

Inspection Company, Address & Phone

 

 

 

 

 

 

 

 

 

 

 

Address of Property Inspected

 

 

 

 

 

 

Inspector’s Name, Signature & Certification, Registration, or Lic. #

 

 

Structure(s) Inspected

 

 

 

 

 

Section II. Inspection Findings This report is indicative of the condition of the above identified structure(s) on the date of inspection and is not to be construed as a guarantee or warranty against latent, concealed, or future infestations or defects. Based on a careful visual inspection of the readily accessible areas of the structure(s) inspected:

A. No visible evidence of wood destroying insects was observed.

B. Visible evidence of wood destroying insects was observed as follows:

1. Live insects (description and location):

2. Dead insects, insect parts, frass, shelter tubes, exit holes, or staining (description and location):

3. Visible damage from wood destroying insects was noted as follows (description and location):

NOTE: This is not a structural damage report. If box B above is checked, it should be understood that some degree of damage, including hidden damage, may be present. If any questions arise regarding damage indicated by this report, it is recommended that the buyer or any interested parties contact a qualified structural professional to determine the extent of damage and the need for repairs.

Yes

 

No

 

It appears that the structure(s) or a portion thereof may have been previously treated. Visible evidence of possible previous treatment:

The inspecting company can give no assurances with regard to work done by other companies. The company that performed the treatment should be contacted for information on treatment and any warranty or service agreement which may be in place.

Section III. Recommendations

No treatment recommended: (Explain if Box B in Section II is checked)

Recommend treatment for the control of:

 

Section IV. Obstructions and Inaccessible Areas

 

 

 

The inspector may write out obstructions

 

The following areas of the structure(s) inspected were obstructed or inaccessible:

 

 

 

or use the following optional key:

 

 

 

Basement

 

 

 

 

 

1.Fixedceiling

13. Only visual access

 

 

 

 

 

 

 

 

 

 

 

 

 

2. Suspended ceiling

14. Cluttered condition

 

 

 

 

 

 

 

 

 

 

 

Crawlspace

 

 

 

 

 

 

 

 

 

 

 

 

 

 

 

3. Fixed wall covering

15. Standing water

 

 

 

 

 

 

 

 

 

 

 

 

 

 

 

 

 

 

 

 

 

Main Level

 

 

 

 

4. Floor covering

16. Dense vegetation

 

 

 

 

 

 

Attic

 

 

 

 

 

 

 

 

 

 

 

5.Insulation

17. Exterior siding

 

 

 

 

 

 

 

 

 

 

 

 

 

 

 

 

 

 

 

 

 

 

 

 

 

 

 

 

 

 

 

 

 

6. Cabinets or shelving

18. Window well covers

 

 

 

Garage

 

 

 

 

 

 

 

 

 

 

 

 

 

 

 

 

 

 

 

 

 

 

 

 

 

 

 

 

 

 

 

 

7. Stored items

19. Wood pile

 

 

 

 

 

 

 

 

 

 

 

 

 

Exterior

 

 

 

 

 

8.Furnishings

20.Snow

 

 

 

Porch

 

 

 

 

 

 

 

 

 

9.Appliances

21. Unsafe conditions

 

 

 

 

 

 

 

 

 

 

 

 

Addition

 

 

 

 

 

 

 

10. No access or entry 22. Rigid foam board

 

 

 

 

 

 

 

 

 

 

 

 

 

 

 

 

 

 

 

 

 

11. Limited access

23. Synthetic stucco

 

 

 

 

 

 

 

 

 

 

 

 

 

 

 

 

 

 

 

 

 

 

 

 

 

 

 

 

 

 

 

 

 

 

 

 

 

Other

 

 

 

 

12.Noaccessbeneath

24. Duct work, plumbing,

 

 

 

 

 

 

 

 

 

and/or wiring

 

 

 

 

 

 

 

 

 

 

 

 

 

 

 

 

 

Section V. Additional Comments and Attachments (these are an integral part of the report)

 

 

 

 

 

 

 

 

 

 

 

 

 

 

 

 

 

 

 

 

 

 

 

 

 

 

 

 

 

 

 

 

 

 

 

 

 

 

 

 

 

 

 

 

 

 

 

 

 

 

 

 

 

 

 

 

 

Attachments

 

 

 

 

 

 

 

 

 

 

 

 

 

 

 

 

 

 

 

 

 

 

 

 

Signature of Seller(s) or Owner(s) if refinancing. Seller acknowledges that

Signature of Buyer. The undersigned hereby acknowledges receipt of a

 

all information regarding W.D.I. infestation, damage, repair, and treatment

copy of both page 1 and page 2 of this report and understands the information

 

history has been disclosed to the buyer.

reported.

 

 

 

X

X

 

 

 

Form NPMA-33(9/01/04) © 2004 National Pest Management Association. All Rights Reserved. No reproduction of this form is permitted without the express permission of NPMA

Page 1 of 2

Form NPCA-1 is obsolete after 12/31/04.

Important Consumer Information Regarding

the Scope and Limitations of the Inspection

Please read this entire page as it is part of this report. This report is not a guarantee or warranty as to the absence of wood destroying insects nor is it a structural integrity report. The inspector’s training and experience do not qualify the inspector in damage evaluation or any other building construction technology and/or repair.

1.About the Inspection: A visual inspection was conducted in the readily accessible areas of the structure(s) indicated (see Page 1) including attics and crawlspaces which permitted entry during the inspection. The inspection included probing and/or sounding of unobstructed and accessible areas to determine the presence or absence of visual evidence of wood destroying insects. The WDI inspection firm is not responsible to repair any damage or treat any infestation at the structure(s) inspected, except as may be provided by separate contract. Also, wood destroying insect infestation and/or damage may exist in concealed or inaccessible areas. The inspection firm cannot guarantee that any wood destroying insect infestation and/or damage disclosed by this inspection represents all of the wood destroying insect infestation and/or damage which may exist as of the date of the inspection.Forpurposesofthisinspection,wooddestroyinginsectsinclude:termites,carpenterants,carpenterbees,and reinfestingwoodboringbeetles.Thisinspectiondoesnotincludemold,mildewornoninsectwooddestroyingorganisms. This report shall be considered invalid for purposes of securing a mortgage and/or settlement of property transfer if not used within ninety (90) days from the date of inspection. This shall not be construed as a 90-day warranty. There is no warranty, express or implied, related to this report unless disclosed as required by state regulations or a written warranty or service agreement is attached.

2.Treatment Recommendation Guidelines Regarding Subterranean Termites: FHA and VA require treatment when any active infestation of subterranean termites is found. If signs of subterranean termites — but no activity — are found in a structure that shows no evidence of having been treated for subterranean termites in the past, then a treatment should be recommended. A treatment may also be recommended for a previously treated structure showing evidence of subterranean termites — but no activity — if there is no documentation of a liquid treatment by a licensed pest control company within the previous five years unless the structure is presently under warranty or covered by a service agreement with a licensed pest control company.

3.Obstructions and Inaccessible Areas: No inspection was made in areas which required the breaking apart or into, dismantling,

removal of any object, including but not limited to: moldings, floor coverings, wall coverings, siding, fixed ceilings, insulation, furniture, appliances, and/or personal possessions; nor were areas inspected which were obstructed or inaccessible for physical access on the date of inspection. Your inspector may write out inaccessible areas or use the key in Section IV. Crawl spaces, attics, and/or other areas may be deemed inaccessible if the opening to the area is not large enough to provide physical access for the inspector or if a ladder was required for access. Crawl spaces (or portions thereof) may also be deemed inaccessible if there is less than 24 inches of clearance from the bottom of the floor joists to the surface below. If any area which has been reported as inaccessible is made accessible, the inspection company may be contacted for another inspection. An additional fee may apply.

4.Consumer Maintenance Advisory Regarding Integrated Pest Management for Prevention of Wood Destroying Insects. Any structure can be attacked by wood destroying insects. Homeowners should be aware of and try to eliminate conditions which promote insect infestation in and around their structure(s). Factors which may lead to wood destroying insect infestation include: earth to wood contact, foam insulation at foundation in contact with soil, faulty grade, improper drainage, firewood against structure(s), insufficient ventilation, moisture, wood debris in crawlspace, wood mulch or ground cover in contact with the structure, tree branches touching structure(s), landscape timbers and wood decay. Should these or other conditions exist, corrective measures should be taken in order to reduce the chances of infestation of wood destroying insects and the need for treatment.

5.Neither the inspecting company nor the inspector has had, presently has, or contemplates having any interest in the property inspected.

Form NPMA-33(9/01/04) © 2004 National Pest Management Association. All Rights Reserved. No reproduction of this form is permitted without the express permission of NPMA

Page 2 of 2

Form NPCA-1 is obsolete after 12/31/04.

 

File Specs

Fact Name Details
Purpose The NPMA-33 form is used for documenting wood-destroying insect inspections.
Inspection Scope The inspection is a visual assessment of accessible areas and does not guarantee the absence of infestations.
Obstructions The inspector does not check areas that are obstructed or inaccessible on the inspection date.
Consumer Advisory Homeowners are advised to maintain conditions to prevent wood-destroying insect infestations.
Limitations This report is not a structural integrity report and does not cover mold or non-insect wood-destroying organisms.
State Regulations Specific laws may apply depending on the state where the inspection is conducted.
Validity Period The report is valid for 90 days from the date of inspection for mortgage and property transfer purposes.

Npma33 - Usage Guidelines

Filling out the NPMA-33 form is straightforward. This form provides important information regarding a wood-destroying insect inspection. Ensure you have all necessary details ready before starting.

  1. Begin with Section I. General Information. Fill in the Company’s Business License Number, Date of Inspection, Inspection Company Name, Address & Phone Number, and the Address of Property Inspected.
  2. Next, write the Inspector’s Name, and include their Signature along with Certification, Registration, or License Number.
  3. Specify the Structure(s) Inspected in the designated area.
  4. Move to Section II. Inspection Findings. Indicate whether there was No visible evidence of wood-destroying insects or if there was Visible evidence observed.
  5. If you checked Visible evidence, provide details in the subsections:
    • 1. Describe any Live insects found, including their location.
    • 2. Note any Dead insects, insect parts, frass, shelter tubes, exit holes, or staining, including location.
    • 3. Describe any Visible damage from wood-destroying insects, including location.
  6. Indicate if the structure may have been previously treated. Provide visible evidence of possible previous treatment if applicable.
  7. In Section III. Recommendations, state if No treatment is recommended or recommend treatment for control, if needed.
  8. Proceed to Section IV. Obstructions and Inaccessible Areas. List any areas that were obstructed or inaccessible during the inspection.
  9. In Section V. Additional Comments and Attachments, add any further comments or attach necessary documents.
  10. Finally, have the Seller(s) or Owner(s) sign if refinancing, and ensure the Buyer acknowledges receipt of the report.

Your Questions, Answered

What is the NPMA-33 form?

The NPMA-33 form is a Wood Destroying Insect Inspection Report. It is used to document the findings of an inspection conducted on a property to identify any evidence of wood-destroying insects, such as termites or carpenter ants. The form provides important information about the condition of the property at the time of inspection and outlines any visible evidence of infestation or damage.

What does the inspection cover?

The inspection includes a visual assessment of readily accessible areas of the property, including attics and crawlspaces. The inspector looks for signs of wood-destroying insects and may probe or sound unobstructed areas to determine the presence of any infestations. However, the inspection does not include areas that are concealed or inaccessible, and the inspector cannot guarantee the absence of wood-destroying insects or damage.

What should I do if the report indicates evidence of wood-destroying insects?

If the report shows visible evidence of wood-destroying insects, it is advisable to contact a qualified pest control professional for further evaluation and potential treatment. The report may also recommend treatment for control, depending on the findings. It is important to address any infestations promptly to prevent further damage.

Is the NPMA-33 form a warranty or guarantee?

No, the NPMA-33 form is not a warranty or guarantee against future infestations or structural damage. It is a report based on a visual inspection conducted on the date specified. The form clearly states that it does not provide assurance regarding latent or concealed infestations or defects.

What if the inspection reveals inaccessible areas?

If certain areas of the property were inaccessible during the inspection, these will be noted on the form. The inspector may provide a list of obstructions or inaccessible areas. If access to these areas is later obtained, the inspection company can be contacted for a follow-up inspection, which may incur an additional fee.

What are the limitations of the NPMA-33 inspection?

The inspection is limited to visual observations and does not include structural evaluations or assessments of damage. The inspector’s training does not qualify them to evaluate damage or provide repair recommendations. Additionally, the inspection cannot cover areas that require dismantling or moving objects, which may conceal infestations.

How long is the NPMA-33 form valid?

The NPMA-33 form is valid for 90 days from the date of inspection for purposes of securing a mortgage or property transfer. After this period, the report is considered invalid, and it does not serve as a warranty for the property.

What consumer maintenance advice is provided in the report?

The report includes consumer maintenance recommendations aimed at preventing wood-destroying insect infestations. Homeowners are advised to eliminate conditions that may promote infestations, such as ensuring proper drainage, maintaining ventilation, and avoiding wood-to-soil contact. Taking preventive measures can help reduce the risk of future infestations.

Common mistakes

  1. Incomplete Information: Failing to fill out all required fields can lead to delays or complications. Ensure that every section, including company details and inspector information, is complete.

  2. Incorrect Dates: Entering the wrong date of inspection can create confusion. Always double-check the date before submitting the form.

  3. Mislabeling Findings: Misclassifying findings in Section II can lead to misunderstandings. Clearly indicate whether evidence of wood destroying insects was observed or not.

  4. Ignoring Obstructions: Not noting any obstructions or inaccessible areas can result in an incomplete inspection report. Be thorough in documenting any limitations encountered during the inspection.

  5. Missing Signatures: Forgetting to obtain the necessary signatures from the seller or buyer can invalidate the report. Ensure all required parties sign before submission.

  6. Neglecting Attachments: Failing to include necessary attachments or additional comments can leave important information out. Always attach relevant documents that support your findings.

  7. Assuming Warranty Coverage: Not clarifying warranty or service agreements can lead to misunderstandings. Always check if there are existing warranties that may affect treatment recommendations.

  8. Overlooking Consumer Information: Ignoring the important consumer information on page 2 can lead to misinterpretations of the report's limitations. Read and understand this section thoroughly.

  9. Failure to Follow Up: Not advising clients to follow up on inaccessible areas can result in hidden issues. Encourage clients to contact the inspection company for further evaluations if necessary.

Documents used along the form

The NPMA-33 form is a critical document in the process of inspecting properties for wood-destroying insects. However, several other forms and documents are often used alongside it to ensure comprehensive assessment and compliance with legal and regulatory requirements. Below is a list of these documents, each serving a specific purpose in the inspection and real estate transaction process.

  • WDI Treatment Certificate: This document certifies that a property has undergone treatment for wood-destroying insects. It typically includes details about the treatment method used and the date of service.
  • Inspection Agreement: This is a contract between the inspector and the property owner outlining the terms of the inspection, including scope, limitations, and fees. It protects both parties by clarifying expectations.
  • Disclosure Statement: This form informs potential buyers of any known issues related to wood-destroying insects or prior treatments. It is essential for transparency during property transactions.
  • Structural Pest Control License: This document verifies that the pest control company and its inspectors are licensed to perform inspections and treatments. It ensures compliance with state regulations.
  • Repair Estimates: If wood-destroying insect damage is found, repair estimates provide potential buyers with an understanding of the costs associated with necessary repairs. These estimates are often prepared by licensed contractors.
  • Home Warranty Information: This document outlines any existing warranties on the property that may cover pest control services or structural repairs. It can provide peace of mind to buyers.
  • Termite Bond Agreement: This is a contract between the property owner and a pest control company that guarantees ongoing treatment and inspections for termites. It often includes terms for future service and renewal.
  • Property Transfer Disclosure Statement: This form is required in many states and provides information about the property's condition, including any past pest issues. It helps buyers make informed decisions.
  • Inspection Report Addendum: This document may accompany the NPMA-33 form to provide additional details about the inspection findings, including recommendations for further action or treatment.

These documents collectively support the NPMA-33 form by providing necessary information and assurances to buyers, sellers, and inspectors. Understanding each of these forms can enhance the clarity and effectiveness of the inspection process, ultimately leading to more informed real estate transactions.

Similar forms

The NPMA-33 form, which is a Wood Destroying Insect Inspection Report, shares similarities with the FHA-terminology Form 92900-A. Both documents serve as essential tools in real estate transactions, particularly during the mortgage process. The FHA form provides a summary of the property’s condition regarding structural integrity and pest presence. Like the NPMA-33, it emphasizes the importance of inspections and the limitations of the findings, ensuring that buyers understand the potential risks associated with wood-destroying insects and other structural issues.

Another document comparable to the NPMA-33 is the VA Form 26-1852, which is used for pest inspections in properties being financed through the Veterans Affairs loan program. This form requires a thorough inspection for wood-destroying insects, similar to the NPMA-33. Both documents outline the inspector's findings, including any visible evidence of infestations and recommendations for treatment. They aim to protect buyers by ensuring they are aware of any potential pest issues before finalizing a purchase.

The Termite Inspection Report, often required by lenders, closely resembles the NPMA-33 in its purpose and structure. This report typically includes details about the presence of termites or other wood-destroying insects, as well as recommendations for treatment. Both documents serve to inform potential buyers about the condition of the property, highlighting any issues that may need to be addressed before the sale is completed.

Another related document is the Wood Destroying Insect (WDI) Report used in various states. Like the NPMA-33, this report provides a visual inspection of a property for signs of wood-destroying insects. It includes similar sections for findings, recommendations, and comments, ensuring that buyers receive a comprehensive overview of the property’s pest situation. Both reports aim to protect the interests of buyers by disclosing any potential issues that could affect the property’s value.

The Home Inspection Report is another document that shares similarities with the NPMA-33 form. While it covers a broader range of structural issues, it often includes a section on pest inspections. Both reports highlight the condition of the property and any findings related to wood-destroying insects. They serve as crucial documents for buyers, providing insights into potential repairs and maintenance needs.

The Real Estate Purchase Agreement may also contain clauses related to pest inspections, similar to the NPMA-33. This agreement outlines the terms of the sale and often includes contingencies based on the results of pest inspections. Both documents emphasize the importance of understanding the property’s condition before finalizing the transaction, ensuring that buyers are protected from unforeseen issues.

Lastly, the Pest Control Service Agreement can be compared to the NPMA-33 form. This agreement outlines the terms and conditions of pest control services, including treatments for wood-destroying insects. While the NPMA-33 focuses on inspection findings, both documents aim to address pest-related issues and provide guidance for property owners on how to manage potential infestations effectively.

Dos and Don'ts

When filling out the NPMA-33 form, it’s important to ensure accuracy and clarity. Here’s a helpful list of what to do and what to avoid:

  • Do read the instructions carefully before starting.
  • Do provide complete and accurate information in all sections.
  • Do ensure that the inspector signs and dates the form.
  • Do check for any visible evidence of wood destroying insects during the inspection.
  • Don't leave any sections blank; all relevant fields must be filled out.
  • Don't use vague descriptions; be specific about findings and recommendations.
  • Don't forget to attach any necessary documents or additional comments.
  • Don't assume previous treatments; always note any visible evidence of past treatment.

Misconceptions

Misconceptions about the NPMA-33 form can lead to misunderstandings regarding wood-destroying insect inspections. Here are eight common misconceptions explained:

  • The NPMA-33 guarantees the absence of wood-destroying insects. This form does not provide a guarantee or warranty against future infestations. It is merely a snapshot of the property’s condition on the inspection date.
  • All areas of the property are inspected. The inspection is limited to readily accessible areas. If certain areas are obstructed or inaccessible, they will not be inspected.
  • The report includes a structural integrity assessment. The NPMA-33 is not a structural damage report. It focuses solely on the presence of wood-destroying insects.
  • Previous treatments are always documented. The inspecting company cannot provide information on past treatments performed by other companies. Buyers should contact the original treatment company for details.
  • The inspector is qualified to evaluate damage. While inspectors have training in pest identification, they are not qualified to assess structural damage or repairs.
  • The report is valid indefinitely. The NPMA-33 is only valid for 90 days from the inspection date for mortgage or property transfer purposes. After that, it may not be used.
  • Homeowners do not need to take preventive measures. Homeowners should actively manage conditions that can lead to infestations, such as moisture and wood debris around the property.
  • Inaccessible areas are not a concern. If an area is reported as inaccessible, it may still harbor infestations. Homeowners are encouraged to make these areas accessible for further inspection.

Understanding these misconceptions can help homeowners and buyers make informed decisions regarding wood-destroying insect inspections and property maintenance.

Key takeaways

When filling out and using the NPMA-33 form, it is essential to keep several key points in mind. Understanding these takeaways can help ensure that the inspection process is clear and effective.

  • Purpose of the Form: The NPMA-33 form serves as a Wood Destroying Insect Inspection Report. It documents the condition of a property regarding potential wood-destroying insect infestations.
  • Inspection Limitations: This report does not guarantee the absence of wood-destroying insects. It is based on a visual inspection of accessible areas only, meaning hidden infestations may still exist.
  • Previous Treatments: If there is evidence of past treatments, the inspector will note it. However, the inspecting company cannot provide assurances about the effectiveness of previous treatments conducted by other companies.
  • Recommendations: The form allows for treatment recommendations based on the findings. If evidence of wood-destroying insects is found, appropriate treatment should be suggested.
  • Inaccessible Areas: The report includes a section for noting areas that were obstructed or inaccessible during the inspection. It is crucial to address these areas, as they may harbor infestations.
  • Consumer Responsibility: Homeowners should be proactive in maintaining their properties to prevent infestations. The form highlights the importance of addressing conditions that attract wood-destroying insects.

By keeping these key points in mind, users can better navigate the NPMA-33 form and make informed decisions regarding property inspections and pest management.