Homepage Fill in Your New Jersey Affidavit of Consideration RTF-1 Template
Table of Contents

The New Jersey Affidavit of Consideration RTF-1 form plays a crucial role in real estate transactions within the state. This document is typically required when property is transferred, serving as a declaration of the consideration, or payment, involved in the transaction. It provides essential details such as the names of the parties involved, the property's description, and the amount of consideration being exchanged. By accurately completing this form, parties can ensure compliance with state regulations and facilitate the proper recording of the transaction. Furthermore, the affidavit helps to prevent potential disputes regarding the value of the property and the terms of the sale, thereby promoting transparency and trust among buyers and sellers. Understanding the requirements and implications of the RTF-1 form is vital for anyone engaged in real estate dealings in New Jersey.

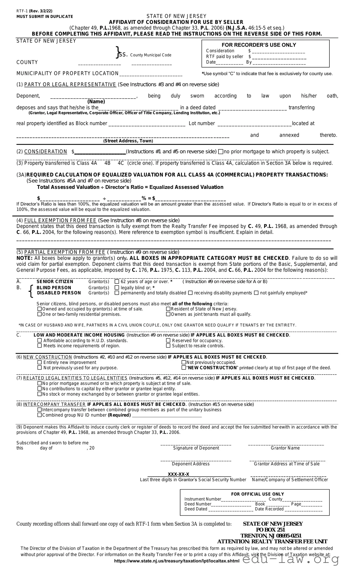
Sample - New Jersey Affidavit of Consideration RTF-1 Form

RTF-1 (Rev. 3/2/22)

 

MUST SUBMIT IN DUPLICATE

STATE OF NEW JERSEY

 

AFFIDAVIT OF CONSIDERATION FOR USE BY SELLER

(Chapter 49, P.L.1968, as amended through Chapter 33, P.L. 2006) (N.J.S.A. 46:15-5 et seq.)

BEFORE COMPLETING THIS AFFIDAVIT, PLEASE READ THE INSTRUCTIONS ON THE REVERSE SIDE OF THIS FORM.

STATE OF NEW JERSEY

 

 

 

 

}ss. County Municipal Code

FOR RECORDER’S USE ONLY

 

 

 

 

Consideration

$ _____________________

 

 

RTF paid by seller

$ ___________________

 

COUNTY

_________________ ________________

Date___________ By _____________________

 

MUNICIPALITY OF PROPERTY LOCATION _________________________

 

 

*Use symbol “C” to indicate that fee is exclusively for county use.

(1)PARTY OR LEGAL REPRESENTATIVE (See Instructions #3 and #4 on reverse side)

Deponent, ______________________________, being duly sworn according to law upon his/her oath,

(Name)

deposes and says that he/she is the____________________________ in a deed dated ________________________ transferring

(Grantor, Legal Representative, Corporate Officer, Officer of Title Company, Lending Institution, etc.)

real property identified as Block number ___________________________ Lot number

__________________________located at

 

 

_______________________________________________________________________________

and

annexed

thereto.

(Street Address, Town)

 

 

 

 

 

(2) CONSIDERATION $__________________(Instructions #1 and #5 on reverse side)

no prior mortgage to which property is subject.

_________________________________________________________________________________________________________

(3) Property transferred is Class 4A 4B 4C (circle one). If property transferred is Class 4A, calculation in Section 3A below is required.

(3A)REQUIRED CALCULATION OF EQUALIZED VALUATION FOR ALL CLASS 4A (COMMERCIAL) PROPERTY TRANSACTIONS: (See Instructions #5A and #7 on reverse side)

Total Assessed Valuation  Director’s Ratio = Equalized Assessed Valuation

$_____________________  ____________% = $_________________________

If Director’s Ratio is less than 100%, the equalized valuation will be an amount greater than the assessed value. If Director’s Ratio is equal to or in excess of 100%, the assessed value will be equal to the equalized valuation.

(4)FULL EXEMPTION FROM FEE (See Instruction #8 on reverse side)

Deponent states that this deed transaction is fully exempt from the Realty Transfer Fee imposed by C. 49, P.L. 1968, as amended through C. 66, P.L. 2004, for the following reason(s). Mere reference to exemption symbol is insufficient. Explain in detail.

______________________________________________________________________________________________________________

(5)PARTIAL EXEMPTION FROM FEE ( Instruction #9 on reverse side)

NOTE: All boxes below apply to grantor(s) only. ALL BOXES IN APPROPRIATE CATEGORY MUST BE CHECKED. Failure to do so will void claim for partial exemption. Deponent claims that this deed transaction is exempt from State portions of the Basic, Supplemental, and General Purpose Fees, as applicable, imposed by C. 176, P.L. 1975, C. 113, P.L. 2004, and C. 66, P.L. 2004 for the following reason(s):

__________________________________________________________________________________________________________ ____________

A.

SENIOR CITIZEN

Grantor(s)

62 years of age or over. *

( Instruction #9 on reverse side for A or B)

B.

BLIND PERSON

Grantor(s)

legally blind or; *

 

 

DISABLED PERSON

Grantor(s)

permanently and totally disabled receiving disability payments not gainfully employed*

Senior citizens, blind persons, or disabled persons must also meet all of the following criteria:

Owned and occupied by grantor(s) at time of sale.

Resident of State of New Jersey.

One or two-family residential premises.

Owners as joint tenants must all qualify.

*IN CASE OF HUSBAND AND WIFE, PARTNERS IN A CIVIL UNION COUPLE, ONLY ONE GRANTOR NEED QUALIFY IF TENANTS BY THE ENTIRETY.

________________________________________________________________________________________________________________________________________________

C.LOW AND MODERATE INCOME HOUSING (Instruction #9 on reverse side) IF APPLIES ALL BOXES MUST BE CHECKED.

Affordable according to H.U.D. standards.

Reserved for occupancy.

Meets income requirements of region.

Subject to resale controls.

(6)NEW CONSTRUCTION (Instructions #2, #10 and #12 on reverse side) IF APPLIES ALL BOXES MUST BE CHECKED.

Entirely new improvement

Not previously occupied.

Not previously used for any purpose.

NEW CONSTRUCTION” printed clearly at top of first page of the deed.

________________________________________________________________________________________________________________________________________________

(7)RELATED LEGAL ENTITIES TO LEGAL ENTITIES (Instructions #5, #12, #14 on reverse side) IF APPLIES ALL BOXES MUST BE CHECKED.

No prior mortgage assumed or to which property is subject at time of sale.

No contributions to capital by either grantor or grantee legal entity.

No stock or money exchanged by or between grantor or grantee legal entities.

________________________________________________________________________________________________________________________________________________

(8)INTERCOMPANY TRANSFER IF APPLIES ALL BOXES MUST BE CHECKED. (Instruction #15 on reverse side)

Intercompany transfer between combined group members as part of the unitary business

Combined group NU ID number (Required)

(9)Deponent makes this Affidavit to induce county clerk or register of deeds to record the deed and accept the fee submitted her ewith in accordance with the provisions of Chapter 49, P.L. 1968, as amended through Chapter 33, P.L. 2006.

Subscribed and sworn to before me

____________________________

______________________________

this

day of

, 20

 

Signature of Deponent

 

Grantor Name

 

 

 

____________________________

______________________________

 

 

 

 

Deponent Address

 

Grantor Address at Time of Sale

 

 

 

 

_______ XXX-XX-X___________ _

 

______________________________

 

 

 

Last three digits in Grantor’s Social Security Number

Name/Company of Settlement Officer

 

 

 

 

 

 

 

 

 

 

 

 

 

FOR OFFICIAL USE ONLY

 

 

 

 

 

Instrument Number___________________ County_________________

 

 

 

 

 

Deed Number_________________

Book __________ Page_________

 

 

 

 

 

Deed Dated ___________________ Date Recorded ________________

 

 

 

County recording officers shall forward one copy of each RTF-1 form when Section 3A is completed to:

STATE OF NEW JERSEY

 

 

 

 

 

 

 

 

PO BOX 251

 

 

 

 

 

 

 

TRENTON, NJ 08695-0251

 

 

 

 

 

ATTENTION: REALTY TRANSFER FEE UNIT

The Director of the Division of Taxation in the Department of the Treasury has prescribed this form as required by law, and may not be altered or amended without prior approval of the Director. For information on the Realty Transfer Fee or to print a copy of this Affidavit, visit the Division of Taxation website at: https://www.state.nj.us/treasury/taxation/lpt/localtax.shtml

INSTRUCTIONS FOR FILING FORM RTF-1, AFFIDAVIT OF CONSIDERATION FOR USE BY SELLER

1.STATEMENT OF CONSIDERATION AND REALTY TRANSFER FEE PAYMENT ARE PREREQUISITES FOR DEED RECORDING

No county recording officer shall record any deed evidencing transfer of title to real property unless (a) the consideration is recited in the deed, or (b) an Affidavit by

one or more of the parties named in the deed or by their legal representatives declaring the consideration is annexed for rec ording with the deed, and (c) for conveyances and transfers of property for which the total consideration recited in the deed is not in excess of $350,000, a f ee is remitted at the rate of $2.00/$500 of consideration or fractional part thereof not in excess of $150,000; $3.35/$500 of consideration or fractional part thereof in excess of $150,000 but not in excess of $200,000; and $3.90/$500 of consideration or fractional part thereof in excess of $200,000. For transfers of property for which the total consideration recited in the deed is in excess of $350,000, a fee is remitted at the rate of $2.90/$500 of consideration or fractional part not in excess of $150,000; $4.25/$500 of consideration or fractional part thereof in excess of $150,000 but not in excess of $200,000; $4.80/$500 of consideration or fractional part thereof in excess of $200,000; $5.30/$500 of consideration or fractional part thereof in excess of $550,000 but not in excess of $850,000; $5.80/$500 of consideration or fractional part thereof in excess of $850,00 but not in $1,000,000; and $6.05/$500 of consideration or fractional part thereof in excess of $1,000,000, which fee shall be paid in addition to the recording fees imposed by Chapter 123, P.L. 1965, Section 2 (C. 22A:4-4.1) as amended by Chapter 370, P.L. 2001, through Chapter 66, P.L. 2004, which fee shall be paid to the county recording officer at the time the deed is offered for recording/transfer. Of these fees, $.75/$500 of consideration or fractional part in excess of $150,000 paid to the State Treasurer is credited to the New Jersey Affordable Housing Trust Fund.

2.WHEN AFFIDAVIT MUST BE ANNEXED TO DEED

This Affidavit must be annexed to and recorded with all deeds when entire consideration is not recited in deed or the acknowledgement or proof of the execution, when the grantor claims a total or partial exemption from the fee, Class 4 property that includes commercial, industrial, or apartment property, and for transfers of “new construction.” (See Instructions #10 and #12 below.)

3.LEGAL REPRESENTATIVE

“Legal representative” is to be interpreted broadly to include any person actively and responsibly participating in the transaction, such as, but not limited to: an attorney representing one of the parties; a closing officer of a title company or lending institution participating in the transaction; a holder of power of attorney from grantor or grantee.

4.OFFICER OF CORPORATE GRANTOR/OFFICER OF TITLE COMPANY OR LENDING INSTITUTION

Where a deponent is an officer of corporate grantor, state the name of corporation and officer’s title or where a deponent is a closing officer of a title company or

lending institution participating in the transaction, state the name of the company or institution and officer’s title.

5.CONSIDERATION

“Consideration” means in the case of any deed, the actual amount of money and the monetary value of any other thing of value constituting the entire

compensation paid or to be paid for the transfer of title to the lands, tenements or other realty, including the remaining amount of any prior mortgage to which the transfer is subject or which is assumed and agreed to be paid by the grantee and any other lien or encumbrance not paid, satisfied or removed in connection with the transfer of title. (C. 49, P.L. 1968, Section 1, as amended.)

5A. CLASS 4A “COMMERCIAL PROPERTIES” DEFINED

Class 4A “Commercial properties” as defined in N.J.A.C. 18:12-2.2 means “any other type of income-producing property other than property in classes 1, 2, 3A, 3B, and those properties included in classes 4B and 4C.” A quarterly audit of all Class 4A sales submitted by the municipal assessor through the SR-1A/equalization process will determine whether a Class 4A transaction was recorded without proper documentation and the required Affidavits of Consideration.

6.DIRECTOR'S RATIO

“Director’s Ratio” means the average ratio of assessed to true value of real property for each taxing district as determined by the Director, Division of Taxation, in the Table of Equalized Valuations promulgated annually on or before October 1 in each year pursuant to N.J.S.A. 54:1-35.1. The Table is used in the calculation and apportionment of distributions pursuant to the State School Aid Act of 1954.

7.EQUALIZED VALUE

“Equalized Value” means the assessed value of the property in the year that the transfer is made, divided by the Director’s Ratio. The Table of Equalized

Valuations is promulgated annually on or before October 1 in each year pursuant to N.J.S.A. 54:1-35.1.

(Example: Assessed Value = $1,000,000; Director’s Ratio = 80%. $1,000,000  .80 = $1,250,000)

8.FULL EXEMPTION FROM THE REALTY TRANSFER FEE (GRANTOR/GRANTEE)

The fee imposed by this Act shall not apply to a deed:

(a)For consideration of less than $100; (b) By or to the United States of America, this State, or any instrumentality, agency or subdivision; (c) Solely in order to provide or release security for a debt or obligation; (d) Which confirms or corrects a deed previously recorded; (e) On a sale for delinquent taxes or assessments; (f) On partition;

(g)By a receiver, trustee in bankruptcy or liquidation, or assignee for the benefit of creditors; (h) Eligible to be recorded as an “ancient deed” pursuant to R.S. 46:16-7; (i) Acknowledged or proved on or before July 3, 1968; (j) Between husband and wife/civil union partners, or parent and child; (k) Conveying a cemetery lot or plot; (l) In specific performance of a final judgment; (m) Releasing a right of reversion; (n) Previously recorded in another county and full Realty Transfer Fee paid or accounted for as evidenced by written instrument, attested to by the grantee and acknowledged by the county recording officer of the county of such prior recording, specifying the county, book, page, date of prior recording, and amount of Realty Transfer Fee previously paid; (o) By an executor or administrator of a decedent to a devisee or heir to effect distribution of the decedent’s estate in accordance with the provisions of the decedent’s will or the intestate laws of this State; (p) Recorded within 90 days following the entry of a divorce/dissolution decree which dissolves the marriage/civil union partnership between grantor and grantee; (q) Issued by a cooperative corporation, as part of a conversion of all of the assets of the cooperative corporation into a condominium, to a shareholder upon the surrender by the shareholder of all of the shareholder’s stock in the cooperative corporation and the proprietary lease entitling the shareholder to exclusive oc cupancy of a portion of the property owned by the corporation.

9.PARTIAL EXEMPTION FROM THE REALTY TRANSFER FEE (C. 176, P.L. 1975; C. 113, P.L. 2003; C. 66 P.L. 2004)

The following transfers of title to real property shall be exempt from State portions of the Basic Fee, Supplemental Fee, and General Purpose Fee, as applicable: 1.

The sale of any one or two-family residential premises which are owned and occupied by a senior citizen, blind person, or disabled person who is the sel ler in such transaction; provided, however, that except in the instance of a husband and wife/partners in a civil union couple, no exemption shall be allowed if the property being sold is owned as joint tenants and one or more of the owners is not a senior citizen, blind person, or disabled person; 2. Th e sale of Low and Moderate Income Housing conforming to the requirements as established by this Act.

For the purposes of this Act, the following definitions shall apply:

“Blind person” means a person whose vision in his better eye with proper correction does not exceed 20/200 as measured by the Snellen chart or a person who has a field defect in his better eye with proper correction in which the peripheral field has contracted to such an extent th at the widest diameter of visual field subtends an angular distance no greater than 20º.

“Disabled person” means any resident of this State who is permanently and totally disabled, unable to engage in gainful employment, and receiving disability benefits or any other compensation under any federal or State law.

“Senior citizen” means any resident of this State of the age of 62 or over.

“Low and Moderate Income Housing” means any residential premises, or part thereof, affordable according to Federal Department of Housing and Urban Development or other recognized standards for home ownership and rental costs occupied or reserved for occupancy by households with a gross income equal to 80% or less of the median gross household income for households of the same size within the housing region in which the housing i s located, but shall include only those residential premises subject to resale controls pursuant to contractual guarantees.

“Resident of the State of New Jersey” means any claimant who is legally domiciled in this State when the transfer of the subject property is made. Domicile is what the claimant regards as the permanent home to which he intends to return after a period of absence. Proofs of domicile includ e a New Jersey voter registration, motor vehicle registration and driver’s license, and resident tax return filing.

10.TRANSFERS OF NEW CONSTRUCTION

New construction” means any conveyance or transfer of property upon which there is an entirely new improvement not previously occupied or used for any purpose. On transfers of new construction, the words “NEW CONSTRUCTION” shall be printed clearly at the top of the first page of the deed, and an Affidavit by the grantor stating that the transfer is of property upon which there is new construction shall be appended to the deed.

11.REALTY TRANSFER FEE IS A FEE IN ADDITION TO OTHER RECORDING FEES

The county recording officer is required to collect the Realty Transfer Fee at the time the deed is offered for recording/transfer.

12.PENALTY FOR WILLFUL FALSIFICATION OF CONSIDERATION AND TRANSFERS OF NEW CONSTRUCTION

Any person who knowingly falsifies the consideration recited in a deed or in the proof or acknowledgement of the execution of a deed or i n an affidavit annexed to a

deed declaring the consideration therefor or a declaration in an affidavit that a transfer is exempt from recording fee is guilty of a crime of the fourth degree (Chapter 308, P.L. 1991, effective June 1, 1992). Grantors conveying title of new construction who fail to subscribe and append to the deed an affidavit to that effect in accordance with the provisions of subsection c. of section 2 of Chapter 49, P.L. 1968 (C.46:15-6) is guilty of a disorderly persons offense. The Division of Taxation is entitled to review the Fees collected pursuant to the State Uniform Procedure Law. The Director of the Division of Taxation is authorized to make deficiency assessments to taxpayers who have, intentionally or mistakenly, underestimated the consideration or sales price of properties on the Affidavit of Consider ation attached to deeds and upon which the Realty Transfer Fee is based.

13.COUNTY/MUNICIPAL CODES

County/Municipal codes may be found at https://www.state.nj.us/treasury/taxation/pdf/lpt/cntycode.pdf.

14.LEGAL ENTITIES TRANSFERRING NEW JERSEY REAL ESTATE TO RELATED LEGAL ENTITIES

Legal entities transferring New Jersey real estate to related legal entities are not exempt from the Realty Transfer Fee if the consideration, as defined in the law, is $100 or more. Such consideration includes the actual amount of money and/or the monetary value of any other thing of value constituting the entire compensation paid, such as the dollar value of stock included in the transaction or any enhancement to or contribution to the capital or either legal entity resulting from the transfer, or remaining balances of any prior mortgage to which the property is subject or which is assumed and agreed to be paid by the grantee and any other lien or encumbrance not paid, satisfied or removed in connection with the transfer of title.

15. INTERCOMPANY TRANSFER BETWEEN COMBINED GROUP MEMBERS THAT FILE A NEW JERSEY COMBINED RETURN

Transfers of real property that are intercompany transfers between combined group members filing a New Jersey combined return as part of the unitary business of the combined group are exempt from the grantor and grantee fees. Transfers must indicate the combined group NU identification number assigned by the Division of Taxation. If the NU number has not been assigned for any reason then the RTF must be paid and a refund may be applied for.

File Specs

Fact Name Description
Purpose The New Jersey Affidavit of Consideration RTF-1 form is used to disclose the consideration paid for real estate transactions.
Governing Law This form is governed by New Jersey Statutes, specifically N.J.S.A. 46:15-5.
Who Uses It Buyers and sellers involved in real estate transactions in New Jersey typically use this form.
Filing Requirement The form must be filed with the county clerk’s office at the time of recording the deed.
Information Required It requires details such as the names of the parties, the property description, and the amount of consideration.
Signature Requirement The form must be signed by the seller or their authorized representative to be valid.
Format The form is available in a fillable format, typically as a PDF or RTF file.
Additional Documentation Supporting documents may be needed to verify the consideration amount listed on the form.

New Jersey Affidavit of Consideration RTF-1 - Usage Guidelines

Once you have the New Jersey Affidavit of Consideration RTF-1 form in hand, you will need to complete it accurately to ensure a smooth process moving forward. This form is typically required for real estate transactions and must be filled out correctly to avoid any delays.

  1. Start with your name and contact information at the top of the form. Ensure that your name is spelled correctly and that all contact details are up to date.
  2. Next, provide the details of the property involved in the transaction. Include the address and any other required identifiers.
  3. Fill in the names and addresses of all parties involved in the transaction. This includes buyers and sellers.
  4. Indicate the type of consideration being given for the property. This could be a purchase price or other forms of compensation.
  5. Complete the section regarding any exemptions that may apply to the transaction. Make sure to check the relevant boxes as needed.
  6. Sign and date the form at the designated area. If applicable, have a witness or notary public sign as well.
  7. Review the entire form for accuracy. Double-check all names, addresses, and figures to ensure everything is correct.
  8. Submit the completed form to the appropriate office as instructed, along with any required fees or additional documentation.

Your Questions, Answered

What is the New Jersey Affidavit of Consideration RTF-1 form?

The New Jersey Affidavit of Consideration RTF-1 form is a document used during real estate transactions. It provides information about the consideration, or payment, involved in the transfer of property. This form helps ensure that the transaction is properly recorded and helps determine any applicable taxes.

Who needs to complete the RTF-1 form?

The RTF-1 form must be completed by the seller or the buyer of the property. It is typically filled out during the closing process of a real estate transaction. Both parties may need to provide information to ensure accuracy.

What information is required on the RTF-1 form?

The form requires details such as the names of the buyer and seller, the property address, the sale price, and any relevant exemptions. It may also ask for information about the type of transaction, such as whether it is a sale, gift, or transfer between family members.

Where can I obtain the RTF-1 form?

The RTF-1 form can be obtained from the New Jersey Division of Taxation website or through local real estate offices. It is also available at county clerk’s offices throughout New Jersey. Make sure to use the most current version of the form.

How do I submit the RTF-1 form?

The completed RTF-1 form should be submitted to the county clerk’s office where the property is located. It is typically filed along with the deed during the closing process. Ensure that all required signatures are included before submission.

Is there a fee associated with filing the RTF-1 form?

There is no fee specifically for filing the RTF-1 form. However, other fees may apply when recording the deed or completing the real estate transaction. It’s important to check with the local county clerk’s office for any associated costs.

What happens if I don’t file the RTF-1 form?

Failing to file the RTF-1 form can lead to complications in the property transfer. It may result in delays in recording the deed and could affect the calculation of transfer taxes. It is best to ensure that all required documents are submitted to avoid issues.

Can I amend the RTF-1 form after it has been submitted?

If you need to make changes to the RTF-1 form after submission, you may need to file an amended form. This typically involves contacting the county clerk’s office for guidance on the process. It’s important to address any errors as soon as possible to ensure accurate records.

Common mistakes

  1. Inaccurate Property Description: One common mistake is failing to provide a complete and accurate description of the property involved in the transaction. This includes not specifying the correct lot number, block number, or street address, which can lead to confusion or delays.

  2. Incorrect Consideration Amount: Individuals often misstate the consideration amount, which is the price paid for the property. This figure must reflect the actual transaction value and not an estimated or rounded number.

  3. Missing Signatures: Signatures are crucial. Omitting the required signatures of all parties involved in the transaction can render the affidavit invalid. Each party must sign the form to ensure its legality.

  4. Failure to Notarize: Many people forget to have the affidavit notarized. Without a notary's signature and seal, the document may not be accepted by the county clerk or other authorities.

  5. Incorrectly Listing the Grantor and Grantee: Mistakes can occur when identifying the grantor (seller) and grantee (buyer). It is essential to use the full legal names of both parties to avoid any issues with the transfer of ownership.

  6. Neglecting to Include Additional Information: Certain transactions may require additional details, such as the relationship between the parties or any special conditions of the sale. Failing to include this information can lead to complications.

  7. Not Reviewing for Completeness: Before submitting the form, it is vital to review it thoroughly. Overlooking minor errors or leaving sections blank can cause delays in processing the affidavit.

Documents used along the form

The New Jersey Affidavit of Consideration RTF-1 form is often accompanied by several other important documents. These documents help to ensure clarity and legal compliance in real estate transactions. Below is a list of forms commonly used alongside the RTF-1.

  • Deed: This document transfers ownership of the property from the seller to the buyer. It outlines the legal description of the property and the names of the parties involved.
  • Property Disclosure Statement: Sellers provide this form to disclose known issues or defects with the property. It protects both parties by ensuring transparency in the transaction.
  • Title Search Report: A title search report confirms the legal ownership of the property and checks for any liens or encumbrances. It is essential for ensuring that the buyer receives clear title.
  • Sales Contract: This agreement details the terms of the sale, including the purchase price and any contingencies. Both parties must sign this document to formalize the transaction.
  • Closing Statement: Also known as a HUD-1 statement, this document itemizes all closing costs associated with the transaction. It is provided to both the buyer and seller at closing.
  • Mortgage Documents: If the buyer is financing the purchase, various mortgage documents will be required. These include the loan agreement and promissory note, outlining the terms of the loan.

Having these documents prepared and organized can facilitate a smoother transaction process. It is crucial to ensure that all necessary paperwork is completed accurately to avoid any potential issues in the future.

Similar forms

The New Jersey Affidavit of Consideration RTF-1 form is often compared to the Deed of Conveyance. Both documents serve to formalize the transfer of property ownership from one party to another. While the affidavit provides a sworn statement regarding the consideration involved in the transaction, the deed itself is the legal instrument that actually conveys the property title. Together, they create a comprehensive record of the transfer process, ensuring that all parties are aware of the terms and conditions surrounding the sale.

Another document similar to the RTF-1 is the Bill of Sale. This document is used to transfer ownership of personal property, such as vehicles or equipment. Like the affidavit, a Bill of Sale outlines the consideration exchanged for the property. However, it focuses more on tangible items rather than real estate. Both documents serve as proof of the transaction and are essential for legal clarity and protection of the involved parties.

The Quitclaim Deed is also comparable to the New Jersey Affidavit of Consideration RTF-1. This type of deed allows one party to transfer their interest in a property to another without guaranteeing that the title is clear. While the affidavit details the consideration involved in the transaction, the Quitclaim Deed simply conveys whatever interest the grantor has. This makes both documents vital in property transactions, especially when the exact nature of the interest being transferred is uncertain.

In addition, the Purchase Agreement shares similarities with the RTF-1 form. This document outlines the terms of a property sale, including the purchase price and any contingencies. While the affidavit focuses on the consideration aspect, the Purchase Agreement encompasses all aspects of the transaction. Both documents are crucial in ensuring that all parties are on the same page regarding the sale and the terms involved.

The Affidavit of Title is another document that parallels the New Jersey Affidavit of Consideration RTF-1. This affidavit is a sworn statement by the seller regarding the ownership of the property and any encumbrances that may exist. While the RTF-1 emphasizes the financial consideration, the Affidavit of Title assures the buyer of the seller's right to transfer the property. Both serve to protect the interests of the parties involved in a real estate transaction.

The Real Estate Transfer Declaration is also relevant to the discussion. This document is typically filed with the county clerk's office and provides details about the property being transferred, including its value. Similar to the RTF-1, it ensures transparency in property transactions. While the affidavit focuses on the consideration, the transfer declaration provides essential information about the property itself, creating a fuller picture of the transaction.

The Warranty Deed shares some characteristics with the New Jersey Affidavit of Consideration RTF-1 as well. A Warranty Deed guarantees that the seller holds clear title to the property and has the right to sell it. While the affidavit discusses the consideration exchanged, the Warranty Deed offers protection to the buyer against future claims. Both documents are fundamental in real estate transactions, providing assurance and clarity to both parties.

The Escrow Agreement is another document that can be likened to the RTF-1 form. This agreement outlines the terms under which a neutral third party holds funds or documents until specific conditions are met. While the affidavit focuses on the financial consideration involved in a transaction, the Escrow Agreement ensures that all conditions are satisfied before the transfer occurs. Both documents work together to facilitate a smooth transaction process.

Lastly, the Closing Statement bears similarities to the New Jersey Affidavit of Consideration RTF-1. This document summarizes the financial aspects of a real estate transaction, detailing all costs, fees, and credits involved. While the affidavit provides information on the consideration exchanged, the Closing Statement offers a comprehensive overview of the financial side of the transaction. Both documents are essential for ensuring that all parties understand their financial obligations and rights in the transaction.

Dos and Don'ts

When filling out the New Jersey Affidavit of Consideration RTF-1 form, it is important to be careful and precise. Here are five things you should and shouldn't do:

  • Do read the instructions carefully before starting.
  • Don't leave any required fields blank; ensure all information is complete.
  • Do use clear and legible handwriting if filling out the form by hand.
  • Don't use white-out or correction fluid; errors should be crossed out and corrected properly.
  • Do double-check all numbers and calculations for accuracy.

Misconceptions

The New Jersey Affidavit of Consideration RTF-1 form is often misunderstood. Here are six common misconceptions about this document:

  • It is only for real estate transactions. Many believe the RTF-1 form is exclusively for real estate. However, it can also be used in various situations involving the transfer of property, including personal property and business assets.
  • Only buyers need to sign the form. Some think that only the buyer's signature is necessary. In reality, both the buyer and seller typically need to sign the affidavit to confirm the transaction details.
  • It is not legally binding. There is a misconception that the RTF-1 form holds no legal weight. In truth, it serves as a sworn statement that can have legal implications if the information provided is false.
  • It can be completed after the transaction. Many assume that the affidavit can be filled out after the sale is finalized. However, it should be completed at the time of the transaction to accurately reflect the consideration exchanged.
  • It is only needed for high-value transactions. Some individuals believe that the RTF-1 form is only necessary for expensive properties. In fact, any transfer of property, regardless of value, may require this affidavit.
  • It is a complicated form. Many people think that the RTF-1 is difficult to understand. In reality, the form is straightforward and can be filled out with basic information regarding the transaction.

Understanding these misconceptions can help ensure that property transactions in New Jersey are completed correctly and efficiently.

Key takeaways

The New Jersey Affidavit of Consideration RTF-1 form is an important document used in real estate transactions. Understanding its purpose and how to fill it out correctly can help ensure compliance with state regulations. Here are six key takeaways regarding this form:

  • The RTF-1 form is required for all real estate transactions in New Jersey to report the consideration paid for the property.
  • Accurate completion of the form is essential; incorrect information can lead to delays in the transaction process.
  • The form must be signed by the seller or their authorized representative, affirming the truthfulness of the information provided.
  • Consideration includes not only the sale price but also any other financial arrangements, such as seller financing or trade-ins.
  • Failure to submit the RTF-1 form can result in penalties, including fines or additional fees during the closing process.
  • It is advisable to consult with a real estate attorney or professional if there are uncertainties about filling out the form.