Homepage Fill in Your Mobile Home Listing Agreement Template
Table of Contents

The Mobile Home Listing Agreement form serves as a vital document for anyone looking to sell a mobile home, outlining the essential details and responsibilities involved in the sale process. This form includes information about the listing company or agent, providing their contact details to ensure clear communication. It also captures important specifics about the mobile home itself, such as its year, manufacturer, model, and dimensions. Furthermore, it details the mobile park information, including rent and the park manager's contact information, which is crucial for potential buyers to understand the living situation. Owner information is thoroughly documented, ensuring that all legal owners are identified along with their banking details for any financial transactions. The agreement also specifies the cash amount the seller is willing to accept, highlighting the need for transparency regarding any liens or encumbrances on the property. Additionally, it lists items that may remain with the mobile home upon sale, such as appliances and outdoor structures, ensuring that both seller and buyer have a clear understanding of what is included in the transaction. The agreement grants the listing agent exclusive rights to sell the property, outlining the terms of the sale and the commission structure, which is essential for protecting the interests of all parties involved. This comprehensive form not only facilitates the sale of the mobile home but also establishes a clear framework for the transaction, helping to prevent misunderstandings and disputes down the line.

Sample - Mobile Home Listing Agreement Form

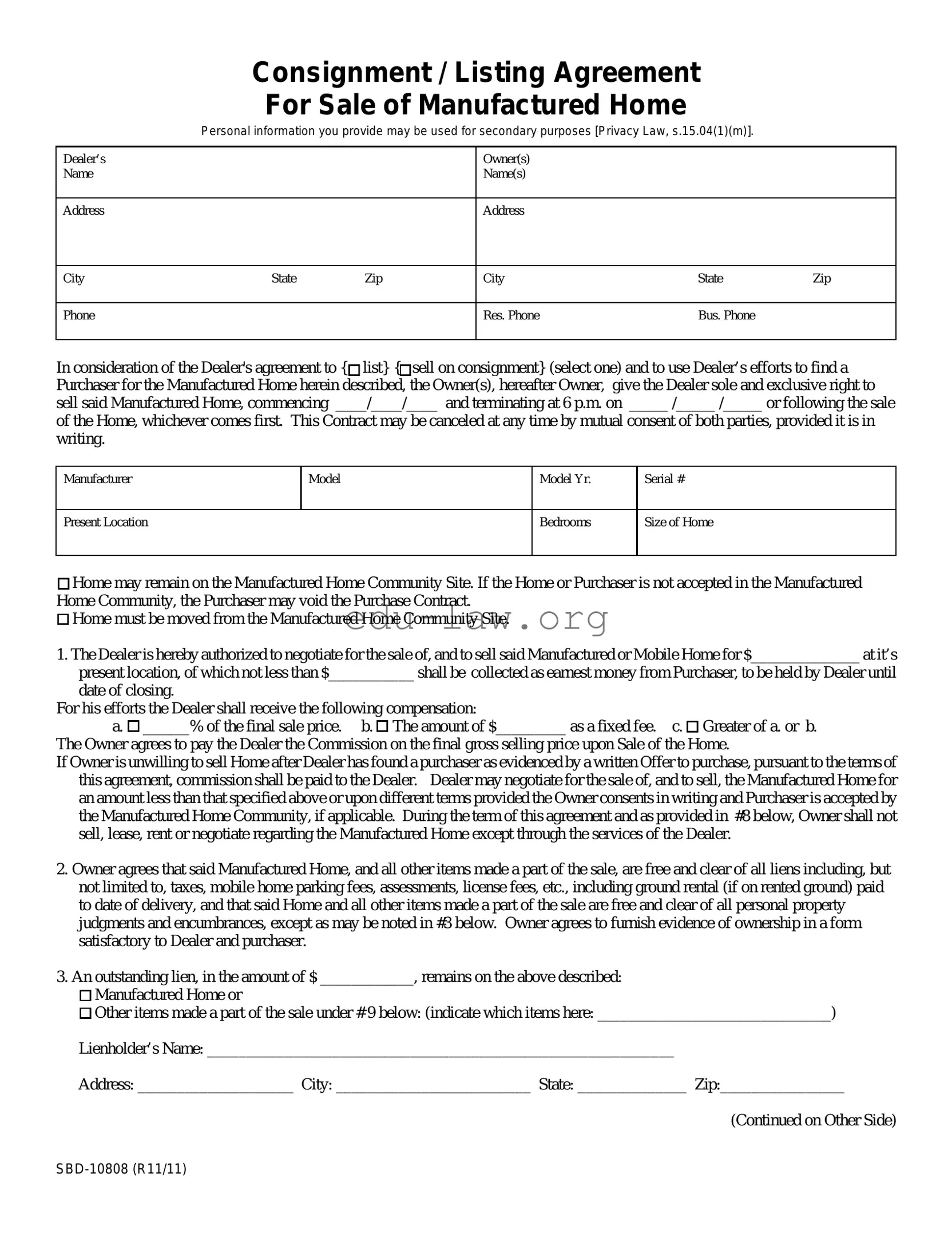
Consignment / Listing Agreement

For Sale of Manufactured Home

Personal information you provide may be used for secondary purposes [Privacy Law, s.15.04(1)(m)].

Dealer’s

 

 

Owner(s)

 

 

Name

 

 

Name(s)

 

 

 

 

 

 

 

 

Address

 

 

Address

 

 

 

 

 

 

 

 

City

State

Zip

City

State

Zip

 

 

 

 

 

 

Phone

 

 

Res. Phone

Bus. Phone

 

 

 

 

 

 

 

In consideration of the Dealer's agreement to { list} { sell on consignment} (select one) and to use Dealer’s efforts to find a Purchaser for the Manufactured Home herein described, the Owner(s), hereafter Owner, give the Dealer sole and exclusive right to sell said Manufactured Home, commencing ____/____/____ and terminating at 6 p.m. on _____ /_____ /_____ or following the sale

of the Home, whichever comes first. This Contract may be canceled at any time by mutual consent of both parties, provided it is in writing.

Manufacturer

Model

Model Yr.

Serial #

Present Location

Bedrooms

Size of Home

Home may remain on the Manufactured Home Community Site. If the Home or Purchaser is not accepted in the Manufactured Home Community, the Purchaser may void the Purchase Contract.

Home must be moved from the Manufactured Home Community Site.

1.The Dealer is hereby authorized to negotiate for the sale of, and to sell said Manufactured or Mobile Home for $______________ at it’s present location, of which not less than $___________ shall be collected as earnest money from Purchaser, to be held by Dealer until date of closing.

For his efforts the Dealer shall receive the following compensation:

a.  ______% of the final sale price. b.  The amount of $_________ as a fixed fee. c.  Greater of a. or b.

The Owner agrees to pay the Dealer the Commission on the final gross selling price upon Sale of the Home.

If Owner is unwilling to sell Home after Dealer has found a purchaser as evidenced by a written Offer to purchase, pursuant to the terms of this agreement, commission shall be paid to the Dealer. Dealer may negotiate for the sale of, and to sell, the Manufactured Home for an amount less than that specified above or upon different terms provided the Owner consents in writing and Purchaser is accepted by the Manufactured Home Community, if applicable. During the term of this agreement and as provided in #8 below, Owner shall not sell, lease, rent or negotiate regarding the Manufactured Home except through the services of the Dealer.

2.Owner agrees that said Manufactured Home, and all other items made a part of the sale, are free and clear of all liens including, but not limited to, taxes, mobile home parking fees, assessments, license fees, etc., including ground rental (if on rented ground) paid to date of delivery, and that said Home and all other items made a part of the sale are free and clear of all personal property judgments and encumbrances, except as may be noted in #3 below. Owner agrees to furnish evidence of ownership in a form satisfactory to Dealer and purchaser.

3.An outstanding lien, in the amount of $ ____________, remains on the above described:

Manufactured Home or

Other items made a part of the sale under # 9 below: (indicate which items here: ______________________________)

Lienholder’s Name: ____________________________________________________________

Address: ____________________ City: _________________________ State: ______________ Zip:________________

(Continued on Other Side)

SBD-10808 (R11/11)

4.Payment of Dealer's commission shall be due and payable upon closing of any contract to sell or sale made, and Dealer shall have an equitable lien upon said Home and upon the proceeds in whole or in part of from said sale until Dealer’s commission is paid in full.

5.Owner grants Dealer exclusive marketing rights for the Manufactured Home. Such rights include but are not limited to insertion of radio, television and newspaper ads, and placement of “For Sale” signs. If Owner unilaterally terminates or otherwise interferes with this agreement prior to the agreed upon termination date found above in this agreement, Owner agrees to pay Dealer

______% of the sale price stated in # 1 above as liquidated damages.

6.Property loss and liability insurance relative to the Manufactured Home described above shall, during the life of this agreement, regardless of the location of the home, be the responsibility of:

Current Owner listed above.  Other (Explain) ______________________________________________

Dealer listed above.

7.The Dealer assumes no responsibility for warranties either expressed or implied. The current Owner is solely responsible for all statements and claims related to quality, serviceability, functions, condition, past ownership, warranties, express or implied, regarding the above described Manufactured Home or other items made a part of the sale under # 9. Owner acknowledges that the sale of this consigned Manufactured Home is subject to the Dealer license provisions of SPS 305 of the Wisconsin Administrative Code. A used Manufactured Home is required to be inspected under the Code. The inspection creates no warranties, express or implied, based on the inspection by the Dealer or inspector. Owner acknowledges that technical knowledge such as that acquired by professional inspectors may be required to detect certain defects such as but not limited to asbestos, building code violations and floodplain status. Dealer is not providing professional inspection services.

8.If the Home is sold within six months after the expiration of this agreement to any person with whom the Dealer or any authorized agent has negotiated or shown the Home prior to the expiration of this agreement, Owner agrees to pay Dealer the commission set forth in this agreement.

9.Other Provisions and Additional Items included in Sale:

 Stove  Refrigerator  Microwave  Washer  Dryer  Curtains or blinds  Utility Shed  Air conditioner

Satellite Dish  Other:__________________________________________________________________________________

_____________________________________________________________________________________________________

10. Occupancy by purchaser may occur within _______ { days} { hours} (select one) of Purchaser’s closing with Dealer, or

Owner will pay $________ rent/day to the purchaser.

11.Owner agrees to indemnify and hold harmless Dealer in any dispute between Owner and any buyer or prospective buyer including any dispute arising from representations made by Dealer based upon information provided by Owner or Buyer, provided those representations were communicated in good faith.

Dated this _____ day of __________ , _________.

Dealer: _________________________________ Accepted by:_______________________________ (Sales representative)

(Print and Sign Form)

(Print and Sign Form)

Owner:_________________________________

Owner:_______________________________

(Print and Sign Form)

(Print and Sign Form)

SBD-10808 (R11/11)

File Specs

Fact Name Description
Purpose The Mobile Home Listing Agreement is designed to grant a listing agent the exclusive right to sell a mobile home on behalf of the seller.
Owner Information The form requires detailed information about the legal owner, including contact details and bank information.
Mobile Park Details It collects essential information about the mobile park, such as rent, space number, and park manager contact information.
Items Included The agreement specifies which items are included in the sale, ensuring clarity on what the buyer will receive.
Possession Timeline Possession of the property must be delivered to the buyer within 14 days after closing, unless otherwise agreed upon.
Governing Law This agreement is subject to state-specific laws, which may vary; it is important to refer to local regulations for compliance.

Mobile Home Listing Agreement - Usage Guidelines

Filling out the Mobile Home Listing Agreement form is a straightforward process that requires accurate information about the property, the owner, and the terms of sale. Completing this form correctly ensures that all parties are on the same page regarding the sale of the mobile home.

  1. Start with the Listing Company/Agent: Enter the name of the listing company or agent at the top of the form.
  2. Provide Contact Information: Fill in the address and phone number of the listing company or agent.
  3. Input Mobile Park Information: Include details such as the rent amount, space number, address, city, zip code, type of park, park manager’s name, and their phone number.
  4. Enter Owner Information: List the legal owner's name and phone number. Then, provide the bank's name and address, including city, state, and zip code. Don’t forget to include the account number and payoff amount, along with the good through date and per diem.
  5. Fill in Mobile Home Information: Specify the year, manufacturer, model, serial number, color, width, length, number of bedrooms, and number of bathrooms. Include any accessories or special equipment included in the sale.
  6. Check Remaining Items: Indicate which items will remain when the mobile home is sold by checking the appropriate boxes. If there are additional items not listed, write them in the "Other" section.
  7. Cash to Seller: Write the amount of cash the seller is willing to accept, noting that this amount is subject to any liens, encumbrances, or taxes.
  8. Complete the Listing Agreement: Enter the date, mutually agreed price, and the employment authority expiration date. Ensure the seller understands the commission or fee structure for the listing agent.

After completing the form, review all entries for accuracy. Once confirmed, both the seller and the listing agent should sign the document to finalize the agreement.

Your Questions, Answered

What is a Mobile Home Listing Agreement?

A Mobile Home Listing Agreement is a contract between the owner of a mobile home and a listing agent. This document grants the agent the exclusive right to sell the mobile home on behalf of the owner. It outlines the terms of the sale, including the price, the items included in the sale, and the responsibilities of both parties.

What information is required in the agreement?

The agreement requires several key pieces of information. This includes details about the listing company or agent, the mobile park, the owner, and the mobile home itself. Specifics such as the year, manufacturer, model, and dimensions of the mobile home, as well as any accessories included in the sale, must be provided.

What items are included in the sale?

Items that remain with the mobile home upon sale should be clearly listed in the agreement. Common items include appliances like refrigerators and washers, as well as any additional features such as decks or awnings. If there are items not explicitly listed, they should be included in the "Other" section of the agreement.

How is the sale price determined?

The sale price is mutually agreed upon by the seller and the listing agent. The seller indicates the cash amount they are willing to accept, which is subject to change based on negotiations. The agent may sell the home for a higher price, with any excess going to the agent as compensation for their services.

What happens after the sale?

Once the sale is finalized, the seller must deliver possession of the mobile home to the buyer within fourteen days after closing or funding. This timeframe can be adjusted if both parties agree in writing to a different arrangement.

Can the seller change their mind?

Once the agreement is signed, the seller grants the listing agent the exclusive right to sell the property. This agreement is irrevocable until the specified end date. If the seller wishes to terminate the agreement before that date, they must negotiate with the agent.

What if there are liens or encumbrances on the mobile home?

All items included in the sale must be free of liens and encumbrances unless stated otherwise in the agreement. If there are any existing liens, they should be disclosed in the document to avoid future complications during the sale process.

How long is the agreement valid?

The agreement remains in effect until the specified expiration date, which is noted in the document. This period allows the listing agent to actively market and sell the mobile home without interference from the seller.

Common mistakes

  1. Incomplete Information: One of the most common mistakes is leaving sections blank. Whether it’s the listing company, owner information, or mobile home details, every field should be filled out completely. Missing information can lead to delays or complications in the sale process.

  2. Incorrect Contact Details: Providing inaccurate phone numbers or addresses can hinder communication. Ensure that all contact details are correct so that potential buyers or agents can reach the seller without any issues.

  3. Failure to List All Items: Sellers often forget to include all accessories or special equipment that come with the mobile home. It’s crucial to list everything that is included in the sale to avoid misunderstandings later on.

  4. Not Specifying the Commission: The agreement should clearly state the commission or fee for the listing agent. Leaving this vague can lead to disputes about compensation once the sale is finalized.

  5. Ignoring the Possession Clause: Sellers sometimes overlook the possession timeline. It’s important to understand when the buyer will take possession of the property to ensure a smooth transition.

  6. Not Reading the Fine Print: Before signing, it's essential to review the entire agreement. Many people skip this step, missing critical terms that could impact the sale. Understanding every clause can prevent future disputes.

Documents used along the form

The Mobile Home Listing Agreement is an essential document for facilitating the sale of a mobile home. However, several other forms and documents often accompany it to ensure a smooth transaction. Below is a list of these additional documents, each serving a specific purpose in the sales process.

  • Purchase Agreement: This document outlines the terms and conditions of the sale, including the purchase price, payment terms, and contingencies. It serves as a binding contract between the buyer and seller once signed.
  • Disclosure Statement: Sellers are typically required to provide a disclosure statement detailing any known issues with the mobile home, such as structural problems or past repairs. This protects buyers by ensuring they are informed before making a purchase.
  • Financing Application: If the buyer requires financing, they will need to complete a financing application. This form collects financial information to help lenders assess the buyer's ability to repay a loan.
  • Title Transfer Document: This document is necessary for transferring ownership of the mobile home from the seller to the buyer. It typically includes details like the VIN (Vehicle Identification Number) and the names of both parties.
  • Bill of Sale: A bill of sale serves as proof of the transaction and includes details such as the purchase price and the date of sale. It is important for both parties to keep a copy for their records.
  • Inspection Report: An inspection report provides an assessment of the mobile home’s condition. Buyers often request this document to identify any potential issues before finalizing the sale.
  • Park Rules and Regulations: If the mobile home is located in a mobile home park, the buyer should receive a copy of the park's rules and regulations. This document outlines the expectations and responsibilities of residents.
  • Escrow Instructions: When using an escrow service, escrow instructions detail how the funds and documents will be handled during the transaction. This ensures that both parties fulfill their obligations before the sale is finalized.
  • Lead-Based Paint Disclosure: For homes built before 1978, federal law requires a lead-based paint disclosure. This document informs buyers of any potential lead hazards and is crucial for compliance with safety regulations.

These documents work together to create a comprehensive framework for the sale of a mobile home. Ensuring that all necessary forms are completed and understood can help prevent misunderstandings and protect the interests of both the buyer and seller.

Similar forms

The Residential Listing Agreement is a document that outlines the relationship between a property owner and a real estate agent. Similar to the Mobile Home Listing Agreement, it grants the agent exclusive rights to sell the property. Both agreements detail the terms of sale, including the listing price and the responsibilities of each party. The Residential Listing Agreement also specifies the duration of the agreement and any commissions owed to the agent upon the successful sale of the property.

The Exclusive Right to Sell Agreement is another document that shares similarities with the Mobile Home Listing Agreement. This agreement gives a real estate agent the exclusive right to sell a property for a specified period. Like the Mobile Home Listing Agreement, it includes details about the property, the seller's expectations, and the commission structure. This document ensures that the agent is compensated for their efforts, regardless of who ultimately sells the property.

The Buyer Representation Agreement establishes a relationship between a buyer and a real estate agent. While it focuses on the buyer's needs, it contains elements similar to the Mobile Home Listing Agreement, such as the identification of the property and the terms of engagement. Both documents outline the expectations of the parties involved and the compensation structure for the agent, ensuring clarity in the transaction process.

The Commercial Listing Agreement is used for the sale or lease of commercial properties. Like the Mobile Home Listing Agreement, it grants an agent the authority to represent the seller in negotiations. Both agreements include essential information about the property, the seller's requirements, and the commission structure. This document serves to protect the interests of both parties during the sale process.

The Lease Agreement is a contract between a landlord and a tenant that outlines the terms of renting a property. While it differs in purpose, it shares similarities with the Mobile Home Listing Agreement in that it details the responsibilities of both parties, including payment terms and property conditions. Both documents aim to establish clear expectations to minimize disputes during the term of the agreement.

The Purchase Agreement is a contract that outlines the terms of a sale between a buyer and a seller. Similar to the Mobile Home Listing Agreement, it includes details about the property, the sale price, and the closing process. Both documents serve to protect the interests of the parties involved by clearly defining the terms of the transaction and the obligations of each party.

The Property Management Agreement is a contract between a property owner and a management company. This document, like the Mobile Home Listing Agreement, specifies the responsibilities of the agent and the owner. Both agreements include terms related to compensation and the authority granted to the agent, ensuring a clear understanding of the management and sale processes.

The Seller Disclosure Statement is a document that provides potential buyers with important information about a property. While its primary purpose differs, it complements the Mobile Home Listing Agreement by ensuring transparency in the sale process. Both documents aim to protect the interests of the parties involved by providing essential information that can influence the sale.

The Option Agreement allows a buyer to purchase a property at a predetermined price within a specific timeframe. Similar to the Mobile Home Listing Agreement, it outlines the terms of the transaction and the responsibilities of both parties. This document serves to clarify the buyer's rights and the seller's obligations, ensuring a smooth transaction process.

The Real Estate Purchase and Sale Agreement is a comprehensive document that details the terms of a real estate transaction. Like the Mobile Home Listing Agreement, it includes information about the property, the sale price, and the responsibilities of each party. Both agreements aim to provide clarity and protection for all involved, facilitating a successful transaction.

Dos and Don'ts

When filling out the Mobile Home Listing Agreement form, it’s important to ensure that all information is accurate and complete. Here are some key dos and don’ts to keep in mind:

  • Do double-check all entries for accuracy before submitting the form. Mistakes can lead to complications later on.
  • Do provide clear and detailed information about the mobile home, including its condition and any included accessories.
  • Don’t leave any sections blank unless instructed. Incomplete forms can delay the listing process.
  • Don’t forget to sign and date the agreement. An unsigned document is not valid and cannot be processed.

Misconceptions

Understanding the Mobile Home Listing Agreement form is crucial for both sellers and agents. Unfortunately, several misconceptions can lead to confusion. Here are four common misconceptions:

  • Misconception 1: The agreement is only beneficial for the agent.
  • This is not true. While the agent does gain the right to sell the mobile home, the agreement also protects the seller's interests. It establishes clear terms for the sale, ensuring that both parties understand their rights and responsibilities.

  • Misconception 2: The seller cannot change the terms once the agreement is signed.
  • In reality, the seller and the agent can negotiate changes to the agreement as long as both parties agree and document any modifications in writing. Flexibility is an important aspect of the selling process.

  • Misconception 3: The seller must accept the first offer received.
  • This misconception is misleading. The seller retains the right to evaluate all offers and choose the one that best meets their needs. The agreement provides a framework for negotiations, allowing the seller to make informed decisions.

  • Misconception 4: Items listed in the agreement are automatically included in the sale.
  • Not necessarily. While the agreement outlines specific items that may be included, it is essential for the seller to clarify which items are part of the sale. Any additional items should be explicitly listed to avoid misunderstandings.

Key takeaways

Filling out and using the Mobile Home Listing Agreement form is a crucial step in the process of selling a mobile home. Here are some key takeaways to ensure a smooth experience:

  • Complete All Sections: Ensure that every section of the form is filled out completely. Missing information can lead to delays or complications in the selling process.
  • Understand Park Information: Accurately provide details about the mobile park, including rent, space number, and park manager contact information. This helps potential buyers understand their living situation.
  • Clearly List Included Items: Make sure to specify all accessories and special equipment included in the sale. This prevents misunderstandings about what is part of the transaction.
  • Review Financial Terms: Clearly state the cash amount the seller is willing to accept. This figure should reflect any outstanding liens or taxes to avoid confusion later.
  • Know Your Rights: The agreement grants the listing agent the exclusive right to sell the property. Familiarize yourself with the terms to understand your obligations and rights throughout the process.
  • Set a Timeline: Pay attention to the possession timeline. The property should be delivered to the buyer within fourteen days after closing unless otherwise agreed upon. This helps manage expectations for both parties.

By keeping these key points in mind, you can navigate the Mobile Home Listing Agreement form with confidence, ensuring a successful sale process.