Homepage Fill in Your Michigan Property Transfer Affidavit 2766 Template
Table of Contents

The Michigan Property Transfer Affidavit 2766 form plays a crucial role in the real estate transaction process, ensuring that property transfers are recorded accurately and efficiently. This form is primarily used to report the sale or transfer of real property within the state of Michigan, detailing essential information such as the property’s description, the names of the buyer and seller, and the sale price. By completing this affidavit, parties involved in the transaction provide the local tax assessor with necessary data, which helps in determining the property's taxable value. Additionally, the form serves to confirm that all parties are aware of the implications of the transfer, including any potential tax liabilities. Properly filing this affidavit not only complies with state regulations but also protects the interests of both buyers and sellers, making it a vital component of any property transaction in Michigan.

Sample - Michigan Property Transfer Affidavit 2766 Form

 

 

 

 

 

 

 

 

 

 

 

 

Reset Form

 

 

 

 

 

 

 

 

 

 

 

 

 

 

 

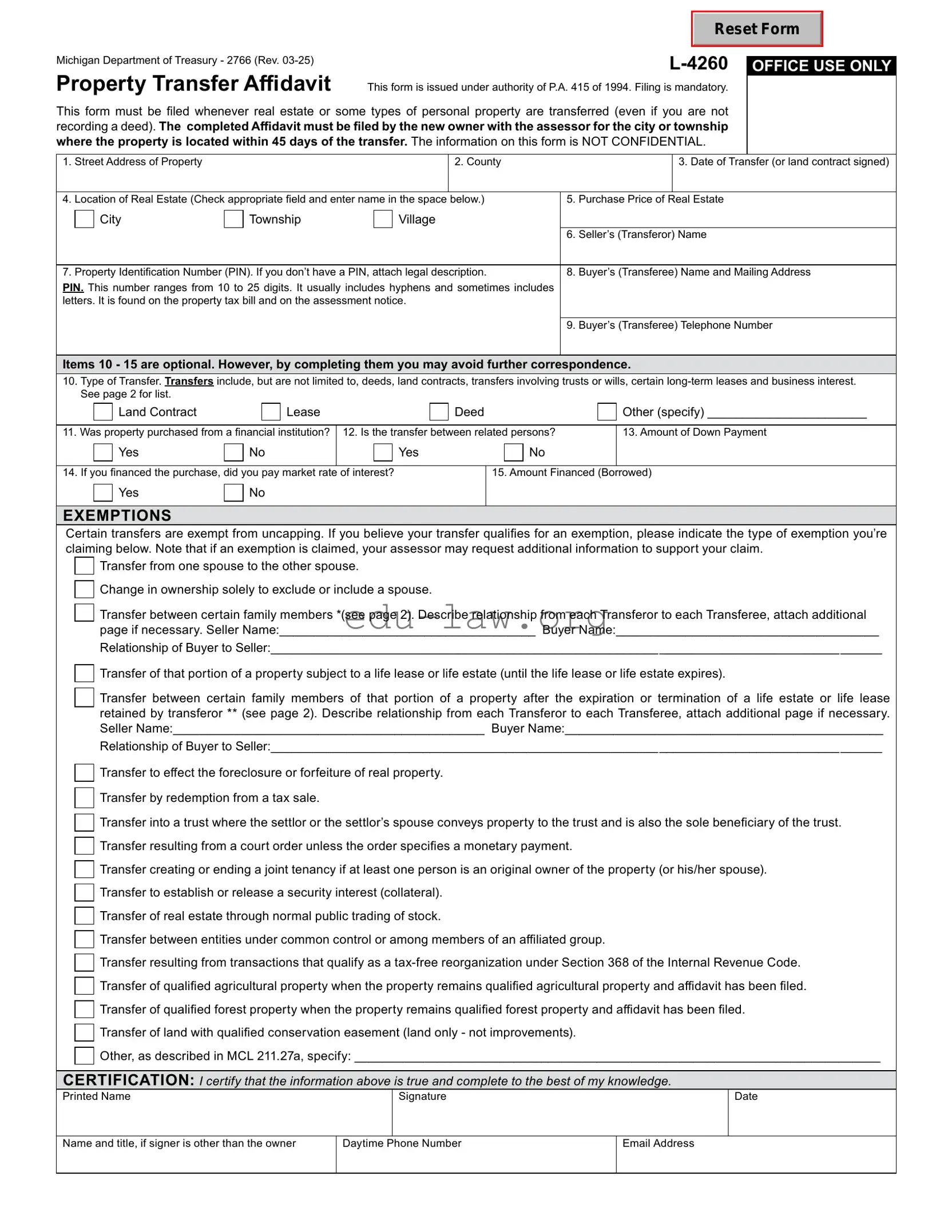
Michigan Department of Treasury - 2766 (Rev. 03-25)

 

 

 

 

 

L-4260

OFFICE USE ONLY

 

 

 

 

 

 

 

 

 

 

Property Transfer Affidavit

This form is issued under authority of P.A. 415 of 1994. Filing is mandatory.

 

 

 

 

This form must be filed whenever real estate or some types of personal property are transferred (even if you are not

 

 

recording a deed). The completed Affidavit must be filed by the new owner with the assessor for the city or township

 

 

where the property is located within 45 days of the transfer. The information on this form is NOT CONFIDENTIAL.

 

 

 

 

 

 

 

 

 

 

 

 

 

 

 

 

 

1. Street Address of Property

 

 

 

 

 

2. County

 

 

3. Date of Transfer (or land contract signed)

 

 

 

 

 

 

 

 

 

 

 

 

 

 

4. Location of Real Estate (Check appropriate field and enter name in the space

below.)

5.

Purchase Price of

Real Estate

 

 

 

 

City

 

Township

 

 

Village

 

 

 

 

 

 

 

 

 

 

 

 

 

 

 

 

 

 

 

 

 

 

 

 

 

 

6.

Seller’s (Transferor) Name

 

 

 

 

 

 

 

 

 

 

 

 

 

 

 

 

7. Property Identification Number (PIN). If you don’t have a PIN, attach legal description.

8.

Buyer’s (Transferee) Name and Mailing Address

PIN. This number ranges from 10 to 25 digits. It usually includes hyphens and sometimes includes

 

 

 

 

 

 

letters. It is found on the property tax bill and on the assessment notice.

 

 

 

 

 

 

 

 

 

 

 

 

 

 

 

 

 

 

 

 

 

 

 

 

 

 

 

 

 

 

9.

Buyer’s (Transferee) Telephone Number

 

 

 

 

 

 

 

 

 

 

 

 

 

 

 

Items 10 - 15 are optional. However, by completing them you may avoid further correspondence.

10.Type of Transfer. Transfers include, but are not limited to, deeds, land contracts, transfers involving trusts or wills, certain long-term leases and business interest.

See page 2 for list.

Land Contract

Lease

Deed

Other (specify) _______________________

11. Was property purchased from a financial institution?

12. Is the transfer between related persons?

13. Amount of Down Payment

 

 

Yes

 

No

 

 

Yes

 

 

No

 

 

 

 

 

 

 

 

 

 

 

 

 

14. If you financed the purchase, did you pay market rate

of interest?

15. Amount Financed (Borrowed)

 

 

Yes

 

No

 

 

 

 

 

 

 

 

 

 

 

 

 

 

 

 

 

EXEMPTIONS

Certain transfers are exempt from uncapping. If you believe your transfer qualifies for an exemption, please indicate the type of exemption you’re claiming below. Note that if an exemption is claimed, your assessor may request additional information to support your claim.

Transfer from one spouse to the other spouse.

Change in ownership solely to exclude or include a spouse.

Transfer between certain family members *(see page 2). Describe relationship from each Transferor to each Transferee, attach additional page if necessary. Seller Name:_____________________________________ Buyer Name:______________________________________

Relationship of Buyer to Seller:________________________________________________________________________________________

Transfer of that portion of a property subject to a life lease or life estate (until the life lease or life estate expires).

Transfer between certain family members of that portion of a property after the expiration or termination of a life estate or life lease retained by transferor ** (see page 2). Describe relationship from each Transferor to each Transferee, attach additional page if necessary. Seller Name:_____________________________________________ Buyer Name:______________________________________________

Relationship of Buyer to Seller:________________________________________________________________________________________

Transfer to effect the foreclosure or forfeiture of real property.

Transfer by redemption from a tax sale.

Transfer into a trust where the settlor or the settlor’s spouse conveys property to the trust and is also the sole beneficiary of the trust.

Transfer resulting from a court order unless the order specifies a monetary payment.

Transfer creating or ending a joint tenancy if at least one person is an original owner of the property (or his/her spouse).

Transfer to establish or release a security interest (collateral).

Transfer of real estate through normal public trading of stock.

Transfer between entities under common control or among members of an affiliated group.

Transfer resulting from transactions that qualify as a tax-free reorganization under Section 368 of the Internal Revenue Code.

Transfer of qualified agricultural property when the property remains qualified agricultural property and affidavit has been filed. Transfer of qualified forest property when the property remains qualified forest property and affidavit has been filed.

Transfer of land with qualified conservation easement (land only - not improvements).

Other, as described in MCL 211.27a, specify: ____________________________________________________________________________

CERTIFICATION: I certify that the information above is true and complete to the best of my knowledge.

Printed Name

Signature

Date

Name and title, if signer is other than the owner

Daytime Phone Number

Email Address

2766, Page 2

Instructions:

This form must be filed when there is a transfer of real property or one of the following types of personal property:

Buildings on leased land.

Leasehold improvements, as defined in MCL Section 211.8(h).

Leasehold estates, as defined in MCL Section 211.8(i) and (j).

Transfer of ownership means the conveyance of title to or a present interest in property, including the beneficial use of the property. For complete descriptions of qualifying transfers, please refer to MCL Section 211.27a(6)(a-j).

Excerpts from Michigan Compiled Laws (MCL), Chapter 211

**Section 211.27a(7)(d): Beginning December 31, 2014, a transfer of that portion of residential real property that had been subject to a life estate or life lease retained by the transferor resulting from expiration or termination of that life estate or life lease, if the transferee is the transferor’s or transferor’s spouse’s mother, father, brother, sister, son, daughter, adopted son, adopted daughter, grandson, or granddaughter and the residential real property is not used for any commercial purpose following the transfer. Upon request by the department of treasury or the assessor, the transferee shall furnish proof within 30 days that the transferee meets the requirements of this subdivision. If a transferee fails to comply with a request by the department of treasury or assessor under this subdivision, that transferee is subject to a fine of $200.00.

*Section 211.27a(7)(u): Beginning December 31, 2014, a transfer of residential real property if the transferee is the transferor’s or the transferor’s spouse’s mother, father, brother, sister, son, daughter, adopted son, adopted daughter, grandson, or granddaughter and the residential real property is not used for any commercial purpose following the conveyance. Upon request by the department of treasury or the assessor, the transferee shall furnish proof within 30 days that the transferee meets the requirements of this subparagraph. If a transferee fails to comply with a request by the department of treasury or assessor under this subparagraph, that transferee is subject to a fine of $200.00.

Section 211.27a(10): “... the buyer, grantee, or other transferee of the property shall notify the appropriate assessing office in the local unit of government in which the property is located of the transfer of ownership of the property within 45 days of the transfer of ownership, on a form prescribed by the state tax commission that states the parties to the transfer, the date of the transfer, the actual consideration for the transfer, and the property’s parcel identification number or legal description.”

Section 211.27(6): “Except as otherwise provided in subsection (7), the purchase price paid in a transfer of property is not the presumptive true cash value of the property transferred. In determining the true cash value of transferred property, an assessing officer shall assess that property using the same valuation method used to value all other property of that same classification in the assessing jurisdiction.”

Penalties:

Section 211.27b(1): “If the buyer, grantee, or other transferee in the immediately preceding transfer of ownership of property does not notify the appropriate assessing office as required by section 27a(10), the property’s taxable value shall be adjusted under section 27a(3) and, subject to subsection (9), all of the following must be levied:

(a)Any additional taxes that would have been levied if the transfer of ownership had been recorded as required under this act from the date of transfer.

(b)Interest and penalty from the date the tax would have been originally levied.

(c)For property classified under section 34c as either industrial real property or commercial real property, a penalty in the following amount:

(i)Except as otherwise provided in subparagraph (ii), if the sale price of the property transferred is $100,000,000.00 or less, $20.00 per day for each separate failure beginning after the 45 days have elapsed, up to a maximum of $1,000.00.

(ii)If the sale price of the property transferred is more than $100,000,000.00, $20,000.00 after the 45 days have elapsed.

(d)For real property other than real property classified under section 34c as industrial real property or commercial real property, a penalty of $5.00 per day for each separate failure beginning after the 45 days have elapsed, up to a maximum of one of the following, as applicable:

(i)For property owned and occupied as a principal residence, $200.00. As used in subparagraph, “principal residence” means that term as defined in section 7dd.

(ii)For all other property, $4000.00

File Specs

Fact Name Description
Purpose The Michigan Property Transfer Affidavit 2766 form is used to report the transfer of property ownership to the local assessor.
Governing Law This form is governed by the Michigan Compiled Laws, specifically MCL 211.27a.
Filing Requirement Property owners must file this affidavit within 45 days of the property transfer to avoid penalties.
Information Required The form requires details such as the property address, buyer and seller information, and the sale price.
Impact on Taxes Filing the affidavit helps determine the property's taxable value and ensures accurate assessment for future tax purposes.

Michigan Property Transfer Affidavit 2766 - Usage Guidelines

After obtaining the Michigan Property Transfer Affidavit 2766 form, you will need to complete it accurately to ensure proper processing. Follow the steps below to fill out the form correctly.

  1. Begin by entering the property address in the designated field.
  2. Provide the name of the current owner as it appears on the property deed.
  3. Fill in the name of the new owner who will be taking possession of the property.
  4. Indicate the date of transfer in the specified section.
  5. Complete the section regarding the type of transfer (e.g., sale, gift, etc.).
  6. List the consideration amount for the property, if applicable.
  7. Provide any additional information requested in the form, such as property identification number or legal description.
  8. Sign and date the form at the bottom, ensuring that the information is accurate and complete.

Once the form is filled out, it should be submitted to the appropriate local government office for processing. Keep a copy for your records.

Your Questions, Answered

What is the Michigan Property Transfer Affidavit 2766 form?

The Michigan Property Transfer Affidavit 2766 form is a document used to report the transfer of property ownership in Michigan. It provides important information about the property, including its assessed value and any changes that may affect property taxes. This form is typically required when real estate is sold, transferred, or inherited.

Who needs to file the Property Transfer Affidavit?

Anyone involved in the transfer of real estate in Michigan must file this affidavit. This includes sellers, buyers, and individuals who inherit property. If you are a property owner and the ownership changes, you are responsible for submitting this form.

When should the form be filed?

The Property Transfer Affidavit should be filed within 45 days of the property transfer. Timely filing is crucial to ensure that the local assessor is aware of the change in ownership, which can affect property taxes and assessments.

Where can I obtain the Property Transfer Affidavit 2766 form?

You can obtain the Michigan Property Transfer Affidavit 2766 form from the Michigan Department of Treasury website or your local assessor's office. Many offices also provide physical copies of the form for convenience.

What information is required on the form?

The form requires details such as the names of the buyer and seller, the property address, the sale price, and the date of transfer. Additionally, you may need to provide information about any exemptions or special circumstances related to the property.

Is there a fee to file the Property Transfer Affidavit?

There is no fee associated with filing the Michigan Property Transfer Affidavit 2766 form. However, you may incur fees related to recording the deed or other documents associated with the property transfer.

What happens if I don’t file the affidavit?

If you fail to file the Property Transfer Affidavit, you may face penalties, including potential issues with property tax assessments. The local assessor may not have accurate information about the property, which could lead to higher taxes or other complications.

Can I file the affidavit online?

Currently, the Michigan Property Transfer Affidavit must be filed in person or by mail. Some local jurisdictions may offer online filing options, so it’s best to check with your local assessor’s office for their specific procedures.

What if I make a mistake on the form?

If you make a mistake on the Property Transfer Affidavit, you should correct it as soon as possible. Contact your local assessor’s office for guidance on how to amend the form. It’s important to ensure that all information is accurate to avoid issues down the line.

Common mistakes

  1. Incorrect Property Description: Failing to provide a complete and accurate description of the property can lead to complications. This includes not specifying the correct parcel number or legal description, which are critical for identifying the property in question.

  2. Omitting Required Signatures: The affidavit must be signed by all parties involved in the transfer. Neglecting to obtain necessary signatures can render the form invalid, leading to delays or issues with the transfer process.

  3. Incorrectly Reporting Sale Price: Providing an inaccurate sale price can result in issues with property taxes and assessments. It's important to report the actual sale price to avoid discrepancies that could trigger audits or penalties.

  4. Failure to Submit Within the Required Timeframe: The Michigan Property Transfer Affidavit must be submitted within a specific period following the transfer. Missing this deadline can lead to fines or other complications.

  5. Neglecting to Include Additional Documentation: Certain transactions may require supporting documents, such as a deed or proof of identity. Failing to include these can delay the processing of the affidavit.

  6. Inaccurate Tax Information: Providing incorrect information regarding property taxes can lead to issues with local tax authorities. Ensuring that tax information is accurate is essential for a smooth transfer.

Documents used along the form

The Michigan Property Transfer Affidavit 2766 form is essential for reporting property transfers in Michigan. When completing this process, several other forms and documents may be necessary to ensure compliance with state regulations. Below is a list of commonly used forms that often accompany the Property Transfer Affidavit.

  • Michigan State Tax Form 518: This form is used to report the sale of property and calculate any state taxes owed. It helps ensure that the seller meets their tax obligations.
  • Quit Claim Deed: This legal document transfers ownership of property from one party to another. It is often used in property transfers between family members or in informal sales.
  • Warranty Deed: A warranty deed provides a guarantee that the seller holds clear title to the property and has the right to sell it. This form protects the buyer against future claims on the property.
  • Affidavit of Title: This document confirms the seller's legal ownership of the property and asserts that there are no liens or encumbrances. It is often required by title companies during the closing process.
  • Property Disclosure Statement: Sellers must provide this form to disclose any known issues with the property, such as structural problems or environmental hazards. It protects buyers by ensuring they are aware of potential risks.
  • Closing Statement: Also known as a HUD-1, this document outlines all financial details of the transaction, including costs, fees, and the final amount due at closing. It provides transparency for both parties.
  • Title Insurance Policy: This policy protects the buyer and lender against potential disputes over property ownership. It is typically purchased during the closing process to safeguard against future claims.
  • Mortgage Documents: If the buyer is financing the purchase, various mortgage documents will be required. These include the loan application, promissory note, and mortgage agreement.
  • Transfer Tax Affidavit: This form is used to report the transfer tax due on the sale of property. It ensures that the appropriate taxes are collected by the state at the time of the transfer.

Utilizing these forms and documents alongside the Michigan Property Transfer Affidavit 2766 ensures a smooth property transfer process. Each document serves a specific purpose, contributing to the legality and transparency of the transaction.

Similar forms

The Michigan Property Transfer Affidavit 2766 form is similar to the Real Property Transfer Declaration, commonly used in various states. This document serves a similar purpose by providing information about the transfer of real property. It includes details about the buyer, seller, and the property itself. Both documents aim to ensure transparency in property transactions and are often required for tax assessment purposes. The Real Property Transfer Declaration may also be used to report the sale price and any exemptions that may apply, which is crucial for local tax authorities.

Another document comparable to the Michigan Property Transfer Affidavit is the Deed. A deed is a legal instrument that formally conveys ownership of real estate from one party to another. While the affidavit provides information about the transaction, the deed serves as the official record of the transfer. Both documents must be completed accurately to avoid legal disputes and ensure that the transfer is recognized by local governments. The deed must be recorded with the county clerk to establish public notice of ownership, while the affidavit may be used for tax purposes.

The Statement of Information is another document that bears similarities to the Michigan Property Transfer Affidavit. This document is often requested during property transactions to provide additional context about the parties involved. It may include information about the buyer’s and seller’s identities, their financial status, and any potential liens or encumbrances on the property. Like the affidavit, the Statement of Information helps facilitate a smoother transaction by ensuring that all relevant details are disclosed to the involved parties and authorities.

The Certificate of Compliance also shares similarities with the Michigan Property Transfer Affidavit. This document verifies that a property complies with local zoning laws and building codes. While the affidavit focuses on the transfer of ownership, the Certificate of Compliance ensures that the property is in good standing and adheres to necessary regulations. Both documents are essential in protecting the interests of buyers and sellers, as they help mitigate potential legal issues that could arise from non-compliance.

Lastly, the Affidavit of Title is another document that relates closely to the Michigan Property Transfer Affidavit. This affidavit is a sworn statement confirming the seller’s ownership of the property and their right to sell it. It provides assurance to the buyer that there are no undisclosed claims or liens against the property. Similar to the property transfer affidavit, the Affidavit of Title plays a crucial role in establishing trust between the parties involved in the transaction, ensuring that the buyer can proceed with confidence in their purchase.

Dos and Don'ts

When filling out the Michigan Property Transfer Affidavit 2766 form, it's important to follow certain guidelines to ensure accuracy and compliance. Here are some dos and don'ts to keep in mind:

  • Do read the instructions carefully before starting the form.
  • Do provide accurate information about the property and the parties involved.
  • Do sign and date the affidavit where required.
  • Do keep a copy of the completed form for your records.
  • Don't leave any required fields blank; incomplete forms may be rejected.
  • Don't use whiteout or erase any information on the form.
  • Don't submit the form without reviewing it for errors.
  • Don't forget to check the submission deadline to avoid penalties.

Misconceptions

The Michigan Property Transfer Affidavit 2766 form is an important document in real estate transactions, yet several misconceptions surround its purpose and requirements. Below is a list of common misunderstandings regarding this form.

  • Misconception 1: The form is only necessary for sales involving a realtor.
  • This is incorrect. The Michigan Property Transfer Affidavit must be filed for all property transfers, regardless of whether a realtor is involved.

  • Misconception 2: Only the seller needs to complete the affidavit.
  • Both the buyer and seller must provide information on the affidavit. This ensures that all parties are aware of the property’s assessed value and any potential tax implications.

  • Misconception 3: The affidavit is only required for residential properties.
  • This form applies to all types of real estate transactions, including commercial and industrial properties, not just residential ones.

  • Misconception 4: The affidavit can be submitted at any time after the sale is finalized.
  • There is a specific timeframe for submitting the affidavit. It must be filed within 45 days of the property transfer to ensure compliance with state regulations.

  • Misconception 5: Completing the form is optional if the property is transferred between family members.
  • This is a misconception. Even transfers among family members require the completion and submission of the affidavit to maintain accurate property records.

  • Misconception 6: The affidavit only affects property taxes for the current year.
  • Filing the affidavit can influence future property tax assessments. Accurate reporting can help prevent discrepancies in future valuations.

  • Misconception 7: The affidavit does not need to be notarized.
  • While notarization is not a requirement for the Michigan Property Transfer Affidavit, it is advisable to ensure the authenticity of the signatures and information provided.

Key takeaways

When dealing with the Michigan Property Transfer Affidavit 2766 form, there are several important points to keep in mind. Understanding these can help ensure a smooth process during property transfers.

  • Purpose of the Form: This form is primarily used to report the transfer of property ownership to the local assessor.
  • Who Needs to File: Sellers or buyers of real estate in Michigan are typically responsible for completing this form.
  • Filing Deadline: The affidavit must be filed within 45 days of the property transfer to avoid potential penalties.
  • Accurate Information: Providing accurate details about the property, including its address and legal description, is crucial.
  • Market Value: The form requires you to state the property's market value at the time of transfer, which can affect future taxes.
  • Signature Requirement: Both parties involved in the transaction may need to sign the affidavit, depending on the circumstances.
  • Local Assessor's Office: After completion, the form should be submitted to the local assessor's office for processing.
  • Record Keeping: Keep a copy of the completed form for your records, as it may be needed for future reference.
  • Consultation: If uncertain about any part of the process, consider seeking advice from a real estate professional or attorney.

By adhering to these key points, you can navigate the Michigan Property Transfer Affidavit 2766 form with greater confidence and clarity.