Homepage Fill in Your Job Briefing Template
Table of Contents

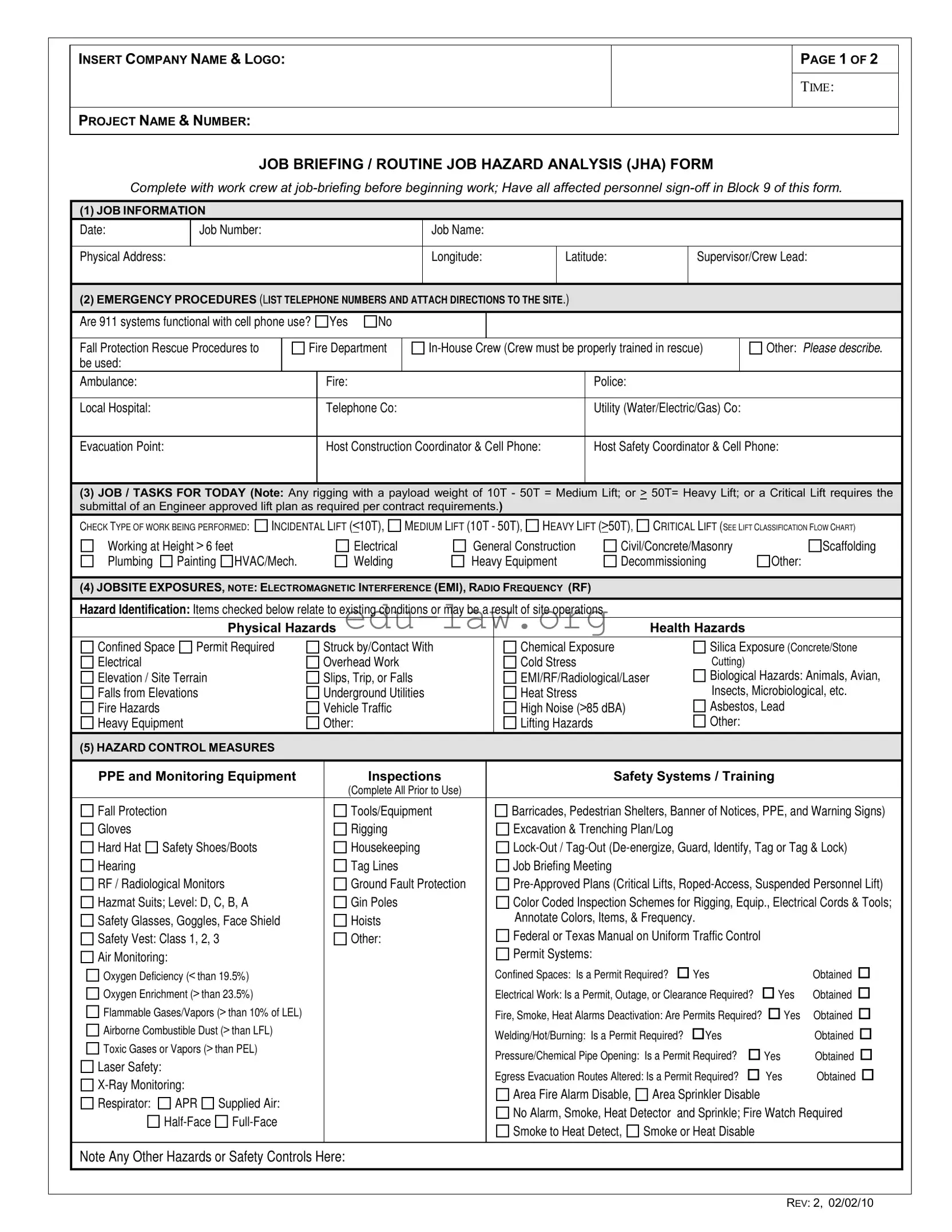
The Job Briefing form serves as a critical tool in ensuring safety and effective communication among work crews before commencing any project. This document encompasses several essential sections that guide the briefing process, starting with job information such as the date, job number, and physical address. Emergency procedures are clearly outlined, including necessary contact numbers and specific evacuation points, ensuring that all personnel are prepared for unforeseen circumstances. The form also details the tasks to be performed, categorizing them by type and weight, which is vital for planning and safety measures. Identifying potential jobsite exposures is another key aspect, where various physical and health hazards are listed to raise awareness among crew members. Additionally, the form emphasizes the importance of hazard control measures, such as personal protective equipment and safety systems, which must be in place before any work begins. Finally, the document concludes with a section for reviews and signatures, ensuring that all affected personnel acknowledge their understanding of the job briefing and the associated risks.

Sample - Job Briefing Form

INSERT COMPANY NAME & LOGO:

PROJECT NAME & NUMBER:

PAGE 1 OF 2

TIME:

JOB BRIEFING / ROUTINE JOB HAZARD ANALYSIS (JHA) FORM

Complete with work crew at job-briefing before beginning work; Have all affected personnel sign-off in Block 9 of this form.

(1) JOB INFORMATION

Date:

Job Number:

Job Name:

 

 

 

Physical Address:

 

Longitude:

 

 

 

Latitude:

Supervisor/Crew Lead:

(2)EMERGENCY PROCEDURES (LIST TELEPHONE NUMBERS AND ATTACH DIRECTIONS TO THE SITE.)

Are 911 systems functional with cell phone use?

Yes

No

 

 

 

 

 

 

 

 

 

 

 

Fall Protection Rescue Procedures to

Fire Department

In-House Crew (Crew must be properly trained in rescue)

 

Other: PLEASE DESCRIBE.

be used:

 

 

 

 

 

 

 

Ambulance:

 

Fire:

 

 

Police:

 

 

 

 

 

 

 

Local Hospital:

 

Telephone Co:

 

Utility (Water/Electric/Gas) Co:

 

Evacuation Point:

Host Construction Coordinator & Cell Phone:

Host Safety Coordinator & Cell Phone:

(3)JOB / TASKS FOR TODAY (Note: Any rigging with a payload weight of 10T - 50T = Medium Lift; or > 50T= Heavy Lift; or a Critical Lift requires the submittal of an Engineer approved lift plan as required per contract requirements.)

CHECK TYPE OF WORK BEING PERFORMED:

INCIDENTAL LIFT (<10T),

MEDIUM LIFT (10T - 50T),

HEAVY LIFT (>50T),

CRITICAL LIFT (SEE LIFT CLASSIFICATION FLOW CHART)

Working at Height > 6 feet

Plumbing Painting HVAC/Mech.

Electrical Welding

General Construction Heavy Equipment

Civil/Concrete/Masonry Decommissioning

Scaffolding

Other:

(4) JOBSITE EXPOSURES, NOTE: ELECTROMAGNETIC INTERFERENCE (EMI), RADIO FREQUENCY (RF)

HAZARD IDENTIFICATION: Items checked below relate to existing conditions or may be a result of site operations

 

 

Physical Hazards

 

Health Hazards

 

 

 

 

 

 

 

 

Confined Space

Permit Required

Struck by/Contact With

Chemical Exposure

Silica Exposure (Concrete/Stone

 

Electrical

 

Overhead Work

Cold Stress

Cutting)

 

Elevation / Site Terrain

Slips, Trip, or Falls

EMI/RF/Radiological/Laser

Biological Hazards: Animals, Avian,

 

Falls from Elevations

Underground Utilities

Heat Stress

Insects, Microbiological, etc.

 

Fire Hazards

 

Vehicle Traffic

High Noise (>85 dBA)

Asbestos, Lead

 

Heavy Equipment

 

Other:

Lifting Hazards

Other:

 

 

 

 

 

 

 

(5) HAZARD CONTROL MEASURES

 

 

 

 

 

 

 

 

 

 

 

PPE and Monitoring Equipment

Inspections

Safety Systems / Training

 

 

 

 

 

(Complete All Prior to Use)

 

 

 

 

 

Fall Protection

 

Tools/Equipment

Barricades, Pedestrian Shelters, Banner of Notices, PPE, and Warning Signs)

Gloves

 

 

Rigging

Excavation & Trenching Plan/Log

 

 

 

Hard Hat

Safety Shoes/Boots

Housekeeping

Lock-Out / Tag-Out (De-energize, Guard, Identify, Tag or Tag & Lock)

 

Hearing

 

 

Tag Lines

Job Briefing Meeting

 

 

 

 

RF / Radiological Monitors

Ground Fault Protection

Pre-Approved Plans (Critical Lifts, Roped-Access, Suspended Personnel Lift)

Hazmat Suits; Level: D, C, B, A

Gin Poles

Color Coded Inspection Schemes for Rigging, Equip., Electrical Cords & Tools;

Safety Glasses, Goggles, Face Shield

Hoists

Annotate Colors, Items, & Frequency.

 

 

 

 

 

 

 

 

Safety Vest: Class 1, 2, 3

Other:

Federal or Texas Manual on Uniform Traffic Control

 

 

 

 

 

 

 

Air Monitoring:

 

 

Permit Systems:

 

 

 

 

 

 

 

 

 

 

 

Oxygen Deficiency (< than 19.5%)

 

Confined Spaces: Is a Permit Required? Yes

 

Obtained

Oxygen Enrichment (> than 23.5%)

 

Electrical Work: Is a Permit, Outage, or Clearance Required? Yes

Obtained

Flammable Gases/Vapors (> than 10% of LEL)

 

Fire, Smoke, Heat Alarms Deactivation: Are Permits Required? Yes

Obtained

Airborne Combustible Dust (> than LFL)

 

Welding/Hot/Burning: Is a Permit Required? Yes

 

Obtained

 

 

 

 

 

Toxic Gases or Vapors (> than PEL)

 

Pressure/Chemical Pipe Opening: Is a Permit Required?

Yes

Obtained

Laser Safety:

 

 

 

 

 

 

Egress Evacuation Routes Altered: Is a Permit Required?

Yes

Obtained

X-Ray Monitoring:

 

 

 

 

Area Fire Alarm Disable,

Area Sprinkler Disable

 

 

Respirator:

APR

Supplied Air:

 

 

 

 

No Alarm, Smoke, Heat Detector and Sprinkle; Fire Watch Required

 

 

Half-Face

Full-Face

 

 

 

 

Smoke to Heat Detect,

Smoke or Heat Disable

 

 

 

 

 

 

 

 

 

 

 

 

 

 

 

 

 

Note Any Other Hazards or Safety Controls Here:

REV: 2, 02/02/10

INSERT COMPANY NAME & LOGO:

PROJECT NAME & NUMBER:

PAGE 2 OF 2

TIME:

JOB BRIEFING / ROUTINE JOB HAZARD ANALYSIS (JHA) FORM

(6)COMPLETE FOR CIVIL WORK (PLEASE NOTE: ENGINEER APPROVED TRENCHING PLAN REQUIRED FOR TRENCHES > 5’)

NOT APPLICABLE

NOTE: Notify and confirm proper procedures, mitigation and/or protective steps taken with your company’s designated Safety Representative & Site Manager before

entering: any trench or any general excavation that is greater than 5’ deep; or any Confined Space.

1. Describe type and depth of excavations

Type A Soil/Rock

Type B Soil/Rock

Type C Soil/Rock:

Dig-Tess / One Call

2. Cave-in / Engulfment control measures to be used if excavation will be greater than 5 feet and personnel are entering the trench.

Shoring

Trench

Shield/Box

Ladder in Trench > 5 Feet & Every 25’ Sump Pump LOTO:

3.Describe elevation/site terrain/environmental concerns or hazards:

4.Describe hazards with site/vehicle access (High Traffic, Heavy Haul, Boom Cranes, and Storage of Materials/HazMat:

5.Describe the type of electrical or gas concerns or hazards (e.g. Electrical/Gas/Fiber Optic Lines):

Sloping

Benching

(7) FALL PROTECTION & USING SUSPENDED PERSONNEL PLATFORM (Complete for Working at Heights and Roped-Access)

NOT APPLICABLE

Type of Elevated Work & Height:

 

 

Type of Tower or Building:

 

 

 

Describe the fall protection system to be used when working aloft.

Lifeline

Personal Fall Arrest

Safety Monitor

Qualified Climber

Safety Net

Ladder Safety Device

Roped Access (Requires Roped Access JHA):

 

 

 

 

 

Fall protection to be used.

Full Body Harness

One Lanyard

Two Lanyards (100%)

Rope Grab

Cable Grab

Retractable Lifeline

Ascenders/Descenders

Anchorage Points, Belay, & Straps:

 

 

 

 

 

 

Ropes

Has each employee inspected his or her fall protection equipment?

 

Yes

No

 

 

 

Hoisting Equipment to be used: < 20’ Encroachment of Power Lines,

Yes

No; If yes, ID Voltage _______KV; De-energize/Test/Ground Lines

Yes

Suspended Personnel Platform/basket

Forklift Platform

Crane/Boom/Aerial Truck

Scissor/Snorkel Lift

Gin Pole

Roped Access

Suspended Personnel Platform Checklist and/or Critical Lift Plan Completed?

Yes

No

 

 

 

 

 

 

 

 

 

 

 

No

 

(8) REVIEWS AND SIGNATURES

 

 

 

 

 

 

 

 

 

 

 

 

 

 

 

 

 

 

 

GC Superintendent /Foreman

 

 

Lower-tier Subcontractor Supervisor

 

 

 

 

 

 

 

 

 

 

Name

Signature/Date

 

Name

Signature/Date

 

 

 

 

 

 

 

 

 

 

 

 

 

 

 

 

 

 

 

 

 

 

(9)PROJECT PERSONNEL ACKNOWLEDGEMENT (ALL AFFECTED PERSONNEL SIGN AFTER JOB BRIEFING)

Name:

Company:

CPR / First Aid

Name:

Company:

 

Yes

 

Yes

 

Yes

Yes

Yes

Yes

Yes

Yes

Yes

Yes

Yes

Yes

REV: 2, 02/02/10

File Specs

Fact Name Description
Purpose The Job Briefing form is used to communicate safety protocols and job details before work begins.
Completion Requirement All affected personnel must sign off on the form to confirm their understanding of the job briefing.
Emergency Procedures Emergency contacts and procedures must be listed, including directions to the job site.
Job Information The form requires essential job details like date, job number, and supervisor's name.
Jobsite Exposures It identifies potential physical and health hazards, including confined spaces and chemical exposures.
Hazard Control Measures PPE and safety systems must be outlined to ensure worker safety during the job.
Civil Work Requirements For civil work, an engineer-approved trenching plan is mandatory for excavations deeper than 5 feet.
Fall Protection Specific fall protection measures are required for work at heights, including equipment inspections.
State-Specific Laws In Texas, the form is governed by OSHA regulations and state-specific safety laws.

Job Briefing - Usage Guidelines

Filling out the Job Briefing form is an essential step in ensuring a safe and organized work environment. This form is designed to gather critical information about the job at hand, potential hazards, and emergency procedures. Once completed, it will be used to inform all personnel involved in the project, ensuring everyone is on the same page before work begins.

  1. Insert Company Name & Logo: Write the name of your company and attach the company logo at the top of the form.
  2. Project Name & Number: Fill in the specific name and number associated with the project.
  3. Date: Enter the date the job briefing is taking place.
  4. Job Number: Provide the unique job number for this project.
  5. Job Name: Specify the name of the job being performed.
  6. Physical Address: Include the full address where the job will take place.
  7. Longitude and Latitude: Fill in the geographic coordinates of the job site.
  8. Supervisor/Crew Lead: Write the name of the person leading the crew for this job.
  9. Emergency Procedures: List emergency contact numbers and attach directions to the site. Indicate if 911 systems are functional with cell phone use.
  10. Job/Tasks for Today: Check the type of work being performed and ensure it aligns with the job requirements.
  11. Jobsite Exposures: Identify any potential hazards present at the job site, including physical and health hazards.
  12. Hazard Control Measures: List the personal protective equipment (PPE) and safety systems that will be utilized during the job.
  13. Civil Work Considerations: If applicable, complete the section regarding civil work, including trenching plans and elevation concerns.
  14. Fall Protection: For jobs involving heights, describe the fall protection systems that will be used and ensure all equipment is inspected.
  15. Reviews and Signatures: Obtain signatures from the General Contractor Superintendent or Foreman and the lower-tier subcontractor supervisor.
  16. Project Personnel Acknowledgment: Have all affected personnel sign off to acknowledge they have participated in the job briefing.

Your Questions, Answered

What is the purpose of the Job Briefing form?

The Job Briefing form serves as a tool to ensure that all team members understand the tasks ahead and the potential hazards involved. It is designed to promote safety by outlining emergency procedures, job information, and hazard control measures. Completing this form helps to ensure that everyone is on the same page before work begins.

Who needs to sign the Job Briefing form?

All affected personnel must sign the form in Block 9 after the job briefing is completed. This includes everyone who will be involved in the job, ensuring that they acknowledge their understanding of the tasks and safety measures discussed.

What information is required on the Job Briefing form?

The form requires various details, including the date, job number, job name, physical address, and the supervisor or crew lead's name. It also includes sections for emergency procedures, job tasks, jobsite exposures, and hazard control measures. Collectively, this information helps to create a comprehensive overview of the job at hand.

What should I do if I identify a hazard during the job briefing?

If a hazard is identified, it should be documented on the form. The team should discuss the hazard and determine appropriate control measures. This collaborative approach helps to ensure that everyone is aware of the risks and how to mitigate them before starting work.

Are there specific procedures for emergency situations included in the Job Briefing form?

Yes, the form includes a section for emergency procedures. This section lists important telephone numbers and provides directions to the job site. It also prompts the team to confirm whether 911 systems are functional with cell phone use, ensuring that everyone knows how to respond in an emergency.

What types of work are covered by the Job Briefing form?

The Job Briefing form covers a variety of work types, including but not limited to plumbing, electrical work, painting, heavy equipment operation, and construction tasks. It also addresses specific lifting classifications, such as incidental, medium, heavy, and critical lifts, which require additional planning and documentation.

How often should the Job Briefing form be completed?

The Job Briefing form should be completed before the start of each job or task. This ensures that all relevant information is current and that team members are fully informed about the specific hazards and safety measures related to that particular job.

What happens if the Job Briefing form is not completed?

If the Job Briefing form is not completed, it may lead to misunderstandings about job responsibilities and safety protocols. This oversight can increase the risk of accidents or injuries on the job site. Therefore, it is crucial to ensure that the form is filled out and signed by all affected personnel before commencing work.

Can the Job Briefing form be modified for specific projects?

Yes, the Job Briefing form can be tailored to fit the specific needs of a project. While the core elements should remain consistent, additional sections or details may be added to address unique hazards or procedures relevant to the job at hand. This flexibility allows for better safety management in diverse work environments.

Common mistakes

  1. Incomplete Information: Failing to fill in all required fields can lead to confusion and potential safety risks. Ensure that you provide the job name, date, and supervisor's name among other details.

  2. Ignoring Emergency Procedures: Not listing emergency contacts or failing to confirm the functionality of emergency systems can have serious consequences. Always check that the 911 system is functional and include all necessary emergency numbers.

  3. Overlooking Jobsite Exposures: It's crucial to identify all potential hazards on the job site. Neglecting to check for physical and health hazards, such as chemical exposure or slips and falls, can lead to accidents.

  4. Not Following Hazard Control Measures: Failing to outline and implement safety controls can put everyone at risk. Be sure to specify the necessary PPE and any other controls required for the job.

Documents used along the form

The Job Briefing form is an essential document that helps ensure safety and preparedness before starting work on a project. Alongside this form, several other documents play a critical role in enhancing safety protocols and providing clear guidelines for workers. Below are four commonly used forms that complement the Job Briefing form.

  • Routine Job Hazard Analysis (JHA): This document identifies potential hazards associated with specific tasks. It helps teams assess risks and implement necessary controls to ensure safety during operations. The JHA is often completed prior to the Job Briefing to inform the crew of the hazards they may encounter.
  • Emergency Response Plan: This plan outlines procedures to follow in the event of an emergency. It includes contact information for emergency services, evacuation routes, and specific roles for team members during a crisis. Having this plan readily available ensures that everyone knows how to respond effectively if an incident occurs.
  • Personal Protective Equipment (PPE) Checklist: This checklist details the required PPE for various tasks and ensures that all workers are equipped with the necessary gear before starting work. It serves as a reminder of the importance of safety equipment in preventing injuries on the job site.
  • Site Safety Inspection Report: This report documents safety inspections conducted at the job site. It highlights any identified hazards and the measures taken to address them. Regular inspections help maintain a safe working environment and ensure compliance with safety regulations.

By utilizing these documents in conjunction with the Job Briefing form, teams can foster a safer work environment. Each form contributes to a comprehensive approach to safety, ensuring that all personnel are informed, prepared, and protected while performing their tasks.

Similar forms

The Job Briefing form shares similarities with the Safety Data Sheet (SDS). Both documents aim to communicate important safety information. The SDS provides details about hazardous materials, including handling, storage, and emergency procedures. Similarly, the Job Briefing form outlines potential job hazards and emergency contacts, ensuring that all personnel are aware of risks before starting work. Both documents require signatures to confirm that workers understand the information presented, promoting a culture of safety in the workplace.

Another document comparable to the Job Briefing form is the Risk Assessment form. This form identifies potential risks associated with specific tasks or environments. Like the Job Briefing form, it requires a thorough evaluation of hazards and the implementation of control measures. Both documents serve as proactive tools to mitigate risks, ensuring that workers are prepared for the tasks at hand and understand the necessary precautions to take.

The Job Safety Analysis (JSA) is also similar in purpose and structure to the Job Briefing form. A JSA breaks down specific tasks to identify hazards and outline safety measures. Both documents emphasize the importance of discussing safety protocols with the work crew before starting. They require input from team members, fostering collaboration and shared responsibility for safety on the job site.

In addition, the Permit to Work (PTW) system bears resemblance to the Job Briefing form. The PTW is used to authorize specific high-risk activities, ensuring that all safety measures are in place before work begins. Like the Job Briefing form, it necessitates communication among crew members regarding hazards and safety procedures, making it a critical component of workplace safety management.

The Incident Report form also shares common ground with the Job Briefing form. While the Job Briefing focuses on preventing incidents, the Incident Report documents what happened after an event occurs. Both forms aim to enhance safety by analyzing hazards and ensuring that lessons are learned to prevent future occurrences. They contribute to a comprehensive safety culture within the organization.

The Emergency Action Plan (EAP) is another document that aligns with the Job Briefing form. The EAP outlines procedures to follow in case of emergencies, such as fires or chemical spills. Both documents prioritize preparedness and require workers to be familiar with emergency protocols. They ensure that everyone knows their roles and responsibilities in the event of an emergency, enhancing overall safety.

Additionally, the Training Record is similar to the Job Briefing form in that it tracks safety training provided to employees. Both documents highlight the importance of proper training in hazard recognition and safety practices. They serve as records to demonstrate compliance with safety regulations and the organization's commitment to maintaining a safe work environment.

Lastly, the Equipment Inspection Checklist parallels the Job Briefing form by emphasizing the importance of safety checks before starting work. This checklist ensures that all equipment is in safe working order, just as the Job Briefing form ensures that all personnel are aware of the hazards associated with their tasks. Both documents are essential for preventing accidents and ensuring a safe work environment.

Dos and Don'ts

When filling out the Job Briefing form, it is essential to approach the task with care and attention to detail. Here is a list of things you should and shouldn't do to ensure accuracy and compliance.

  • Do complete all sections of the form accurately.
  • Do ensure that all affected personnel sign off in Block 9.
  • Do attach any necessary emergency procedures and contact numbers.
  • Do review the job tasks for the day and check the type of work being performed.
  • Do identify all potential hazards related to the job site.
  • Don't leave any sections blank; incomplete forms may cause delays.
  • Don't overlook the need for proper hazard control measures.
  • Don't forget to verify that all safety equipment is inspected before use.
  • Don't assume that everyone is aware of the emergency procedures; communicate clearly.

Completing the Job Briefing form accurately is crucial for the safety of all personnel involved. Take the time to ensure every detail is correct and communicated effectively.

Misconceptions

Understanding the Job Briefing form is essential for ensuring workplace safety and compliance. However, several misconceptions often arise. Here are seven common misunderstandings:

  • It’s just a formality. Many people believe that completing the Job Briefing form is merely a bureaucratic step. In reality, it serves a critical function in identifying hazards and ensuring everyone is aware of safety protocols before beginning work.
  • Only the supervisor needs to sign. Some think that only the supervisor's signature is necessary. However, all affected personnel must sign off, confirming that they understand the job and the associated risks.
  • Emergency procedures are optional. A common misconception is that emergency procedures can be ignored if the team feels confident. In truth, knowing emergency contacts and procedures is crucial for everyone’s safety and should never be overlooked.
  • The form is only for high-risk jobs. Some individuals assume that the Job Briefing form is only necessary for high-risk tasks. However, it is important for all jobs, regardless of perceived risk, to ensure comprehensive safety measures are in place.
  • It’s only about physical hazards. Many believe the form focuses solely on physical hazards. While it addresses these, it also covers health hazards, environmental concerns, and other potential risks that could affect workers.
  • Once completed, it doesn’t need to be revisited. Some think that once the form is filled out, it can be filed away and forgotten. In reality, it should be reviewed regularly and updated as conditions change or new hazards are identified.
  • Training is not necessary to fill it out. A misconception exists that anyone can complete the form without proper training. However, understanding the risks and controls outlined in the form requires knowledge and training to ensure accuracy and effectiveness.

By addressing these misconceptions, teams can foster a safer work environment and enhance overall compliance with safety regulations.

Key takeaways

Filling out and using the Job Briefing form is essential for ensuring safety and compliance on the job site. Here are some key takeaways to keep in mind:

  • Complete Before Work Starts: Always fill out the form with your work crew before beginning any tasks.
  • Signatures Matter: Ensure all affected personnel sign off in Block 9 to acknowledge understanding of the briefing.
  • Emergency Procedures: List emergency contact numbers and attach directions to the job site for quick access.
  • Identify Job Tasks: Clearly check the type of work being performed, such as lifting, plumbing, or electrical work.
  • Recognize Hazards: Identify potential jobsite exposures, including physical and health hazards, to mitigate risks.
  • Control Measures: Outline hazard control measures, including personal protective equipment (PPE) and safety systems.
  • Trenching Requirements: For civil work, ensure an engineer-approved trenching plan is in place for excavations over 5 feet deep.
  • Fall Protection: Specify the fall protection system to be used when working at heights, ensuring all equipment is inspected.
  • Review and Sign: Have the General Contractor Superintendent and subcontractor supervisors review and sign the form for accountability.
  • Personnel Acknowledgment: Ensure all personnel acknowledge their understanding of the job briefing by signing the form.

By following these takeaways, you can enhance safety and communication among your team, ultimately leading to a more successful work environment.