Homepage Fill in Your Illinois Final Waiver Of Lien Template
Table of Contents

The Illinois Final Waiver of Lien form serves as a critical document in the realm of construction and property management, ensuring that all parties involved in a project are protected and informed. This form is primarily utilized by contractors, subcontractors, and suppliers who have provided labor or materials for a construction project. By completing this waiver, the undersigned formally relinquishes any rights to claim a lien against the property in question, which is essential for maintaining clear ownership and financial responsibility. The form includes key details such as the name of the contractor, the project address, and the amount paid for services rendered. It also requires the acknowledgment of any additional costs, often referred to as "extras," which may include change orders or modifications to the original contract. Furthermore, the document necessitates an affidavit from the contractor, confirming that all waivers are genuine and that no outstanding claims exist against the project. This thorough approach not only protects the contractor's interests but also reassures property owners that they are not liable for any unpaid debts related to the work completed. Understanding the nuances of the Illinois Final Waiver of Lien form can empower stakeholders to navigate the complexities of construction law with confidence.

Sample - Illinois Final Waiver Of Lien Form

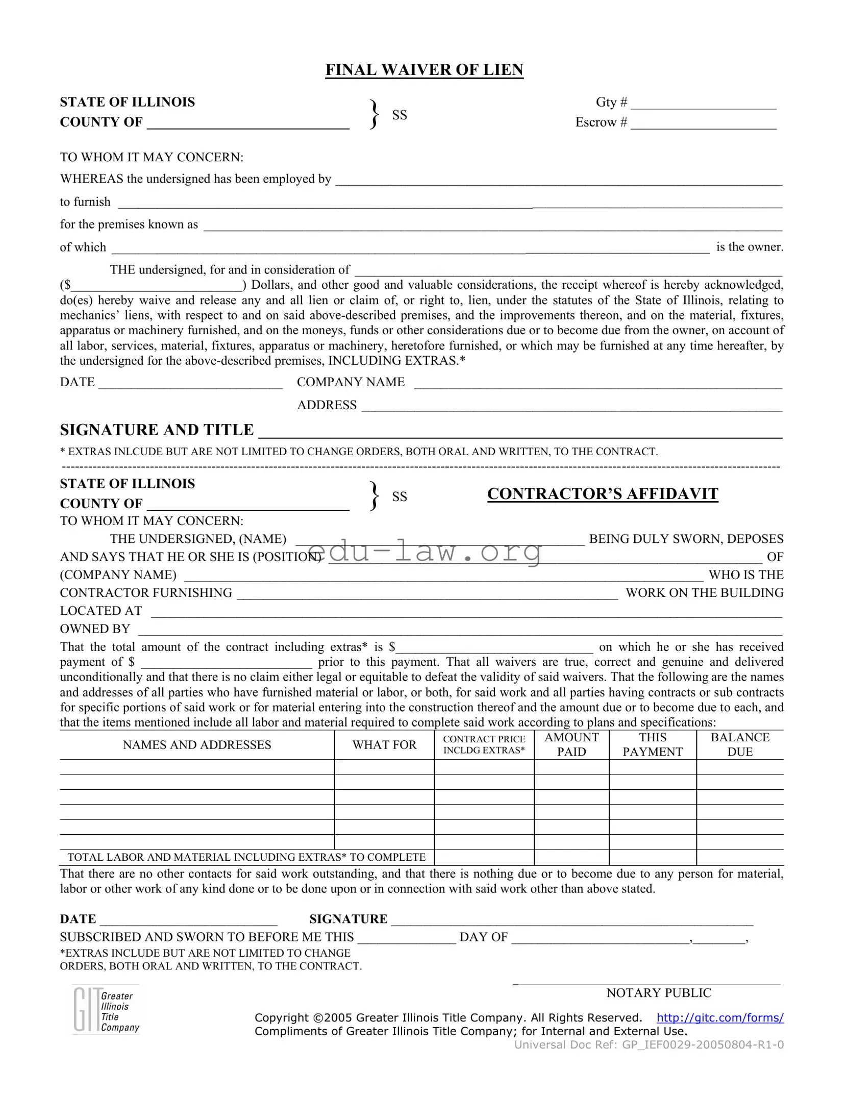
FINAL WAIVER OF LIEN

STATE OF ILLINOIS

} SS

Gty # _____________________

COUNTY OF _____________________________

Escrow # _____________________

TO WHOM IT MAY CONCERN:

WHEREAS the undersigned has been employed by ____________________________________________________________________

to furnish _____________________________________________________________________________________________________

for the premises known as ________________________________________________________________________________________

of which ___________________________________________________________________________________________ is the owner.

THE undersigned, for and in consideration of _________________________________________________________________

($__________________________) Dollars, and other good and valuable considerations, the receipt whereof is hereby acknowledged,

do(es) hereby waive and release any and all lien or claim of, or right to, lien, under the statutes of the State of Illinois, relating to mechanics’ liens, with respect to and on said above-described premises, and the improvements thereon, and on the material, fixtures, apparatus or machinery furnished, and on the moneys, funds or other considerations due or to become due from the owner, on account of all labor, services, material, fixtures, apparatus or machinery, heretofore furnished, or which may be furnished at any time hereafter, by the undersigned for the above-described premises, INCLUDING EXTRAS.*

DATE ____________________________ COMPANY NAME ________________________________________________________

ADDRESS ________________________________________________________________

SIGNATURE AND TITLE _______________________________________________________________

* EXTRAS INLCUDE BUT ARE NOT LIMITED TO CHANGE ORDERS, BOTH ORAL AND WRITTEN, TO THE CONTRACT.

-------------------------------------------------------------------------------------------------------------------------------------------------------------------

STATE OF ILLINOIS

} SS

CONTRACTOR’S AFFIDAVIT

COUNTY OF _____________________________

TO WHOM IT MAY CONCERN:

 

 

THE UNDERSIGNED, (NAME) ____________________________________________ BEING DULY SWORN, DEPOSES

AND SAYS THAT HE OR SHE IS (POSITION) __________________________________________________________________ OF

(COMPANY NAME) _______________________________________________________________________________ WHO IS THE

CONTRACTOR FURNISHING __________________________________________________________ WORK ON THE BUILDING

LOCATED AT ________________________________________________________________________________________________

OWNED BY __________________________________________________________________________________________________

That the total amount of the contract including extras* is $______________________________ on which he or she has received

payment of $ __________________________ prior to this payment. That all waivers are true, correct and genuine and delivered

unconditionally and that there is no claim either legal or equitable to defeat the validity of said waivers. That the following are the names and addresses of all parties who have furnished material or labor, or both, for said work and all parties having contracts or sub contracts for specific portions of said work or for material entering into the construction thereof and the amount due or to become due to each, and that the items mentioned include all labor and material required to complete said work according to plans and specifications:

NAMES AND ADDRESSES

WHAT FOR

CONTRACT PRICE INCLDG EXTRAS*

AMOUNT

PAID

THIS

PAYMENT

BALANCE

DUE

TOTAL LABOR AND MATERIAL INCLUDING EXTRAS* TO COMPLETE

That there are no other contacts for said work outstanding, and that there is nothing due or to become due to any person for material, labor or other work of any kind done or to be done upon or in connection with said work other than above stated.

DATE ___________________________ SIGNATURE _______________________________________________________

SUBSCRIBED AND SWORN TO BEFORE ME THIS _______________ DAY OF ___________________________,________,

*EXTRAS INCLUDE BUT ARE NOT LIMITED TO CHANGE

ORDERS, BOTH ORAL AND WRITTEN, TO THE CONTRACT.

________________________________________________

NOTARY PUBLIC

Copyright ©2005 Greater Illinois Title Company. All Rights Reserved. http://gitc.com/forms/

Compliments of Greater Illinois Title Company; for Internal and External Use.

Universal Doc Ref: GP_IEF0029-20050804-R1-0

File Specs

Fact Name Details
Purpose The Illinois Final Waiver of Lien form is used to waive and release any lien rights that a contractor or subcontractor may have on a property after receiving payment for services or materials provided.
Governing Law This form is governed by the mechanics’ lien statutes of the State of Illinois, which outline the rights and obligations related to liens on property for unpaid labor or materials.
Consideration The waiver requires acknowledgment of payment received, which can be a specific dollar amount or other valuable consideration, ensuring that the contractor has been compensated for their work.
Extras Definition The term "extras" in the context of this form includes change orders, both oral and written, that may affect the original contract and the total amount due.

Illinois Final Waiver Of Lien - Usage Guidelines

After completing the Illinois Final Waiver of Lien form, it is important to ensure that all information is accurate and that the document is properly signed and notarized. This form serves as a formal statement that all claims for payment have been satisfied, which can help in clearing any potential liens against the property.

  1. Begin by entering the county where the work was performed in the designated space.
  2. Fill in the escrow number if applicable.
  3. Identify the employer who hired you to furnish labor or materials by writing their name in the appropriate section.
  4. Describe the labor or materials you provided in the space provided.
  5. Specify the address of the premises where the work was performed.
  6. Enter the owner’s name of the property in the designated area.
  7. State the amount paid for the work completed, and write the dollar amount in both words and numbers.
  8. Fill in the date when the waiver is being signed.
  9. Write the company name that you represent.
  10. Provide your address in the space indicated.
  11. Sign the form and include your title or position within the company.
  12. Complete the contractor's affidavit section by entering your name and position.
  13. Fill in the company name of the contractor.
  14. Describe the work performed and the location of the building.
  15. State the total contract amount including any extras.
  16. Indicate the amount received prior to this payment.
  17. List the names and addresses of all parties who have furnished material or labor, along with the contract price and amounts due.
  18. Sign the affidavit section and include the date.
  19. Have the document notarized by a notary public.

Your Questions, Answered

What is the Illinois Final Waiver of Lien form?

The Illinois Final Waiver of Lien form is a legal document used in construction and contracting. It serves to release any claims or liens that a contractor, subcontractor, or supplier may have against a property once they have received payment for their work or materials. This form helps protect property owners from future claims related to unpaid work or materials.

Who needs to use this form?

This form is typically used by contractors, subcontractors, and suppliers who have provided labor or materials for a construction project in Illinois. It is important for anyone who wants to waive their right to file a lien against a property after being paid for their services or materials.

What information is required on the form?

The form requires several pieces of information, including the name of the contractor or supplier, the name of the property owner, a description of the work or materials provided, the total contract amount, and the amount received prior to signing the waiver. Additionally, it must include the date, company name, and the signature of the individual completing the form.

What does it mean to waive a lien?

To waive a lien means that the contractor or supplier agrees to give up their right to place a lien on the property for the work or materials provided. By signing the waiver, they acknowledge that they have been paid and that they will not pursue any further claims against the property owner for that specific project.

Is the waiver effective immediately upon signing?

Yes, the waiver is effective immediately upon signing, provided that the payment referenced in the form has been received. This means that once the form is executed, the contractor or supplier cannot later claim a lien for the work or materials covered by that waiver.

What are "extras" in the context of the waiver?

“Extras” refer to any additional work or materials that were not included in the original contract but are necessary for the completion of the project. This can include change orders, both oral and written. It is important to specify these extras in the waiver to ensure that all aspects of the work are covered.

Do I need a notary for this form?

Yes, the Illinois Final Waiver of Lien form must be notarized. This adds an extra layer of authenticity to the document, confirming that the individual signing it is indeed who they claim to be and that they are signing voluntarily.

What happens if I don’t use this form?

If the waiver is not used, a contractor or supplier retains the right to file a lien against the property for unpaid work or materials. This could lead to legal disputes and complications for property owners, who may face difficulties in selling or refinancing their property due to outstanding liens.

Can I revoke the waiver after it is signed?

Generally, once the waiver is signed and the payment has been made, it cannot be revoked. The waiver is a binding agreement, and attempting to retract it could lead to legal issues. It is crucial to ensure that all terms are understood and agreed upon before signing.

Common mistakes

  1. Neglecting to Fill in the Escrow Number: Leaving the escrow number blank can create confusion and complicate the processing of the waiver.

  2. Incorrect Owner Information: Failing to accurately list the property owner's name can lead to disputes and invalidate the waiver.

  3. Omitting the Total Contract Amount: Not specifying the total amount of the contract, including extras, can result in legal issues later on.

  4. Forgetting to Include Payment Details: Leaving out the amount received prior to this payment can raise questions about the legitimacy of the waiver.

  5. Not Listing All Parties: Failing to provide the names and addresses of all parties who furnished labor or materials can lead to claims being overlooked.

  6. Ignoring the Signature Requirement: Not signing the document or having it signed by an authorized individual can render the waiver invalid.

  7. Missing Notary Public Acknowledgment: Not having the waiver notarized can make it unenforceable in certain situations.

  8. Inaccurate Description of Work: Failing to clearly describe the work performed can create ambiguity and lead to disputes.

  9. Not Including Extras: Forgetting to mention extras, such as change orders, can lead to misunderstandings about the total work completed.

  10. Using Outdated Forms: Utilizing an outdated version of the form may not comply with current legal standards, leading to potential issues.

Documents used along the form

When dealing with construction projects in Illinois, several forms and documents often accompany the Illinois Final Waiver of Lien form. These documents help ensure that all parties are protected and that the project runs smoothly. Below is a list of five commonly used forms that work alongside the Final Waiver of Lien.

  • Contractor’s Affidavit: This document is a sworn statement from the contractor, confirming the total contract amount, payments received, and that all waivers are genuine. It lists all parties involved in the project and ensures that no other claims exist against the project.
  • Preliminary Notice: This notice informs property owners and general contractors that a subcontractor or supplier is working on a project. It helps protect the rights of those providing materials or labor by establishing a record of their involvement.
  • Mechanics Lien: If a contractor or supplier is not paid, they may file a mechanics lien against the property. This document serves as a legal claim against the property to secure payment for services rendered or materials supplied.
  • Change Order: This document outlines any modifications to the original contract. It includes details about changes in work scope, costs, and timelines, ensuring that all parties agree to the new terms.
  • Release of Lien: Similar to the Final Waiver of Lien, this document formally releases a lien that has been filed against a property. It confirms that the debt has been settled and that the property is free from claims.

Using these documents helps maintain clarity and accountability throughout the construction process. They protect the rights of all parties involved and contribute to a successful project completion.

Similar forms

The Illinois Final Waiver of Lien form bears similarities to the Conditional Waiver of Lien. This document is often used in construction projects to temporarily waive the right to file a lien until payment is received. Like the Final Waiver, it serves to protect the property owner by ensuring that the contractor or subcontractor cannot later claim a lien for the work performed. However, the Conditional Waiver only becomes effective upon receipt of the specified payment, whereas the Final Waiver indicates that payment has already been made.

Another document akin to the Illinois Final Waiver of Lien is the Unconditional Waiver of Lien. This waiver is executed after payment has been received and confirms that the contractor or subcontractor has relinquished any future claims against the property. Both documents aim to release the property owner from lien claims, but the Unconditional Waiver does so without any conditions attached, providing a stronger assurance to the property owner than the Conditional Waiver.

The Contractor’s Affidavit is also comparable to the Illinois Final Waiver of Lien. This affidavit is a sworn statement from the contractor affirming that all payments have been made to subcontractors and suppliers. It includes details about the work completed and the amounts owed. While the Final Waiver focuses on waiving lien rights, the Contractor’s Affidavit ensures that there are no outstanding claims, thereby protecting the property owner from potential future disputes.

The Subcontractor’s Waiver of Lien shares similarities with the Illinois Final Waiver of Lien as well. This document is specifically designed for subcontractors to waive their lien rights on a project after receiving payment. Both waivers serve to inform property owners that all parties involved have been compensated, thereby reducing the risk of future lien claims against the property.

The Release of Lien is another document that functions similarly to the Illinois Final Waiver of Lien. This release is often used to formally document that a lien has been removed from the property after payment has been made. While the Final Waiver serves as a preemptive measure against future claims, the Release of Lien is more about confirming that a lien has been satisfied, thus providing clarity to the property owner regarding their obligations.

The Notice of Intent to Lien is a document that, while serving a different purpose, is related to the Illinois Final Waiver of Lien. This notice is typically sent before a lien is filed and informs the property owner of the contractor's or subcontractor's intention to file a lien if payment is not received. Both documents are part of the same legal process, with the Final Waiver acting as a conclusion to the lien process once payment is made.

The Affidavit of Payment is another document that parallels the Illinois Final Waiver of Lien. This affidavit is used to confirm that all parties involved in a construction project have been paid for their work. Similar to the Contractor’s Affidavit, it provides assurance to the property owner that there are no outstanding debts related to the project, thereby reinforcing the effectiveness of the Final Waiver.

The Release of Claims is also comparable to the Illinois Final Waiver of Lien. This document is used to formally release any claims against a property after payment has been made. While the Final Waiver specifically addresses lien rights, the Release of Claims can encompass a broader range of claims, ensuring that the property owner is fully protected from any potential disputes arising from the project.

Finally, the Final Payment Affidavit is akin to the Illinois Final Waiver of Lien. This affidavit confirms that the contractor has received the final payment and waives any future claims regarding the project. Both documents serve to provide assurance to the property owner that all obligations have been met and that there will be no further claims against the property related to the work performed.

Dos and Don'ts

When filling out the Illinois Final Waiver of Lien form, there are essential practices to follow. Here is a list of things you should and shouldn't do:

  • Do ensure all fields are filled out completely and accurately.
  • Do include the correct names and addresses of all parties involved.
  • Do specify the total amount of the contract, including any extras.
  • Do sign and date the form in the appropriate sections.
  • Do have the form notarized to validate the signatures.
  • Don't leave any sections blank, as this may invalidate the waiver.
  • Don't forget to include the escrow number, if applicable.
  • Don't provide false information or omit any payments received.
  • Don't submit the form without reviewing it for errors.

Misconceptions

Understanding the Illinois Final Waiver of Lien form can help both contractors and property owners navigate the construction process more smoothly. However, several misconceptions often arise regarding this important document. Here are seven common misunderstandings:

  • It guarantees payment. Many believe that signing a waiver ensures they will receive payment. In reality, it only confirms that the signer has received payment up to that point.
  • It releases all future claims. Some think that once a waiver is signed, it eliminates any possibility of future claims. This is not true; it only pertains to the specific payment referenced in the waiver.
  • It is only for contractors. There is a misconception that only general contractors can use this form. Subcontractors and suppliers can also utilize it to protect their rights.
  • It must be notarized to be valid. While notarization adds an extra layer of authenticity, it is not always required for the waiver to be legally binding.
  • It can be signed at any time. Some believe they can sign the waiver at their convenience. However, it is best to sign it only after payment has been received.
  • It applies to all types of construction work. Not all construction projects require a waiver. This form is specifically related to mechanics' liens under Illinois law.
  • It is the same as a preliminary waiver. Many confuse the final waiver with a preliminary waiver. A preliminary waiver is signed before work begins, while a final waiver is executed after payment has been made.

Being aware of these misconceptions can help individuals make informed decisions regarding their rights and responsibilities in construction projects. Always consider consulting with a legal professional for personalized advice.

Key takeaways

When filling out and using the Illinois Final Waiver of Lien form, consider the following key takeaways:

  • Complete Information: Ensure all fields are filled out accurately, including the names of the contractor, owner, and the specific work performed.
  • Payment Acknowledgment: Clearly state the amount received and the total contract amount, including any extras. This helps avoid disputes over payments.
  • Signature Requirement: The form must be signed by the appropriate representative of the company, confirming the waiver of any lien rights.
  • Notary Public: The form should be notarized to ensure its validity and to provide an additional layer of authenticity.