Homepage Fill in Your Hvac Job Application Template
Table of Contents

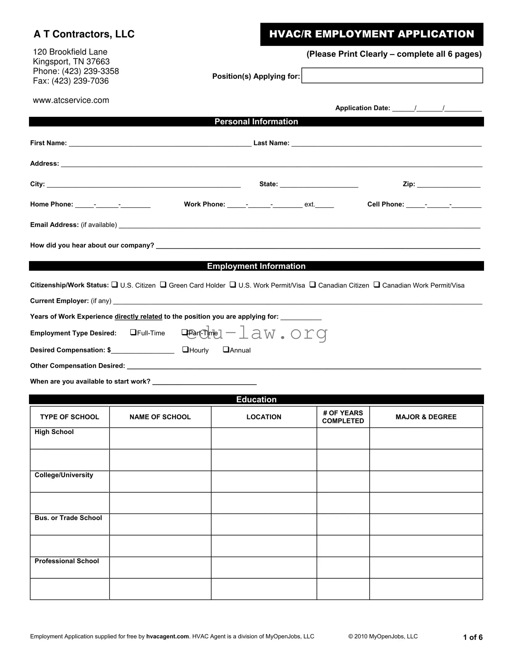
The HVAC job application form from A T Contractors, LLC is a comprehensive document designed to gather essential information from applicants seeking employment in the heating, ventilation, air conditioning, and refrigeration industry. This six-page form includes personal details, such as the applicant's name, address, and contact information, which are vital for establishing communication. Additionally, it asks about the position applied for, employment history, and relevant skills in HVAC/R. Applicants must disclose their citizenship status, work experience, and education background, ensuring that potential employers can assess qualifications effectively. The form also addresses criminal history, driver's license status, and military service, providing a fuller picture of the applicant's background. Furthermore, it features sections dedicated to industry-specific skills, certifications, and professional references, allowing candidates to highlight their competencies and endorsements from previous employers. Overall, this application form serves as a critical tool for both job seekers and employers in the HVAC/R field, facilitating a structured and thorough hiring process.

Sample - Hvac Job Application Form

A T CONTRACTORS, LLC

 

HVAC/R EMPLOYMENT APPLICATION

 

120 Brookfield Lane

 

 

 

 

(Please Print Clearly – complete all 6 pages)

Kingsport, TN 37663

 

 

 

Phone: (423) 239-3358

Position(s) Applying for:

Fax: (423) 239-7036

 

 

 

www.atcservice.com

 

 

 

 

 

Application Date: ______/_______/__________

 

 

 

 

 

Personal Information

First Name: _________________________________________________ Last Name: ___________________________________________________

Address: _________________________________________________________________________________________________________________

City: ____________________________________________________

State: _____________________

Zip: _________________

Home Phone: _____-______-________

Work Phone: _____-______-________ ext._____

Cell Phone: _____-______-________

Email Address: (if available) _________________________________________________________________________________________________

How did you hear about our company? _______________________________________________________________________________________

Employment Information

Citizenship/Work Status: U.S. Citizen Green Card Holder U.S. Work Permit/Visa Canadian Citizen Canadian Work Permit/Visa

Current Employer: (if any) ___________________________________________________________________________________________________

Years of Work Experience directly related to the position you are applying for: ___________

Employment Type Desired:

Full-Time

Part-Time

 

Desired Compensation: $_________________

Hourly

Annual

Other Compensation Desired: _______________________________________________________________________________________________

When are you available to start work? ____________________________

Education

TYPE OF SCHOOL

NAME OF SCHOOL

LOCATION

# OF YEARS

MAJOR & DEGREE

COMPLETED

 

 

 

 

 

 

 

 

 

High School

 

 

 

 

College/University

Bus. or Trade School

Professional School

Employment Application supplied for free by hvacagent.com. HVAC Agent is a division of MyOpenJobs, LLC

© 2010 MyOpenJobs, LLC

1 of 6

Criminal History

HAVE YOU EVER BEEN CONVICTED OF A FELONY OR MISDEMEANOR (except any minor traffic violations)? No Yes

If yes, please explain and attach any relevant documentation. _____________________________________________________________________

______________________________________________________________________________________________________________________

Drivers License Information

DO YOU HAVE A VALID DRIVER’S LICENSE? Yes No

Do you have reliable transportation to work (please be specific)? ______________________________________________________________

Driver’s license number: ________________________________________ State of Issue: ______________________

Operator Commercial (CDL) Chauffeur Do you have a clean driving record? Yes No

List any Moving Violations and/or Accidents from the last 3 years: _____________________________________________________________

______________________________________________________________________________________________________________________

Military Service

HAVE YOU EVER BEEN IN THE ARMED FORCES?

Yes No

Branch: ________________________________

ARE YOU CURRENTLY A MEMBER OF THE NATIONAL GUARD or RESERVES?

Yes

No

Specialty _______________________________________

Date Entered __________________

Discharge Date ______________________

 

 

 

 

Work Experience

Please list your work experience for the past 5 years beginning with your most recent job.

If you were self-employed, give firm name. Attach additional sheets if necessary. Attach Resume if applicable.

Name of employer:

Name of last supervisor

Employment

Pay or salary

 

 

dates

 

Address with city/state/zip:

 

 

 

 

From

Start

 

 

 

 

To

Final

Phone:

Your last job title

 

 

 

 

 

 

Specific reason for leaving

List the jobs you held, duties performed, skills used or learned, advancements or promotions while you worked at this company.

May we contact this employer? Yes

No

 

 

 

 

 

 

 

 

 

 

 

 

Name of employer:

 

Name of last supervisor

Employment

Pay or salary

 

 

 

dates

 

Address with city/state/zip:

 

 

 

 

 

 

From

Start

 

 

 

 

 

 

To

Final

Phone:

 

Your last job title

 

 

 

 

 

 

 

Specific reason for leaving

List the jobs you held, duties performed, skills used or learned, advancements or promotions while you worked at this company.

May we contact this employer? Yes No

Employment Application supplied for free by hvacagent.com. HVAC Agent is a division of MyOpenJobs, LLC

© 2010 MyOpenJobs, LLC

2 of 6

Name of employer:

Name of last supervisor

Employment

Pay or salary

 

 

dates

 

Address with city/state/zip:

 

 

 

 

From

Start

 

 

 

 

To

Final

Phone:

Your last job title

 

 

 

 

 

 

Specific reason for leaving

List the jobs you held, duties performed, skills used or learned, advancements or promotions while you worked at this company.

May we contact this employer? Yes

No

 

 

 

 

 

 

 

 

 

 

 

 

Name of employer:

 

Name of last supervisor

Employment

Pay or salary

 

 

 

dates

 

Address with city/state/zip:

 

 

 

 

 

 

From

Start

 

 

 

 

 

 

To

Final

Phone:

 

Your last job title

 

 

 

 

 

 

 

Specific reason for leaving

List the jobs you held, duties performed, skills used or learned, advancements or promotions while you worked at this company.

May we contact this employer? Yes No

HVAC/R INDUSTRY SKILLS SECTION INSTRUCTIONS: ONLY select the specific industry skills that you consider yourself to be very

knowledgeable about, with a high level of competency.

HVAC/R Industry Skills

What Size of HVAC/R equipment have you worked with? (Select all that apply)

1 - 5 Tons

5 - 20 Tons

20 - 50 Tons

50 - 100 Tons

100+ Tons

What Manufacturers Equipment have you worked with? (Select all that apply)

American Standard

DelField

Kold Draft

Ruud

Toshiba

Andover Controls

Electro Freeze

Lennox

Sani Serv

Trane

Beverage Air

Frigidaire

Liebert

Seibe

Traulsen

Bryant

Gibson

Luxaire

Siemens

TRUE

Carrier

Honeywell

Manitowoc

Storlting

United

Coleman

Hoshizaki

Maytag

Tappan

Victory

Cornecius

Ice O Matic

McQuay

Taylor

Vogt

Crystal Tip

ICEE

Perlick

Tekmar

Westinghouse

Cummins & Woodward

Johnson Controls

Philco

Thermo King

York

Daikin

Kelvinator

Rheem

 

 

What types of Equipment or Systems have you worked with? (Select all that apply)

410A

Chillers

Freezers - Commercial

Oil

 

Split Systems

 

Absorption Systems

Cold-Plate Systems

Frozen Beverage Machines

Ovens - Electric

Steam

 

Air Dist. Equipment

Commercial Cooking Equip

Furnace

Ovens - Gas

Trailer Units

 

Air Handlers

Cooling Towers

Gas

Package Units

Transport Refrigeration

 

Ammonia

Dehumidification

Gas Stoves

Parallel Refrigeration

Variable Speed Equipment

Anti-Vibrations

Dish Washers

Geo Thermal

Portable HVAC

VAV

 

Appliances

Dry Systems

Ground Source Heat Pumps

Propane

 

Ventilation

 

Appliances - Home

Dry-Coolers

Heat Pumps

Puron

 

VRF

 

Bobtail Units

Dryers - Clothes

Humidification

Radiant Heating

VRV

 

Boilers

Electric Stoves

HVAC Equipment

Reach-Ins

 

Walk-Ins

 

Cascade Refrigeration

Environmental Test Chambers

Hydronic

Recipricating

Washers - Clothes

 

Central Plants

Exhaust Systems

Ice Cream Machines

Refrigeration

Water Heaters

 

Centrifugal

FCB Machines

Ice Machines

Refrigerators

Wet Systems

 

Chilled Water

Forced Air Systems

In-Floor

Rooftop Units

Window Units AC

 

Employment Application supplied for free by hvacagent.com. HVAC Agent is a division of MyOpenJobs, LLC

© 2010 MyOpenJobs, LLC

3 of 6

HVAC/R Industry Skills Continued

What types of Parts and Accessories have you worked with? (Select all that apply)

Coils

Dampers

Electric Motors

HVAC Parts

Sound Attenuators

Compressors

Diffusers

Fans

Registers

Vacuum Pumps

Condensers

Duct Work

Grills

Sheet Metal

Valves

What Applications do you have experience with? (Select all that apply)

Clean Rooms

Government Projects

Institutional

Multi-Family

Residential

Cold Storage

Grocery Stores

International

Off-Shore

Restaurants

Commercial

Hospitals

Light Commercial

Pools

Snow Melting

Floating Floor

Industrial

Marine

 

 

What types of Building Automation or controls experience do you have?

Building Automation

Controls - Design

Controls - Programming

DDC

Pneumatic controls

Controls

 

 

 

 

What Job Functions have you performed? (Select all that apply)

Activity Reporting

Engineer/PE

Negotiate Contracts

Retro-Fit

Advertising (broadcast)

Estimating

Operations Manager

Sales

Advertising (online)

Estimator

P&L

Sales - In Home

Advertising (print)

Executive

Pipefitter

Sales - Residential

Assembling

Expense Reports

Piping

Sales - Retail

Brazing

Fabrication

Plan-O-Grams/Schematics

Sales - Wholesale

Budgeting

Facility Manager

Plan/Spec

Sales Management, Area

Business Development

Field Supervisor

Planning

Sales Management, National

Call Center Management

Forecasting

PLC

Sales Management, Regional

Carpentry

Foreman

Plumbing

Sales Manager

Change Orders

General Construction

Policy/Procedure Development

Sales Training Development

Channel Development

General Manager

Prepare Financial Reports

Service

Client Interaction

Goal Setting

Presentation Preparation

Service Agreements

Client/Account Management

Heat Transfer

Preventative Maintenance

Service Manager

Cold Calling

Inspector

Product Demonstration

Sheet Metal Worker

Commission Development

Installation

Product Design

Shipping Coordination

Computer Literate

Installation - New Homes

Product Development

Shipping/Receiving

Consultative Selling

Installer

Product Testing

Start-up

Contract Negotiations

Instructor

Production

Steamfitter

Contract/Proposal Preparation

International

Production Specialist

Strategic Alliances

Conventions/Trade Shows

Journeyman

Project Management

Superintendent

Customer Service

Lead Generation

Project Scheduling

Supervision

Data Entry

Lead Management

Proposal Development

Take-offs

Department Forecasting

Leadership

Proposal Presentation

Team Building

Design/Build

LEED

Prospecting/Lead Generation

Technician

Designer

Load Calculations

Punch List

Telemarketing - Inbound

Develop Relationships/Alliances

Machine Operator

Purchase Orders

Telemarketing - Outbound

Dispatcher

Maintenance

Purchasing

Territory Management

Drafting

Maintenance - Apartment

QA/QC Manager

Test & Balance

Draftsman

Manager

Quality Assurance/Control

Thermodynamics

Driving

Manufacturer Rep

Reading Blueprints

Trainer

Drywall Repair

Manufacturing

Relationship Management

Troubleshooting

Electrical

Market Analysis

Repair

Vendor Coordination

Energy

Material Handler

Report Generation

Welder

Energy Management

NATE Certification

Reporting

Welding

Engineer/BSME

NEBB

Research

 

What Computer related experience do you have? (Select all that apply)

ACT

Echelon

Lon Works

MS Excel

SalesLogix

Approach

Energy Pro

Lon-Based Cicron

MS Office

Seibe

AutoCad

Estimation (software)

Manual J

MS PowerPoint

Trane Duct/Pipe Designer

Derby

Goldmine

Microstation

MS Word

WinSales

Ecco Pro

Load/Trace 700

MS Access

QuickPen

Wrightsoft

Certifications & Licenses

What Certifications & Licenses do you have? (Select all that apply)

(CAMT) Certified Apartment Maint Technician

HVAC Excellence - Gas Heat

Journeyman Plumber License

Certified Energy Manager

HVAC Excellence - Geothermal

Master HVAC License

EPA 608

Type I

HVAC Excellence - Heat Pumps

Master Plumber License

EPA 608

Type II

HVAC Excellence - Hydronics I

NATE - A/C

EPA 608

Type III

HVAC Excellence - Hydronics II

NATE - Air Distribution

EPA 608

Universal

HVAC Excellence - Oil Heat

NATE - Gas Heat

HVAC Excellence - A/C

ICE - Commercial Refrigeration

NATE - Heat Pumps

HVAC Excellence - Commercial A/C

ICE - Light Commercial A/C & Heating

NATE - Oil Heating

HVAC Excellence - Commercial Refrigeration

ICE - Residential A/C & Heating

Oil Burner License

HVAC Excellence - Electrical Heat

Journeyman HVAC License

Registered Professional Engineer

Include State and License Numbers for any licenses selected above, if applicable: ___________________________________________________

_________________________________________________________________________________________________________________________

_________________________________________________________________________________________________________________________

Other Licenses & Certifications held: _________________________________________________________________________________________

Employment Application supplied for free by hvacagent.com. HVAC Agent is a division of MyOpenJobs, LLC

© 2010 MyOpenJobs, LLC

4 of 6

Additional Information

Use the space below to summarize any additional information necessary to describe your full qualifications for the specific position for which you are applying. If you have a resume, please include it with this application.

Professional References

Please list 3-4 people you have worked with who can attest to your On-the-Job experience and performance.

Name ___________________________________

Name ______________________________________

Position _________________________________

Position _____________________________________

Company ________________________________

Company ____________________________________

Telephone (

)

Telephone (

)_____________________________

 

 

 

 

Email Address _____________________________

Email Address _________________________________

Name ___________________________________

Name ______________________________________

 

Position _________________________________

Position _____________________________________

 

Company ________________________________

Company ____________________________________

 

Telephone (

)

 

 

Telephone (

)_____________________________

 

 

 

 

 

 

 

Email Address ______________________________

Email Address _________________________________

 

 

 

 

 

 

 

Did you complete this application yourself?

Yes No

 

 

 

 

If not, who did? _________________________________________________________________________________________________________

Employment Application supplied for free by hvacagent.com. HVAC Agent is a division of MyOpenJobs, LLC

© 2010 MyOpenJobs, LLC

5 of 6

AGREEMENT (PLEASE READ CAREFULLY BEFORE SIGNING)

I certify that all the information on this application is accurate and complete to the best of my knowledge and understand that misleading or false statements will constitute sufficient cause for refusal of hire or termination of my employment.

I understand that neither the acceptance of this application nor the subsequent entry into any type of employment relationship with A T Contractors, LLC creates an actual or implied contract of employment. I understand that, if I accept employment with A T Contractors, LLC, it will be on an at-will basis. This means that either A T Contractors, LLC or I have the right to terminate the employment relationship at any time, for any reason, with or without cause.

I agree to submit to drug and alcohol testing, if requested by A T Contractors, LLC. I release A T Contractors, LLC, and its employees, plus other persons or companies, from any and all liability arising out of or related in any way to such testing.

I authorize A T Contractors, LLC to investigate information concerning my education, licensing,certifications, driving record, criminal history, employment experiences and all other aspects of my background relevant to my proposed employment. I release A T Contractors, LLC and its employees from all liability arising from such investigation.

Signature of Applicant: ________________________________________________________ Date: _____/______/_________

Print Name: __________________________________________________________________

A T Contractors, LLC is an equal employment opportunity employer. We adhere to a policy of making employment decisions without regard to race, color, religion, sex, sexual orientation, national origin, citizenship, age or disability. We assure you that your opportunity for employment with A T Contractors, LLC depends solely on your qualifications.

Employment Application supplied for free by hvacagent.com. HVAC Agent is a division of MyOpenJobs, LLC

© 2010 MyOpenJobs, LLC

6 of 6

File Specs

Fact Name Fact Description
Application Purpose This form is designed to collect personal and employment information for potential HVAC/R job applicants.
Contact Information Applicants must provide their first name, last name, address, phone numbers, and email address.
Citizenship Status Applicants must indicate their citizenship or work status, including options like U.S. Citizen or Green Card Holder.
Criminal History Disclosure Applicants are required to disclose any felony or misdemeanor convictions, excluding minor traffic violations.
Driver's License Requirement A valid driver's license is mandatory, and applicants must specify the type and state of issue.
Work Experience Section Applicants must list their work history for the past five years, detailing job titles, responsibilities, and reasons for leaving.
HVAC/R Skills Assessment Applicants select specific HVAC/R skills and equipment types they are knowledgeable about, showcasing their expertise.
Certifications & Licenses Applicants can list relevant certifications and licenses, such as HVAC Excellence or EPA certifications.
State-Specific Forms In Tennessee, the application complies with state employment laws, including the Tennessee Human Rights Act.

Hvac Job Application - Usage Guidelines

Completing the HVAC job application form is a straightforward process that requires attention to detail. By following the steps outlined below, you can ensure that all necessary information is provided accurately. Once you have filled out the form, you will be ready to submit your application for consideration.

  1. Personal Information: Start by entering your first name, last name, address, city, state, and zip code. Include your home, work, and cell phone numbers, as well as your email address if available.
  2. Position Information: Specify the position(s) you are applying for and the application date.
  3. Employment Information: Indicate your citizenship or work status, current employer, years of relevant work experience, desired employment type (full-time or part-time), desired compensation, and availability to start work.
  4. Education: Fill in the type of school, name of school, location, number of years attended, major, and degree completed for high school, college/university, business or trade school, and professional school.
  5. Criminal History: Answer whether you have ever been convicted of a felony or misdemeanor (excluding minor traffic violations) and provide an explanation if applicable.
  6. Driver’s License Information: Indicate if you have a valid driver’s license, provide your license number, state of issue, type of license, and any moving violations or accidents from the last three years.
  7. Military Service: Indicate if you have ever been in the armed forces, specify the branch, and state if you are currently a member of the National Guard or Reserves.
  8. Work Experience: List your work experience for the past five years, starting with your most recent job. Include the employer's name, supervisor's name, employment dates, address, phone number, job title, reason for leaving, and a brief description of your duties and skills.
  9. HVAC/R Industry Skills: Select the specific industry skills you possess, including equipment size, manufacturers, types of systems, parts and accessories, applications, building automation experience, and job functions performed.
  10. Computer Experience: Indicate your computer-related experience by selecting relevant software and tools you are familiar with.
  11. Certifications & Licenses: List any certifications and licenses you hold, along with state and license numbers where applicable.
  12. Additional Information: Use the provided space to summarize any additional qualifications relevant to the position.
  13. Professional References: Provide the names, positions, companies, telephone numbers, and email addresses of 3-4 professional references who can attest to your experience and performance.
  14. Application Completion: Finally, indicate whether you completed the application yourself and, if not, who assisted you.

Your Questions, Answered

What is the purpose of the HVAC Job Application form?

The HVAC Job Application form is designed to collect essential information from candidates applying for HVAC/R positions at A T Contractors, LLC. It helps the employer assess qualifications, work experience, and skills relevant to the job. Completing the form accurately and thoroughly is crucial for a successful application process.

How should I fill out the application form?

Please print clearly and complete all six pages of the application. Provide all requested information, including personal details, employment history, education, and relevant skills. If additional space is needed, you may attach extra sheets or a resume. Ensure that all sections are filled out to the best of your ability.

What information do I need to provide about my work history?

You should list your work experience for the past five years, starting with your most recent job. Include the name of the employer, dates of employment, job title, and specific duties performed. Additionally, indicate whether the employer can be contacted for a reference. This information helps the employer understand your background and qualifications.

What if I have a criminal history?

The application asks if you have ever been convicted of a felony or misdemeanor, excluding minor traffic violations. If you answer "Yes," provide an explanation and any relevant documentation. Being honest about your history is important, as it may affect your eligibility for employment.

Do I need to provide references?

Yes, you are required to list three to four professional references who can speak to your work experience and performance. Include their names, positions, companies, and contact information. This helps the employer verify your qualifications and assess your suitability for the position.

What should I include in the HVAC/R Industry Skills section?

In this section, select the specific industry skills where you have a high level of competency. You can choose from various categories, including equipment size, manufacturers, systems, and job functions. This information allows the employer to gauge your technical expertise and fit for the role.

Is there a preferred way to submit the application?

You can submit the completed application via fax or in person at the provided address. Ensure that all pages are included and that the application is signed where required. If submitting via fax, double-check that all pages are legible and properly transmitted.

What happens after I submit my application?

After submission, your application will be reviewed by the hiring team. If your qualifications match the job requirements, you may be contacted for an interview. Be prepared to discuss your experience and skills in more detail during the interview process.

Can I apply for multiple positions using the same application?

Common mistakes

  1. Not Filling Out All Sections: Many applicants skip sections or leave them incomplete. Every part of the application is important. Make sure to fill in all required fields.

  2. Illegible Handwriting: If the application is handwritten, it’s crucial to write clearly. If the hiring manager can’t read your information, it could hurt your chances.

  3. Incorrect Contact Information: Double-check your phone numbers and email addresses. Providing incorrect contact details can lead to missed opportunities.

  4. Not Tailoring Experience to the Job: Applicants often list previous jobs without connecting their experience to the HVAC position. Highlight skills and duties relevant to the job you’re applying for.

  5. Omitting References: Some people forget to include professional references. Having references ready can strengthen your application.

  6. Failing to Proofread: Spelling and grammatical errors can leave a negative impression. Always review your application before submitting it.

Documents used along the form

When applying for a position in the HVAC industry, several forms and documents may accompany the HVAC Job Application form. These documents provide additional information about the applicant's qualifications, background, and skills. Below is a list of common documents that may be required or helpful during the application process.

  • Resume: A summary of the applicant's work history, education, skills, and qualifications. It highlights relevant experiences and achievements that support the job application.
  • Cover Letter: A personalized letter addressed to the employer, introducing the applicant and explaining their interest in the position. It provides an opportunity to express enthusiasm and detail specific qualifications.
  • References List: A document listing individuals who can vouch for the applicant's work ethic and skills. This typically includes names, contact information, and their relationship to the applicant.
  • Certifications: Copies of any relevant certifications or licenses that demonstrate the applicant's qualifications in HVAC systems, such as EPA certifications or state licenses.
  • Background Check Consent Form: A form granting permission for the employer to conduct a background check, which may include criminal history and employment verification.
  • Driving Record: A document that provides a summary of the applicant's driving history. This is particularly important for positions that require driving as part of the job.
  • Military Service Records: Documentation related to any military service, if applicable. This may include discharge papers or service records that highlight skills gained during service.
  • Portfolio: A collection of work samples or projects that showcase the applicant's skills and experience in the HVAC field. This can be particularly useful for positions that require technical expertise.

These documents collectively create a comprehensive picture of the applicant's qualifications and readiness for the HVAC position. Preparing them ahead of time can streamline the application process and enhance the chances of securing an interview.

Similar forms

The HVAC Job Application form is similar to a standard employment application form. Both documents collect essential personal information such as the applicant's name, address, and contact details. They also ask for the position being applied for and the date of application. Both forms typically require the applicant to disclose their work history, education, and any relevant skills. This information helps employers assess the qualifications of candidates for the job.

Another document that shares similarities is the resume. A resume provides a summary of an applicant’s work experience, education, and skills. Like the HVAC Job Application form, a resume is often tailored to highlight the most relevant experiences for a specific job. Both documents serve the purpose of showcasing an applicant's qualifications, though the resume is usually more detailed and formatted differently.

The cover letter is also akin to the HVAC Job Application form. It allows applicants to introduce themselves and express their interest in a specific position. Both documents aim to present the applicant in a favorable light. While the application form collects factual information, the cover letter provides an opportunity for personal expression and elaboration on why the candidate is a good fit for the role.

Job inquiry letters share similarities with the HVAC Job Application form as well. These letters are often sent to inquire about job openings or express interest in a company. Like the application form, they include personal information and can outline the applicant's qualifications. Both documents serve to initiate a conversation between the job seeker and potential employer.

Internship application forms resemble the HVAC Job Application form in that they gather similar information about the applicant. Both forms typically ask for personal details, educational background, and work experience. However, internship applications may focus more on academic achievements and relevant coursework, as the candidates are often students or recent graduates.

Volunteer application forms are similar in structure to the HVAC Job Application form. They collect personal information and details about the applicant's skills and experiences. Both forms aim to assess whether the applicant is a good fit for the position, whether paid or unpaid. Volunteer applications may also include questions about the applicant’s motivations for volunteering.

Scholarship application forms can be compared to the HVAC Job Application form as they often require personal information, academic records, and a statement of purpose. Both documents aim to evaluate the candidate's qualifications and suitability. While the scholarship application focuses on educational achievements, both types of forms are used to assess potential candidates for opportunities.

Rental applications bear similarities to the HVAC Job Application form as well. They both require personal information, employment history, and references. Rental applications often assess the applicant's financial responsibility, while the HVAC Job Application form evaluates qualifications for employment. Both documents are used to determine if the applicant meets the necessary criteria.

Medical history forms can also be likened to the HVAC Job Application form. Both require personal information and may ask about previous experiences relevant to the position. While medical forms focus on health-related details, both serve to gather essential background information that may impact the applicant’s eligibility or suitability for a specific role.

Lastly, a business license application is similar to the HVAC Job Application form in that it collects detailed personal information and background relevant to the applicant's qualifications. Both forms serve as official documents that require accurate information to assess the applicant’s ability to meet the necessary standards for employment or business operation.

Dos and Don'ts

When filling out the HVAC Job Application form, there are several important practices to keep in mind. Below is a list of things you should do and things you should avoid.

  • Do print clearly and legibly. Ensure that every section of the application is easy to read.
  • Do provide accurate and honest information. Misrepresentation can lead to disqualification.
  • Do thoroughly review the application before submission. Check for any missing information or errors.
  • Do include all relevant experience and skills. Highlight your qualifications to stand out.
  • Don't leave any sections blank unless instructed. Incomplete applications may be disregarded.
  • Don't use informal language or abbreviations. Maintain a professional tone throughout.
  • Don't rush through the application. Take your time to ensure accuracy and completeness.
  • Don't forget to sign and date the application. An unsigned application may not be considered valid.

Misconceptions

  • Misconception 1: The application is too long and complicated.
  • While the HVAC job application form may seem lengthy, it is designed to gather comprehensive information about your qualifications. Completing all sections helps employers assess your fit for the role.

  • Misconception 2: You don’t need to provide a resume.
  • Many applicants believe that submitting the application alone is sufficient. However, attaching a resume can enhance your application by providing a detailed overview of your work history and skills.

  • Misconception 3: Only experienced candidates should apply.
  • Some individuals think they must have extensive experience to submit an application. In reality, employers often value willingness to learn and relevant skills, regardless of experience level.

  • Misconception 4: Personal information is not important.
  • Providing accurate personal information, such as your contact details, is crucial. Employers need this information to reach you for interviews or further communication.

  • Misconception 5: Criminal history will automatically disqualify you.
  • Many applicants fear that any mention of a criminal history will lead to immediate rejection. In truth, employers often consider the nature of the offense and its relevance to the job.

  • Misconception 6: You can skip sections that don’t apply to you.
  • Some believe it’s acceptable to leave sections blank. However, it’s best to provide a response, even if it’s a simple “N/A” for sections that don’t apply to your situation.

  • Misconception 7: Your application will be reviewed immediately.
  • Applicants often assume their application will be reviewed right away. In reality, hiring processes can take time as employers evaluate multiple candidates and schedules.

Key takeaways

Filling out the HVAC job application form correctly can significantly impact your chances of landing the job. Here are some key takeaways to keep in mind:

  • Be Thorough: Complete all sections of the application. Missing information can lead to delays or disqualification.
  • Showcase Your Experience: Clearly outline your work history and relevant skills. Employers look for specific HVAC/R experience.
  • Be Honest: If you have a criminal history or any gaps in employment, provide accurate explanations. Transparency can build trust.
  • Follow Up: After submitting your application, consider reaching out to express your continued interest. This can set you apart from other candidates.