Homepage Fill in Your Erc Broker Market Analysis Template
Table of Contents

The Worldwide ERC® Broker’s Market Analysis and Strategy Report serves as a critical tool for real estate brokers seeking to assess a property’s market potential comprehensively. By allowing brokers to evaluate the condition of the subject property, its competitive landscape, and future marketability, the form facilitates the estimation of the Most Likely Sales Price (MLSP). While it provides insights for effective pricing strategies, it is crucial to distinguish that this report does not replace a home inspection or an appraisal. It specifically centers on a comparative market analysis, which means any conclusions reached should not be treated as an official appraisal under the Uniform Standards of Professional Appraisal Practice. The form also necessitates that brokers account for state-specific disclosure requirements, ensuring compliance and thoroughness. Procedural guidelines outlined in the report assist the broker in managing communication and inspections, while sections detail pertinent information regarding the subject property’s current condition, improvements, and its unique characteristics, whether influenced by location or features. Furthermore, this document encourages brokers to identify necessary repairs, improvements, and any structural issues that may impact the property’s insurability and marketability. Overall, this report is an essential resource for brokers to strategically approach pricing and marketing a property in today’s competitive real estate market.

Sample - Erc Broker Market Analysis Form

Worldwide ERC® Broker’s Market Analysis and Strategy Report

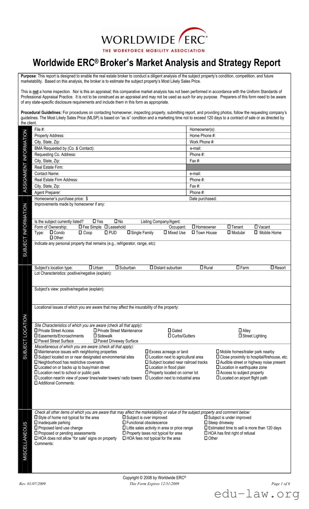
Purpose: This report is designed to enable the real estate broker to conduct a diligent analysis of the subject property’s condition, competition, and future marketability. Based on this analysis, the broker is to estimate the subject property’s Most Likely Sales Price.

This is not a home inspection. Nor is this an appraisal; this comparative market analysis has not been performed in accordance with the Uniform Standards of Professional Appraisal Practice. It is not to be construed as an appraisal and may not be used as such for any purpose. Preparers of this form need to be aware of any state-specific disclosure requirements and include them in this form as appropriate.

Procedural Guidelines: For procedures on contacting homeowner, inspecting property, submitting report, and providing photos, follow the requesting company’s guidelines. The Most Likely Sales Price (MLSP) is based on “as is” condition and a marketing time not to exceed 120 days to a contract of sale or as directed by the client.

 

INFORMATION

 

File #:

 

 

 

 

 

 

 

Homeowner(s):

 

 

 

 

Property Address:

 

 

 

 

 

 

 

Home Phone #:

 

 

 

 

City, State, Zip:

 

 

 

 

 

 

 

Work Phone #:

 

 

 

 

 

 

 

 

 

 

 

 

 

 

 

BMA Requested by (Co. & Contact):

 

 

 

 

 

e-mail:

 

 

 

 

Requesting Co. Address:

 

 

 

 

 

 

 

Phone #:

 

 

 

 

City, State, Zip:

 

 

 

 

 

 

 

Fax #:

 

 

 

ASSIGNMENT

 

 

 

 

 

 

 

 

 

 

 

 

 

 

 

 

 

 

 

 

 

 

 

 

 

Real Estate Firm:

 

 

 

 

 

 

 

 

 

 

 

 

Contact Name:

 

 

 

 

 

 

 

e-mail:

 

 

 

 

Real Estate Firm Address:

 

 

 

 

 

 

 

Phone #:

 

 

 

 

 

 

 

 

 

 

 

 

 

 

 

 

 

City, State, Zip:

 

 

 

 

 

 

 

Fax #:

 

 

 

 

Agent Preparer:

 

 

 

 

 

 

 

Phone #:

 

 

 

 

 

 

 

 

 

 

 

 

 

 

 

 

 

 

 

Homeowner’s purchase price: $

 

 

 

 

 

 

Date purchased:

 

 

 

INFORMATION

 

 

Improvements made by homeowner if any:

 

 

 

 

 

 

 

 

 

 

 

 

 

 

 

 

 

 

 

 

 

 

Is the subject currently listed?

□ Yes

□ No

 

Listing Company/Agent:

 

 

 

 

 

 

 

Form of Ownership:

□ Fee Simple

□ Leasehold

 

 

Occupant:

 

□ Homeowner

□ Tenant

□ Vacant

 

 

 

Type: □ Condo

Coop

PUD

Single Family

Mixed Use

 

Town House

Modular

Mobile Home

 

SUBJECT

 

 

□ Other:

 

 

 

 

 

 

 

 

 

 

 

 

 

Indicate any personal property that remains (e.g., refrigerator, range, etc):

 

 

 

 

 

 

 

 

 

 

 

 

 

 

 

 

 

 

 

 

 

 

 

 

 

 

 

 

 

 

 

 

 

 

 

 

Subject’s location type:

 

Urban

Suburban

Distant suburban

 

Rural

Farm

Resort

 

 

 

 

Lot Characteristics: positive/negative (explain):

 

 

 

 

 

 

 

 

 

 

 

 

 

 

 

 

 

 

 

 

 

 

 

 

Subject’s view: positive/negative (explain):

 

 

 

 

 

 

 

 

Locational issues OF WHICH you are aware that may affect the insurability of the property:

LOCATION

Site Characteristics of which you are aware (check all that apply):

 

 

Private Street Access

Private Street Maintenance

Gated

Alley

Easements/Encroachments

Sidewalk

Curbs/Gutters

Street Lighting

SUBJECT

Paved Street Surface

Paved Driveway Surface

 

 

Miscellaneous of which you are aware (check all that apply):

 

 

Maintenance issues with neighboring properties

Excess acreage or land

Mobile homes/trailer park nearby

Subject located on or near designated environmental sites

Location next to agricultural area

Close proximity to hospital/firehouse, etc.

 

Neighborhood has restrictive covenants

Subject located near railroad tracks

Audible street or highway noise present

 

Located on or backs up to busy/main street

Location in flood plain

Location in earthquake zone

 

Location next to school or public park

Property located on corner lot

Access to subject property

 

Location near/in view of power lines/water towers/ radio towers

Location next to industrial area

Located on airport flight path

 

Additional Comments:

 

 

 

Check all other items of which you are aware that may affect the marketability or value of the subject property and comment below:

 

Style of home not typical for the area

Subject is over improved

Subject is under improved

MISCELLANEOUS

Inadequate parking

Functional obsolescence

Steep driveway

Proposed land use change

Little sales activity in area or price range

Estimated time to sell is more than 120 days

Proposed or pending assessments

Property taxes not typical for area

HOA has first right of refusal

HOA does not allow “for sale” signs on property

HOA fees not typical for the area

Other

Comments:

 

 

 

 

 

Copyright © 2008 by Worldwide ERC®

Rev. 01/07/2009

This Form Expires 12/31/2009

Page 1 of 6

SUBJECT CONDITION

INSPECTIONS/DISCLOSURES

Property Condition

For all the following of which you are aware or observe in viewing the property, check the appropriate box(es) and describe:

Décor of home is personalized or dated:

Incomplete construction:

Evidence of past or present water damage:

Cracks or stains on walls, floors, or ceilings:

Oil tank (abandoned):

Oil tank (in use):

Underground storage tank (abandoned):

Underground storage tank (in use):

Synthetic stucco:

Suspected structural problems:

Evidence of odor:

Evidence of pet damage:

Evidence of deferred maintenance: Additional Comments:

Recommended Repairs and Improvements

 

 

Interior Items

 

 

R&I Estimates

□ Paint

Estimated cost per item: $

Comment:

□ Flooring

Estimated cost per item: $

Comment:

□ Wall paper removal

Estimated cost per item: $

Comment:

□ Appliances

Estimated cost per item: $

Comment:

□ Cabinets

Estimated cost per item: $

Comment:

□ Light fixtures

Estimated cost per item: $

Comment:

□ Countertops

Estimated cost per item: $

Comment:

□ Bathroom fixtures

Estimated cost per item: $

Comment:

□ Other:

Estimated cost per item: $

Comment:

□ Other:

Estimated cost per item: $

Comment:

□ Other:

Estimated cost per item: $

Comment:

Total Estimated Cost for Interior Repairs

$

 

 

 

 

Exterior Items

 

 

R&I Estimates

□ Landscaping

Estimated cost per item: $

Comment:

□ Paint

Estimated cost per item: $

Comment:

□ Driveway/walkway

Estimated cost per item: $

Comment:

□ Porch/deck

Estimated cost per item: $

Comment:

□ Pool

Estimated cost per item: $

Comment:

□ Spa

Estimated cost per item :$

Comment:

□ Gutters

Estimated cost per item: $

Comment:

□ Siding

Estimated cost per item: $

Comment:

□ Trim

Estimated cost per item: $

Comment:

□ Roof

Estimated cost per item: $

Comment:

□ Detached structures

Estimated cost per item: $

Comment:

□ Debris removal

Estimated cost per item: $

Comment:

□ Windows and screens

Estimated cost per item: $

Comment:

□ Other:

Estimated cost per item: $

Comment:

□ Other:

Estimated cost per item: $

Comment:

□ Other:

Estimated cost per item: $

Comment:

Total Estimated Cost for Exterior RepairS

$

 

List all required, customary and additionally recommended inspections (e.g., municipal, certificate of occupancy, environmental, etc.): Required:

Customary:

Additionally recommended for the subject property:

Subject property issues OF WHICH you are aware that may affect insurability of the subject property:

List all required disclosures:

Copyright © 2008 by Worldwide ERC®

Rev. 01/07/2009

This Form Expires 12/31/2009

Page 2 of 6

 

 

Identify the most probable means of financing for the subject:

FHA

VA

Cash

Conventional mortgage—conforming or jumbo

 

 

Other:

 

 

 

 

 

 

 

 

 

 

 

 

 

 

 

 

 

 

 

 

 

 

 

 

 

 

 

Describe the terms of the financing type identified above:

 

 

 

 

 

 

 

 

 

 

 

 

 

 

 

 

 

 

 

 

 

 

 

 

 

 

 

 

 

 

 

 

 

 

 

 

 

 

 

 

Identify and describe any financing concessions that may be necessary to secure the sale of the subject property.

 

 

 

 

 

 

 

 

 

 

 

Points:

 

 

 

 

 

 

 

 

 

 

 

 

 

 

 

 

 

 

 

 

 

 

 

 

 

 

 

 

 

 

 

 

 

 

 

 

 

 

 

 

 

 

 

 

 

 

 

 

 

 

 

 

 

 

 

 

 

Closing Costs:

 

 

 

 

 

 

 

 

 

 

 

 

 

 

 

 

 

 

 

 

 

 

 

 

 

 

 

 

 

 

 

 

 

 

 

 

 

 

 

 

 

 

 

 

 

 

 

 

 

 

 

 

 

 

 

 

 

Other:

 

 

 

 

 

 

 

 

 

 

 

 

 

 

 

 

 

 

 

 

 

 

 

 

 

FINANCING

 

 

 

 

 

 

 

 

 

 

 

 

 

 

 

 

 

 

 

 

 

 

Do you anticipate any issues that may affect the ability to secure financing for the subject property (e.g., condition, zoning, environmental, HOA, etc.)?

 

Yes No

If yes, comment:

 

 

 

 

 

 

 

 

 

 

 

 

 

 

 

 

 

 

 

 

 

 

 

 

 

 

 

 

 

 

 

 

 

 

 

 

 

 

 

 

 

 

 

 

 

 

 

 

 

 

 

 

 

 

 

 

 

 

 

 

 

 

 

 

 

 

 

 

 

 

 

If the subject property is a common interest development (e.g., condo, townhouse, PUD), what is the ratio of owners to investors?

 

N/A

 

 

 

 

 

 

Owners:

%

Investors:

%

(total MUST equal 100%)

 

 

 

 

 

 

 

 

 

 

 

 

 

 

 

 

 

 

 

 

 

 

 

 

 

 

 

 

 

 

 

 

 

 

 

 

 

 

 

 

 

 

 

HOA Fees: $

 

 

 

 

How often are they paid?

 

Monthly

Quarterly

 

Semi-annually

Annually

 

 

 

 

 

 

 

 

 

 

 

 

 

 

 

 

 

 

 

 

 

 

 

 

 

 

 

 

 

 

 

 

Items included in HOA Fees: Trash Pick-up

 

 

 

 

Landscaping

Snow Removal

Exterior Building Maintenance

 

 

 

 

 

 

 

 

Security/Concierge Services

Insurance

Taxes

 

Amenities

 

 

 

 

 

 

 

 

 

 

 

 

 

 

Common Area Maintenance

WATER

 

 

SEWER

 

 

 

 

 

 

 

 

 

 

 

 

 

 

 

 

 

 

Other:

 

 

 

 

 

 

 

 

 

 

 

 

 

 

 

 

 

 

 

 

Are you aware of any special assessments covered by the HOA?

Yes

No

 

 

 

 

 

 

 

 

 

 

 

If yes, indicate the amount of assessment: $

 

 

 

 

 

 

 

 

 

 

 

 

 

 

 

 

 

 

 

 

Describe what the special assessment covers:

 

 

 

 

 

 

 

 

 

 

 

 

 

 

 

 

 

 

 

 

 

 

 

 

 

 

 

 

 

 

 

 

 

 

 

 

 

 

 

 

 

 

Subject Neighborhood (For purposes of this report, the subject neighborhood is defined by the preparer of this form. Identify what you regard as the

 

 

subject neighborhood and then use statistics that you have gathered which reflect that market area. Note: the neighborhood might be a MLS area, a

 

 

particular section of a town, a specific subdivision, or an entire community. This is described as the “micro area.”)

 

 

 

 

 

 

 

 

 

 

 

Subject neighborhood is defined as:

 

 

 

 

 

 

 

 

 

 

 

 

 

 

 

 

 

 

 

 

 

 

 

 

 

 

 

 

 

 

 

 

 

 

 

 

 

 

 

 

 

 

 

 

 

 

 

 

Price Range: $

 

 

 

 

 

 

to $

 

 

 

 

 

 

 

Property Values are: Increasing

% in past

 

months

 

 

 

 

 

 

 

 

 

 

 

 

 

 

 

 

 

 

 

 

Stable

 

 

 

 

 

 

 

 

 

Average Days-on-Market (list to contract)

 

 

 

days

 

 

 

 

 

 

 

 

 

 

 

 

 

 

 

 

 

Decreasing

 

 

 

 

 

 

 

 

 

 

 

 

 

 

 

 

 

(# of days)

 

 

 

 

 

% in past

months

 

 

 

 

 

 

 

 

 

 

 

 

 

 

 

 

 

 

 

 

 

 

 

 

 

 

 

 

 

 

 

 

Calculate the months supply of inventory (Absorption Rate):

 

 

 

Type of competing listings

 

 

 

 

 

 

 

 

 

 

 

 

 

 

 

 

 

 

 

 

 

 

 

 

 

 

 

 

 

 

 

 

 

 

 

 

 

 

 

 

 

 

 

 

 

 

 

 

 

 

 

 

 

 

 

 

 

 

 

 

 

 

 

 

 

 

 

 

 

 

 

 

 

 

 

 

 

 

 

 

 

 

 

 

 

 

New Homes

 

 

 

 

 

 

%

 

 

 

 

 

 

 

 

 

 

 

 

 

 

 

 

 

 

 

 

Resale

 

 

 

 

 

 

%

 

 

 

Number of active listings ÷

Avg. number of sales per month

=

Number of months needed

 

 

 

 

 

 

 

 

 

 

 

 

REO/Foreclosure

 

 

 

 

 

%

 

 

 

 

 

 

 

 

 

 

for the last 6 months

 

 

 

 

to sell existing inventory

 

 

 

 

 

 

 

 

 

 

 

 

 

 

 

 

 

 

 

Corporate

 

 

 

 

 

 

%

 

 

 

 

 

 

 

 

 

 

 

 

 

 

 

 

 

 

 

 

 

 

 

 

 

 

 

 

 

 

 

 

 

 

 

 

 

 

 

 

 

 

 

 

 

 

Total (MUST equal 100%)

 

 

 

 

 

100%

 

 

 

Describe all marketing concessions/incentives being offered to buyers and/or brokers on competing properties:

 

 

 

 

 

 

 

 

 

 

 

 

 

 

 

 

 

 

 

 

 

 

 

 

 

 

 

 

 

 

 

 

CONDITIONS

 

Recommend any marketing concessions/incentives that should be offered for the subject:

 

 

 

 

 

 

 

 

 

 

 

 

 

 

 

 

 

 

 

 

 

 

 

 

 

 

 

 

 

 

 

 

 

 

 

 

 

 

 

MARKET

 

Describe major corporation(s) in this neighborhood that are moving into, out of, or planning layoffs:

 

 

 

 

 

 

 

 

 

 

 

 

 

 

 

 

 

 

 

 

 

 

 

 

 

 

 

 

 

 

 

 

 

 

 

 

 

 

 

 

 

 

 

 

 

 

 

 

 

 

 

 

 

 

 

 

 

 

 

 

 

 

Describe current economic conditions (positive or negative) that may have an Effect on the marketability of the property:

 

 

 

 

 

 

 

 

 

 

 

 

 

 

 

 

 

 

 

 

 

 

 

 

 

 

 

 

Broader Market Area (For purposes of this report, the broader market area is defined as that area beyond the subject neighborhood in which buyers will

 

 

look for comparable properties. This is described as the “macro area.” In some instances, the broader market area will be the same as the subject’s

 

 

neighborhood. If this is the case, indicate it below.)

What do you consider the “broader market area” to be for this property?

 

 

 

 

 

 

Are there any specific issues in the broader market area which are not reflected in the specific neighborhood that might affect the sale of the subject property? Consider types of competing homes (e.g., new construction, REO’s); incentives or concessions that are occurring; economic conditions; a dramatically different price range than the subject; days on market; etc.

Copyright © 2008 by Worldwide ERC®

Rev. 01/07/2009

This Form Expire 12/31/2009

Page 3 of 6

COMPETING LISTINGS

ITEM

SUBJECT

Competing Listing #1

Competing Listing #2

Competing Listing #3

Address, City

 

 

 

 

 

 

 

 

 

 

 

 

 

 

 

Current MLS #

 

 

 

 

 

 

 

 

 

 

 

 

 

 

 

Proximity to Subject

 

 

 

 

 

 

 

 

 

 

 

 

 

 

 

Original List Price

$

 

 

$

 

 

 

$

 

 

 

$

 

 

 

Current List Price

$

 

 

$

 

 

 

$

 

 

 

$

 

 

 

Seller Concessions

 

 

 

 

 

 

 

 

 

 

 

 

 

 

 

Last Price Change Date

 

 

 

 

 

 

 

 

 

 

 

 

 

 

 

Days-on-market (DOM)

 

 

 

 

 

 

 

 

 

 

 

 

 

 

 

from original list date

 

 

 

 

 

 

 

 

 

 

 

 

 

 

 

Previous listing history for last

Orig. List Price $

 

Orig. List Price $

 

Orig. List Price $

 

Orig. List Price $

 

Last List Price $

 

Last List Price

$

 

Last List Price

$

 

Last List Price

$

 

12 months

 

 

 

 

DOM:

 

 

DOM:

 

 

 

DOM:

 

 

 

DOM:

 

 

 

 

 

 

 

 

 

 

 

 

 

 

 

Style

Brick

 

Wood

Brick

 

 

Wood

Brick

 

 

Wood

Brick

 

 

Wood

 

 

 

 

 

 

 

 

 

Composite

Stone

Composite

 

Stone

Composite

 

Stone

Composite

 

Stone

Exterior Finish

Aluminum

Stucco

Aluminum

 

Stucco

Aluminum

 

Stucco

Aluminum

 

Stucco

(Check all that apply)

Synthetic Stucco

Vinyl

Synthetic Stucco

Vinyl

Synthetic Stucco

Vinyl

Synthetic Stucco

Vinyl

 

Hardcoat Stucco

 

Hardcoat Stucco

 

Hardcoat Stucco

 

Hardcoat Stucco

 

 

Other:

 

 

Other:

 

 

 

Other:

 

 

 

Other:

 

 

 

 

Composite

Slate

Composite

 

Slate

Composite

 

Slate

Composite

 

Slate

Roof Type

Tar

 

Tile

Tar

 

 

Tile

Tar

 

 

Tile

Tar

 

 

Tile

Wood shake

Tin

Wood shake

 

Tin

Wood shake

 

Tin

Wood shake

 

Tin

(Check all that apply)

 

 

 

Asphalt shingle

Copper

Asphalt shingle

Copper

Asphalt shingle

Copper

Asphalt shingle

Copper

 

 

Other:

 

 

Other:

 

 

 

Other:

 

 

 

Other:

 

 

 

 

None

 

 

None

 

 

 

None

 

 

 

None

 

 

 

 

Garage

 

# of Cars

Garage

 

 

# of Cars

Garage

 

 

# of Cars

Garage

 

 

# of Cars

 

Attached

Attached

Attached

Attached

Car Storage/Type

 

Detached

 

Detached

 

Detached

 

Detached

 

Built-in

 

Built-in

 

 

Built-in

 

 

Built-in

 

(Check all that apply)

Carport

Carport

 

Carport

 

Carport

 

Attached

Attached

Attached

Attached

 

 

Detached

 

Detached

 

Detached

 

Detached

 

Other:

Built-in

Other:

Built-in

 

Other:

Built-in

 

Other:

Built-in

 

 

 

 

 

 

 

 

 

 

 

 

 

Year Built

 

 

 

 

 

 

 

 

 

 

 

 

 

 

 

Lot Size

 

 

 

 

 

 

 

 

 

 

 

 

 

 

 

Appx. Gross Living Area

 

 

Sq. Ft

 

 

 

Sq. Ft

 

 

 

Sq. Ft

 

 

 

Sq. Ft

Above Grade Room Count

Tot

Brms.

Baths

Tot.

Brms.

Baths

Tot.

Brms.

Baths

Tot.

Brms.

Baths

 

 

 

 

 

 

 

 

 

 

 

 

 

 

 

Basement

None

 

Partial

None

 

 

Partial

None

 

 

Partial

None

 

 

Partial

SLAB

 

Full

SLAB

 

 

Full

SLAB

 

 

Full

SLAB

 

 

Full

(Check all that apply)

 

 

 

 

 

 

 

Crawl Space

WALK-OUT

Crawl Space

 

WALK-OUT

Crawl Space

 

WALK-OUT

Crawl Space

 

WALK-OUT

 

 

 

 

Basement Finish

None

 

Partial

None

 

 

Partial

None

 

 

Partial

None

 

 

Partial

Attic (Check all that apply)

 

 

 

 

 

 

 

Crawl Space

Full

Crawl Space

 

Full

Crawl Space

 

Full

Crawl Space

 

Full

 

 

 

 

Attic Access

Walkup

 

Hatch

Walkup

 

 

Hatch

Walkup

 

 

Hatch

Walkup

 

 

Hatch

Pull down steps

 

Pull down steps

 

Pull down steps

 

Pull down steps

 

 

 

 

 

 

Bonus Room

None

 

Barn

None

 

 

Barn

None

 

 

Barn

None

 

 

Barn

 

 

 

 

 

 

 

 

Detached Structures

Guest House

Studio

Guest House

 

Studio

Guest House

 

Studio

Guest House

 

Studio

(Check all that apply)

Pool House

Shed

Pool House

 

Shed

Pool House

 

Shed

Pool House

 

Shed

 

Other:

 

 

Other:

 

 

 

Other:

 

 

 

Other:

 

 

 

Deck/Patio

 

 

 

 

 

 

 

 

 

 

 

 

 

 

 

Pool/Spa

 

 

 

 

 

 

 

 

 

 

 

 

 

 

 

Fireplace(s)

Public

 

Private

Public

 

 

Private

Public

 

 

Private

Public

 

 

Private

Water Supply

 

 

 

 

 

 

 

Community

Well

Community

 

Well

Community

 

Well

Community

 

Well

 

 

 

 

 

Septic

 

Sewer

Septic

 

 

Sewer

Septic

 

 

Sewer

Septic

 

 

Sewer

Waste Disposal

Cesspool

 

Cesspool

 

 

Cesspool

 

 

Cesspool

 

 

 

Other:

 

 

Other:

 

 

 

Other:

 

 

 

Other:

 

 

 

Type of Air Conditioning

None

 

Central

None

 

Central

None

 

Central

None

 

Central

Window/Wall

Heat Pump

Window/Wall

Heat Pump

Window/Wall

Heat Pump

Window/Wall

Heat Pump

(Check all that apply)

Other:

 

 

Other:

 

 

 

Other:

 

 

 

Other:

 

 

 

 

 

 

 

 

 

 

 

 

 

 

 

 

None

 

Gas

None

 

 

Gas

None

 

 

Gas

None

 

 

Gas

 

Propane

 

Electric

Propane

 

 

Electric

Propane

 

 

Electric

Propane

 

 

Electric

Type of Heating System

Radiant

 

Oil

Radiant

 

 

Oil

Radiant

 

 

Oil

Radiant

 

 

Oil

Wood stove

Solar

Wood stove

 

Solar

Wood stove

 

Solar

Wood stove

 

Solar

(Check all that apply)

 

 

 

Base Board

Coal

Base Board

 

Coal

Base Board

 

Coal

Base Board

 

Coal

 

 

 

 

 

Heat pump

Radiator

Heat pump

 

Radiator

Heat pump

 

Radiator

Heat pump

 

Radiator

 

Other:

 

 

Other:

 

 

 

Other:

 

 

 

Other:

 

 

 

Location

 

 

 

Superior

Similar

Inferior

Superior

Similar

Inferior

Superior

Similar

Inferior

Lot Characteristics

 

 

 

Superior

Similar

Inferior

Superior

Similar

Inferior

Superior

Similar

Inferior

View

 

 

 

Superior

Similar

Inferior

Superior

Similar

Inferior

Superior

Similar

Inferior

Floor Plan Utility

 

 

 

Superior

Similar

Inferior

Superior

Similar

Inferior

Superior

Similar

Inferior

Ext. Condition’s Appeal

 

 

 

Superior

Similar

Inferior

Superior

Similar

Inferior

Superior

Similar

Inferior

Int. Condition’s Appeal

 

 

 

Superior

Similar

Inferior

Superior

Similar

Inferior

Superior

Similar

Inferior

Overall Rating of Listings as

 

 

 

Superior

Similar

Inferior

Superior

Similar

Inferior

Superior

Similar

Inferior

Compared to Subject

 

 

 

 

 

 

 

 

 

 

 

 

 

 

 

Listing #1: Date inspected:

Comments:

 

 

 

 

 

 

 

 

 

 

 

 

 

Listing #2: Date inspected:

Comments:

 

 

 

 

 

 

 

 

 

 

 

 

 

Listing #3: Date inspected:

Comments:

 

 

 

 

 

 

 

 

 

 

 

 

 

Copyright © 2008 by Worldwide ERC®

Rev. 01/07/2009

This Form Expires 12/31/2009

Page 4 of 6

Instructions: Select sales within the last six months which are suitable and similar to the subject property and within the same/similar market area.

COMPARABLE SALES

ITEM

SUBJECT

Comparable Sale #1

Comparable Sale #2

Comparable Sale #3

Address, City

 

 

 

 

 

 

 

 

 

 

 

 

MLS #

 

 

 

 

 

 

 

 

 

 

 

 

Proximity to Subject

 

 

 

 

 

 

 

 

 

 

 

 

Original List Price

$

 

 

$

 

 

$

 

 

$

 

 

Final List Price

 

 

 

$

 

 

$

 

 

$

 

 

Sales Price

 

 

 

$

 

 

$

 

 

$

 

 

Seller Concessions

 

 

 

 

 

 

 

 

 

 

 

 

Under Contract Date

 

 

 

 

 

 

 

 

 

 

 

 

Closing Date

 

 

 

 

 

 

 

 

 

 

 

 

Days-on-market (DOM)

 

 

 

 

 

 

 

 

 

 

 

 

from original list date

 

 

 

 

 

 

 

 

 

 

 

 

Previous listing history for last

Orig. List Price $

 

Orig. List Price $

 

Orig. List Price $

 

Orig. List Price $

 

Last List Price $

 

Last List Price $

 

Last List Price $

 

Last List Price $

 

12 months

 

 

 

 

DOM:

 

 

DOM:

 

 

DOM:

 

 

DOM:

 

 

 

 

 

 

 

 

 

 

 

Style

Brick

 

Wood

Brick

 

Wood

Brick

 

Wood

Brick

 

Wood

 

 

 

 

 

 

Composite

Stone

Composite

Stone

Composite

Stone

Composite

Stone

Exterior Finish

Aluminum

Stucco

Aluminum

Stucco

Aluminum

Stucco

Aluminum

Stucco

(Check all that apply)

Synthetic Stucco

Vinyl

Synthetic Stucco

Vinyl

Synthetic Stucco

Vinyl

Synthetic Stucco

Vinyl

 

Hardcoat Stucco

 

Hardcoat Stucco

 

Hardcoat Stucco

 

Hardcoat Stucco

 

 

Other:

 

 

Other:

 

 

Other:

 

 

Other:

 

 

 

Composite

Slate

Composite

Slate

Composite

Slate

Composite

Slate

Roof Type

Tar

 

Tile

Tar

 

Tile

Tar

 

Tile

Tar

 

Tile

Wood shake

Tin

Wood shake

Tin

Wood shake

Tin

Wood shake

Tin

(Check all that apply)

Asphalt shingle

Copper

Asphalt shingle

Copper

Asphalt shingle

Copper

Asphalt shingle

Copper

 

 

Other:

 

 

Other:

 

 

Other:

 

 

Other:

 

 

 

None

 

 

None

 

 

None

 

 

None

 

 

 

Garage

 

# of Cars

Garage

 

# of Cars

Garage

 

# of Cars

Garage

 

# of Cars

 

Attached

Attached

Attached

Attached

Car Storage/Type

 

Detached

 

Detached

 

Detached

 

Detached

 

Built-in

 

Built-in

 

 

Built-in

 

 

Built-in

 

(Check all that apply)

Carport

Carport

 

Carport

 

Carport

 

Attached

Attached

Attached

Attached

 

 

Detached

 

Detached

 

Detached

 

Detached

 

Other:

Built-in

Other:

Built-in

 

Other:

Built-in

 

Other:

Built-in

 

 

 

 

 

 

 

 

 

 

Year Built

 

 

 

 

 

 

 

 

 

 

 

 

Lot Size

 

 

 

 

 

 

 

 

 

 

 

 

Appx. Gross Living Area

 

 

Sq. Ft

 

 

Sq. Ft

 

 

Sq. Ft

 

 

Sq. Ft

Above Grade Room Count

Tot.

Brms.

Baths

Tot.

Brms.

Baths

Tot.

Brms.

Baths

Tot.

Brms.

Baths

 

 

 

 

 

 

 

 

 

 

 

 

Basement

None

 

Partial

None

 

Partial

None

 

Partial

None

 

Partial

SLAB

 

Full

SLAB

 

Full

SLAB

 

Full

SLAB

 

Full

(Check all that apply)

 

 

 

 

Crawl Space

WALK-OUT

Crawl Space

WALK-OUT

Crawl Space

WALK-OUT

Crawl Space

WALK-OUT

 

Basement Finish

Full

 

Partial

Full

 

Partial

Full

 

Partial

Full

 

Partial

Attic (Check all that apply)

 

 

 

 

Crawl Space

None

Crawl Space

None

Crawl Space

None

Crawl Space

None

 

Attic Access

Walkup

 

Hatch

Walkup

 

Hatch

Walkup

 

Hatch

Walkup

 

Hatch

Pull down steps

 

Pull down steps

 

Pull down steps

 

Pull down steps

 

 

 

 

 

 

Bonus Room

None

 

Barn

None

 

Barn

None

 

Barn

None

 

Barn

 

 

 

 

 

Detached Structures

Guest House

Studio

Guest House

Studio

Guest House

Studio

Guest House

Studio

(Check all that apply)

Pool House

Shed

Pool House

Shed

Pool House

Shed

Pool House

Shed

 

Other:

 

 

Other:

 

 

Other:

 

 

Other:

 

 

Deck/Patio

 

 

 

 

 

 

 

 

 

 

 

 

Pool/Spa

 

 

 

 

 

 

 

 

 

 

 

 

Fireplace(s)

 

 

 

 

 

 

 

 

 

 

 

 

Water Supply

Public

 

Private

Public

 

Private

Public

 

Private

Public

 

Private

Community

Well

Community

Well

Community

Well

Community

Well

 

 

Septic

 

Sewer

Septic

 

Sewer

Septic

 

Sewer

Septic

 

Sewer

Waste Disposal

Cesspool

 

Cesspool

 

Cesspool

 

Cesspool

 

 

Other:

 

 

Other:

 

 

Other:

 

 

Other:

 

 

Type of Air Conditioning

None

 

Central

None

Central

None

Central

None

Central

Window/Wall

Heat Pump

Window/Wall Heat Pump

Window/Wall Heat Pump

Window/Wall Heat Pump

(Check all that apply)

Other:

 

 

Other:

 

 

Other:

 

 

Other:

 

 

 

 

 

 

 

 

 

 

 

 

None

 

Gas

None

 

Gas

None

 

Gas

None

 

Gas

 

Propane

 

Electric

Propane

 

Electric

Propane

 

Electric

Propane

 

Electric

Type of Heating System

Radiant

 

Oil

Radiant

 

Oil

Radiant

 

Oil

Radiant

 

Oil

Wood stove

Solar

Wood stove

Solar

Wood stove

Solar

Wood stove

Solar

(Check all that apply)

Base Board

Coal

Base Board

Coal

Base Board

Coal

Base Board

Coal

 

 

Heat pump

Radiator

Heat pump

Radiator

Heat pump

Radiator

Heat pump

Radiator

 

Other:

 

 

Other:

 

 

Other:

 

 

Other:

 

 

Location

 

 

 

Superior

Similar

Inferior

Superior

Similar

Inferior

Superior

Similar

Inferior

Lot Characteristics

 

 

 

Superior

Similar

Inferior

Superior

Similar

Inferior

Superior

Similar

Inferior

View

 

 

 

Superior

Similar

Inferior

Superior

Similar

Inferior

Superior

Similar

Inferior

Floor Plan Utility

 

 

 

Superior

Similar

Inferior

Superior

Similar

Inferior

Superior

Similar

Inferior

Ext. Condition’s Appeal

 

 

 

Superior

Similar

Inferior

Superior

Similar

Inferior

Superior

Similar

Inferior

Int. Condition’s Appeal

 

 

 

Superior

Similar

Inferior

Superior

Similar

Inferior

Superior

Similar

Inferior

Overall Rating of Sales as

 

 

 

Superior

Similar

Inferior

Superior

Similar

Inferior

Superior

Similar

Inferior

Compared to Subject

 

 

 

 

 

 

 

 

 

 

 

 

 

 

 

Sales #1: Inspected? Yes

No Comments:

 

 

 

 

 

 

 

 

 

 

Sales #2: Inspected?

Yes

No Comments:

Sales #3: Inspected?

Yes

No Comments:

Copyright © 2008 by Worldwide ERC®

Rev. 01/07/2009

This Form Expires 12/31/2009

Page 5 of 6

MOST LIKELY

BUYER(S)

MARKETING STRATEGY

VALUE

ANALYSIS

SIGNATURES

Check all that apply:

 

 

 

 

Local Buyer

Transferee

International Buyer

First-time Homebuyer

Second-home Buyer

Empty Nester

Military

Parent Purchaser for Child

Move-up Homebuyer

Investor

Dual-income

Other:

 

 

 

What are the three - five challenges to getting this property sold?

1.

2.

3.

4.

5.

What are the three - five actions necessary to address the challenges identified above?

1.

2.

3.

4.

5.

What are the top five creative ideas you will use in marketing this property keeping in mind the challenges and actions identified above?

1.

2.

3.

4.

5.

Additional Comments:

Most Likely Sales Price (MLSP): $

 

 

 

Suggested List Price (SLP): $

 

 

The MLSP is based on “as is” condition and a marketing time not to exceed

 

 

 

days to a contract of sale.

 

 

 

 

(# of days)

 

 

 

 

 

 

 

 

File #:

 

 

Real Estate Firm:

 

 

 

 

 

 

 

 

Real Estate Firm Tax ID #:

 

 

Date of Inspection:

 

 

 

 

 

 

 

 

Contact Name:

 

 

Agent Preparer Name:

 

 

 

 

 

 

 

 

Contact Signature:

 

 

Agent Preparer Signature:

 

 

 

 

 

 

 

 

Copyright © 2008 by Worldwide ERC®

Rev. 01/07/2009

This Form Expires 12/31/2009

Page 6 of 6

File Specs

Fact Name Details
Purpose The form facilitates a thorough market analysis of a property's condition, competition, and marketability.
Sales Price Estimate It helps brokers estimate the Most Likely Sales Price (MLSP) based on the property’s current condition.
Not an Appraisal This is not an appraisal and does not comply with the Uniform Standards of Professional Appraisal Practice.
State-Specific Requirements Prepares must consider state-specific disclosure requirements and incorporate them accordingly.
Maximum Marketing Time The analysis assumes a marketing time not exceeding 120 days unless directed otherwise.
Inspections and Repairs Includes recommendations for necessary repairs, categorized as interior and exterior items.
Financing Options Identifies potential means of financing for the property, including FHA and VA options.
Neighborhood Analysis The report defines both a subject neighborhood and a broader market area for comparative analysis.
Marketing Concessions Offers guidance on possible marketing concessions to improve the property's appeal to buyers.
Expiration Date The form is valid until December 31, 2009, and was last revised in January 2009.

Erc Broker Market Analysis - Usage Guidelines

Completing the ERC Broker Market Analysis form accurately is crucial for providing a thorough analysis of the property in question. The information collected will help assess market conditions and establish a Most Likely Sales Price. Following these steps will ensure that all necessary details are captured effectively.

  1. Obtain the form from the requesting company.
  2. Fill in the information section at the top of the form. Include your file number, homeowner(s) names, property address, and contact numbers.
  3. Provide the details of the requesting company, including its name, contact person, email, and address.
  4. In the assignment section, enter the name of the real estate firm, contact person, address, and fax number.
  5. Record the homeowner’s purchase price and date of purchase in the appropriate fields.
  6. Detail any improvements made to the property, if applicable.
  7. Indicate whether the property is currently listed for sale and provide the listing company or agent’s information.
  8. Specify the form of ownership and occupancy status (e.g., homeowner, tenant, vacant).
  9. Describe the type of the property (e.g., condo, single-family home) and provide details on any personal property that will remain with the property.
  10. Summarize the property's lot characteristics and view, noting any positive or negative aspects.
  11. Document any locational issues that may affect insurability in the designated section.
  12. Check the boxes relevant to the site characteristics known to you, including private street access and whether the street is paved.
  13. Provide information about miscellaneous factors that could affect property marketability, using the checklist provided.
  14. Conduct a property inspection and check all applicable condition issues. Include comments as needed.
  15. Estimate repair costs by listing necessary interior and exterior improvements, detailing specifics and estimated costs for each item.
  16. List any required inspections along with their types (e.g., municipal, environmental).
  17. Identify the most probable means of financing available for the property, along with any potential issues that may arise.
  18. Describe the neighborhood and broader market area, including price ranges and sales activity trends.
  19. Complete the comparable sales section by entering details of similar properties sold in the area.
  20. Finish the form by noting any comments, marketing concessions, and information on competing listings.

Once you have filled out the form, it should be reviewed to ensure all necessary fields are completed accurately. After that, submit the form according to the guidelines provided by the requesting company.

Your Questions, Answered

What is the purpose of the ERC Broker Market Analysis form?

The ERC Broker Market Analysis form is designed to assist real estate brokers in conducting a thorough assessment of a property. The aim is to evaluate the property's condition, competition, and potential marketability. Brokers use this analysis to estimate the Most Likely Sales Price of a property, based on its current state and the expected timeframe for a sale. It is important to note that this form is not an appraisal or a home inspection, and cannot be used as such.

What is the Most Likely Sales Price (MLSP) and how is it determined?

The Most Likely Sales Price (MLSP) is an estimated price that a broker believes the property could sell for, given its current condition and market factors. This price estimate assumes the property will not stay on the market for longer than 120 days unless directed otherwise by the client. Brokers analyze various aspects of the property, such as its location, physical conditions, and recent comparable sales to arrive at this figure.

Are there any specific requirements that preparers of this form need to be aware of?

Yes, those preparing the ERC Broker Market Analysis form must be familiar with any state-specific disclosure requirements. These may include obligations to inform potential buyers about property conditions and other relevant information. It’s crucial for brokers to ensure that all necessary disclosures are included in the completed form, to comply with legal standards and protect all parties involved in the transaction.

What factors are considered when analyzing a property's marketability?

Several factors play a role in determining a property's marketability. These include its physical condition, the overall location and neighborhood, comparable sales data, and prevailing market trends. Additionally, issues such as unique characteristics of the property, existing liens, or special assessments can significantly impact its attractiveness to potential buyers. Thus, a comprehensive evaluation of both external and internal factors is essential for providing an accurate market analysis.

How do brokers handle inspections and the submission of the Market Analysis report?

Brokers must adhere to specific procedural guidelines when contacting homeowners, inspecting properties, and submitting their Market Analysis reports. This includes following the requesting company’s policies regarding inspections and required photographs. It’s important for the broker to communicate clearly with the homeowner to ensure that all necessary information is gathered and that the homeowner is comfortable with the inspection process.

Common mistakes

  1. Neglecting to Follow State-specific Disclosure Requirements: Each state has its own rules when it comes to real estate transactions. Failing to include the necessary disclosures can lead to serious legal issues. Always check local laws before completing the form.

  2. Skipping Necessary Field Descriptions: The form includes several fields meant to describe the property's condition, improvements made, and unique features. Omitting vital details can result in an inaccurate assessment and ultimately affect the sales price estimation.

  3. Providing Incomplete Financial Information: It’s critical to accurately describe the financing options available for the property. Incorrectly outlining potential financing or neglecting to indicate necessary concessions may mislead potential buyers about their options.

  4. Underestimating Market Trends: Understanding the local market is essential. Inspectors should provide a detailed analysis of conditions affecting property values. Overlooking these factors can lead to mispricing the property and extended market time.

Documents used along the form

The ERC Broker Market Analysis form is often used in conjunction with several important real estate documents. Each plays a vital role in assessing a property’s condition, marketability, and overall value. Familiarity with these forms will ensure a comprehensive understanding of property evaluations.

  • Comparative Market Analysis (CMA): This document compares the property to similar properties recently sold in the area. It helps determine the property’s market value based on real sales data.
  • Property Inspection Report: An inspection report outlines a property’s physical condition, highlighting any deficiencies. This report assists in uncovering repairs that may affect the property’s value.
  • Appraisal Report: Conducted by a licensed appraiser, this report provides an unbiased valuation of the property. It must comply with specific guidelines and typically assesses the property based on its condition, location, and market trends.
  • Listing Agreement: This agreement secures the broker’s right to list the property for sale on behalf of the homeowner. It specifies terms, such as commission rates and duration, ensuring clarity and accountability.
  • Seller Disclosure Statement: Required in many states, this document details any known issues with the property. It protects the seller from future claims by buyers regarding undisclosed defects.
  • Real Estate Purchase Agreement: This legally binding contract outlines the terms of the sale between buyer and seller. It includes price, contingencies, and timelines necessary for closing the sale.
  • Title Report: A title report provides verification of the property’s legal ownership and identifies any encumbrances, liens, or defects in the title. This ensures that the property is free of legal issues before transfer.
  • Marketing Plan: This document outlines strategies for advertising the property, targeting potential buyers, and successfully closing the sale. It includes timelines and specific actions for effective promotion.

Understanding and utilizing these forms alongside the ERC Broker Market Analysis enhances the evaluation process, promoting informed decision-making for buyers, sellers, and brokers alike.

Similar forms

The Comparative Market Analysis (CMA) is a document frequently used by realtors. It assesses the value of a property based on similar properties' sales in the area. While the ERC Broker Market Analysis focuses on estimating the Most Likely Sales Price, a CMA provides a broader view of market trends and conditions, allowing homeowners to understand how their property stands compared to others. Both documents rely on recent sales data, but a CMA often includes more extensive analyses of market conditions and trends.

The Appraisal Report is another key document in real estate transactions. Appraisers evaluate property value according to standardized methodologies, which go beyond the subjective analysis of a broker. Unlike the ERC form, which centers on marketability from a sales perspective, an appraisal provides a legally binding assessment often required by lenders. It includes more formalized standards and processes specific to local regulations and valuation practices.

The Property Inspection Report serves a different purpose, focusing primarily on the physical condition of the property. Inspectors identify issues that could affect the property's value or safety, providing a comprehensive check-up of systems like plumbing and electrical. In contrast, the ERC Broker Market Analysis emphasizes market conditions rather than the detailed mechanical assessment of the property itself.

The Seller Disclosure Statement is often required during home sales. It outlines known issues with the property that could affect its value. While the ERC Broker Market Analysis may note problems that influence marketability, the Seller Disclosure formalizes what the seller knows about the property's condition, creating a clear record for potential buyers.

The Rental Market Analysis (RMA) is essential for investors focusing on income properties. An RMA assesses potential rental rates by comparing other rental properties in the area. This parallels the ERC Broker Market Analysis's objective to evaluate a property for sale concerning its conditions and competition. However, the RMA emphasizes income potential rather than resale value.

The Listing Agreement outlines the contractual relationship between the seller and the agent. This document details terms for listing a property on the market. While the ERC Broker Market Analysis assists in setting a fair price, the Listing Agreement serves as the formal authority that authorizes agents to market the property, thus establishing reciprocity in the selling process.

The Closing Statement is critical for finalizing a property transaction. It includes all financial details, such as sale price, adjustments, and agent commissions. Unlike the ERC Broker Market Analysis, which is preparatory, the Closing Statement confirms the results of the entire sales process and ensures all parties meet their obligations before the deal closes.

The Title Report reveals the legal status of the property and any existing liens or claims. While the ERC Broker Market Analysis assesses physical and market conditions, the Title Report provides a legal perspective. It ensures that the property ownership is clear and free of issues that could impede a sale.

The Marketing Plan outlines strategies to promote a property effectively. It often utilizes insights from market analyses to inform pricing and targeting strategies. The ERC Broker Market Analysis contributes valuable data but does not serve as a comprehensive marketing tool; rather, it supports a more extensive plan to market the property based on gathered intelligence.

The BPO (Broker Price Opinion) is similar to the ERC form in that both assess property value. However, BPOs are often used for lender purposes and are more targeted toward foreclosure properties. While the ERC Broker Market Analysis is geared toward evaluating a property’s market condition for sale, a BPO primarily serves lenders who need quick evaluations for mortgage decisions.

Dos and Don'ts

When filling out the ERC Broker Market Analysis form, it is crucial to adhere to best practices to ensure clarity and accuracy. Here are eight essential do's and don'ts:

  • Do provide accurate and complete information regarding the property, including all relevant details about improvements and ownership.
  • Do follow the requesting company’s guidelines for contacting homeowners and conducting inspections.
  • Do check for state-specific disclosure requirements and ensure they are included in the analysis.
  • Do mention any existing issues that could impact the property’s insurability and marketability.
  • Don't confuse the purpose of this analysis with a home inspection or appraisal; they serve different functions.
  • Don't skip sections; every part of the form is designed to gather critical information and should be completed thoroughly.
  • Don't underestimate the importance of accurately estimating the Most Likely Sales Price based on market data.
  • Don't overlook the significance of commenting on external factors that may affect the property, such as neighborhood issues or economic conditions.

Misconceptions

  • Misconception 1: The Erc Broker Market Analysis form is an appraisal.
  • This form does not serve as an appraisal. Instead, it provides a comparative market analysis aimed at estimating the Most Likely Sales Price based on various property details and market conditions.

  • Misconception 2: The analysis is a home inspection.
  • While the Erc Broker Market Analysis includes comments on the condition of the property, it is not a home inspection. The purpose is to analyze market factors rather than evaluate the property's structural integrity.

  • Misconception 3: The Most Likely Sales Price is fixed and absolute.
  • The Most Likely Sales Price (MLSP) is an estimate based on the property's current condition and market conditions. It is subject to change as these factors fluctuate.

  • Misconception 4: All necessary disclosures are included in the form.
  • The form requires preparers to be aware of and include any state-specific disclosure requirements. Therefore, completeness may vary according to local regulations.

  • Misconception 5: The analysis applies universally to any market.
  • This form is tailored to the specific property and its surrounding market. The analysis will differ significantly based on local real estate trends and conditions.

  • Misconception 6: The form can only be completed by licensed appraisers.
  • While knowledge of real estate markets is beneficial, the form can be completed by real estate brokers who follow necessary procedural guidelines.

  • Misconception 7: The analysis disregards external factors impacting property value.
  • The form considers various external factors impacting marketability, such as neighborhood characteristics, economic conditions, and proximity to amenities, providing a comprehensive overview.

Key takeaways

  • The ERC Broker Market Analysis form helps real estate brokers assess the condition and marketability of a property, not to be confused with an appraisal or home inspection.
  • Completing the form requires gathering information about the property, including its physical condition, improvements made by the homeowner, and property listing details.
  • The analysis focuses on estimating the Most Likely Sales Price (MLSP), which reflects the property's condition "as is" and projected marketing time.
  • It is essential to adhere to any relevant state-specific disclosure requirements when preparing this form.
  • Property condition evaluations should include checking for evidence of damage, outdated decor, and necessary repairs that may necessitate improvements.
  • Consideration of neighborhood dynamics, market conditions, and current economic factors is essential when assessing the property's marketability.
  • Documenting any competitive listings in the area provides context for pricing and selling strategy.
  • Marketing concessions or incentives may be addressed in the analysis to enhance buyer attractiveness.
  • Research and detail any relevant financing options and potential issues that could affect securing a sale, such as HOA regulations or environmental concerns.