Homepage Fill in Your Chicago Title Waiver Format Template
Table of Contents

The Chicago Title Waiver Format form is an essential document used in the construction industry within the State of Illinois. It serves as a formal notification that certain claims, specifically mechanics' liens, have been waived by the undersigned. By executing this form, contractors or suppliers confirm they have received payment for services or materials provided up to a specified date, ensuring that no additional claims will arise from their work. This form includes critical sections such as the acknowledgment of payment received, a detailed listing of all parties involved in the project, and any extras, such as change orders. Additionally, the contractor’s affidavit section adds another layer of assurance by validating that the waivers are genuine and that no outstanding contracts exist other than what is disclosed. Ultimately, this document is vital for protecting owners from potential lien claims and allows for smoother transaction and project completion processes.

Sample - Chicago Title Waiver Format Form

COMPANY NAME

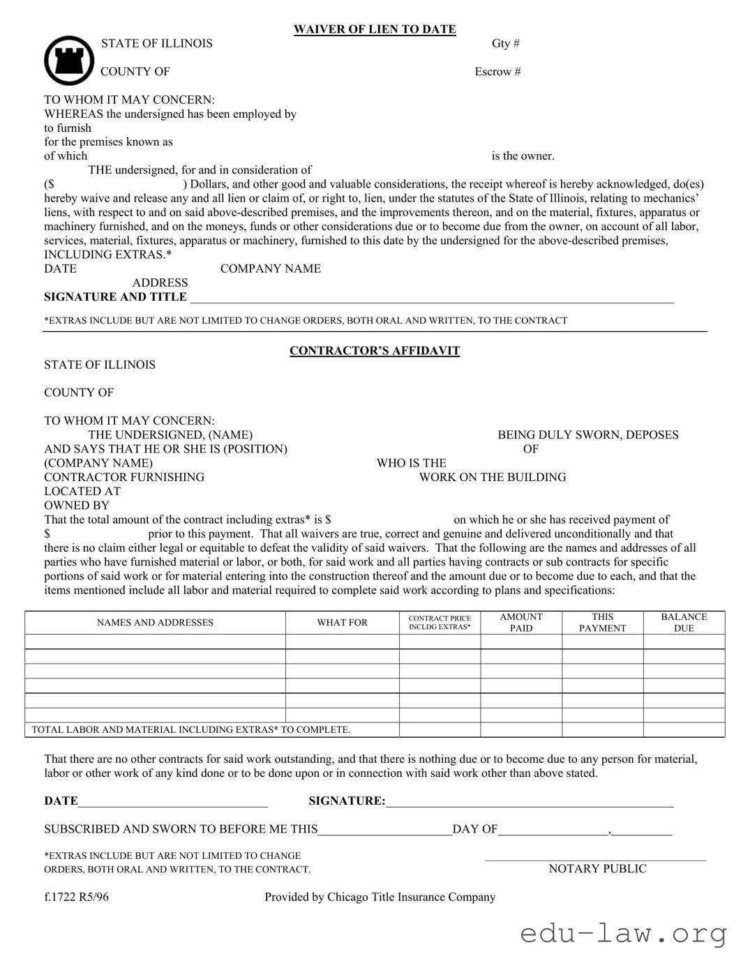
WAIVER OF LIEN TO DATE

 

S STATE OF ILLINOIS

Gty #

COUNTY OF

Escrow #

TO WHOM IT MAY CONCERN:

 

WHEREAS the undersigned has been employed by

 

to furnish

 

for the premises known as

 

of which

is the owner.

THE undersigned, for and in consideration of

($) Dollars, and other good and valuable considerations, the receipt whereof is hereby acknowledged, do(es) hereby waive and release any and all lien or claim of, or right to, lien, under the statutes of the State of Illinois, relating to mechanics’ liens, with respect to and on said above-described premises, and the improvements thereon, and on the material, fixtures, apparatus or machinery furnished, and on the moneys, funds or other considerations due or to become due from the owner, on account of all labor, services, material, fixtures, apparatus or machinery, furnished to this date by the undersigned for the above-described premises,

INCLUDING EXTRAS.* DATE

ADDRESS

SIGNATURE AND TITLE _______________________________________________________________________________

*EXTRAS INCLUDE BUT ARE NOT LIMITED TO CHANGE ORDERS, BOTH ORAL AND WRITTEN, TO THE CONTRACT

CONTRACTOR’S AFFIDAVIT

STATE OF ILLINOIS

COUNTY OF

 

TO WHOM IT MAY CONCERN:

 

THE UNDERSIGNED, (NAME)

BEING DULY SWORN, DEPOSES

AND SAYS THAT HE OR SHE IS (POSITION)

OF

(COMPANY NAME)

WHO IS THE

CONTRACTOR FURNISHING

WORK ON THE BUILDING

LOCATED AT

 

OWNED BY

 

That the total amount of the contract including extras* is $

on which he or she has received payment of

$prior to this payment. That all waivers are true, correct and genuine and delivered unconditionally and that there is no claim either legal or equitable to defeat the validity of said waivers. That the following are the names and addresses of all parties who have furnished material or labor, or both, for said work and all parties having contracts or sub contracts for specific portions of said work or for material entering into the construction thereof and the amount due or to become due to each, and that the items mentioned include all labor and material required to complete said work according to plans and specifications:

NAMES AND ADDRESSES

WHAT FOR

CONTRACT PRICE INCLDG EXTRAS*

AMOUNT

PAID

THIS

PAYMENT

BALANCE

DUE

TOTAL LABOR AND MATERIAL INCLUDING EXTRAS* TO COMPLETE.

That there are no other contracts for said work outstanding, and that there is nothing due or to become due to any person for material, labor or other work of any kind done or to be done upon or in connection with said work other than above stated.

DATE_______________________________

SIGNATURE:_______________________________________________

SUBSCRIBED AND SWORN TO BEFORE ME THIS______________________DAY OF__________________,__________

*EXTRAS INCLUDE BUT ARE NOT LIMITED TO CHANGE

 

_____________________________________________

ORDERS, BOTH ORAL AND WRITTEN, TO THE CONTRACT.

NOTARY PUBLIC

f.1722 R5/96

Provided by Chicago Title Insurance Company

File Specs

Fact Name Details
Form Name Chicago Title Waiver Format
Governing Law State of Illinois mechanics’ lien statutes
Purpose To waive any lien or claim on the property by the undersigned contractor
Consideration Includes monetary value and other good considerations received by the contractor
Extras Definition Extras encompass change orders, whether oral or written, related to the contract
Location Requirement A specific address for the property must be stated in the form
Signature Requirement The form must be signed by an authorized representative of the contractor
Contractor’s Affidavit The form includes a sworn statement confirming the accuracy of waiver information
Notary Requirement The affidavit must be acknowledged before a notary public
Payment Confirmation The contractor must disclose total contract amounts and payments received prior to signing

Chicago Title Waiver Format - Usage Guidelines

Filling out the Chicago Title Waiver Format form may seem daunting, but it’s a straightforward process once you know what to do. After completing the form, you'll be on your way to ensuring that all parties are clear about any liens related to the property in question.

  1. Start with the Company Name. Enter the name of your company at the top of the form.
  2. Fill in the Date section. Provide the date you are filling out this form.
  3. Write the State, which should be Illinois, followed by the County where the work is being performed.
  4. Enter the Escrow Number. This number is typically provided by your escrow officer.
  5. Address the form to Whom It May Concern. This can simply be written as “To Whom It May Concern.”
  6. Next, fill in the premises known as section. Specify the address of the property for which the waiver is being issued.
  7. Identify the owner of the property. Include the owner’s name or entity.
  8. State the total consideration amount in ($) Dollars. This value reflects the financial consideration for the waiver.
  9. In the description below, write a brief statement about waiving any lien or claim. Make sure to include that this is done under Illinois statutes relating to mechanics' liens.
  10. Indicate the date at which this waiver takes effect.
  11. Provide your address as the undersigned party.
  12. Finally, sign the document and include your title in the space provided.

Don’t forget to complete the Contractor’s Affidavit section as well, which involves providing details about the contractor's position and payment received. Lastly, have it notarized to give your waiver the legal backing it requires.

Your Questions, Answered

What is the Chicago Title Waiver Format form?

The Chicago Title Waiver Format form is a legal document used in Illinois to waive the right to lien claims under mechanics’ lien statutes. This form is typically used by contractors or suppliers who have provided labor or materials for a property but wish to relinquish their right to file a lien against it, usually upon receiving payment. This assures property owners that they will not face unexpected claims for unpaid services related to the project.

Who needs to use the Chicago Title Waiver Format form?

This form is particularly important for contractors, subcontractors, and suppliers in the construction industry. If you have worked on a construction project and have been compensated for your services, you might consider using this waiver to officially confirm that you won't pursue a lien against the property. It protects the property owner from future claims and establishes clear communication between parties.

What are 'extras' and how are they addressed in the form?

Extras refer to any additional work or materials provided beyond the original contract terms. This can include changes requested by the property owner or unexpected expenses incurred during the project. The form explicitly states that extras are included and outlines that both oral and written change orders are accounted for, emphasizing the importance of documenting these additional services to ensure clarity in financial obligations.

What does it mean to waive a lien?

Waiving a lien means that the contractor or supplier relinquishes their right to file a legal claim against the property for unpaid labor or materials. When this is executed through the form, it indicates that the signer has been paid or is in agreement regarding the payment arrangements. It is a way to provide assurance that no further claims will be made, enhancing trust between the property owner and the contractor.

What information do I need to fill out the Chicago Title Waiver Format form?

To complete the form, you will need to provide details such as the company name, the property owner's name, the project location, the amount being waived, and specifics about any extras. You must also include the date, your address, and your signature along with your title. For comprehensive accuracy, it is essential to double-check that all collaborators’ names are correctly listed, along with any balances due.

Is a notary required for this form?

Yes, the Chicago Title Waiver Format form requires notarization. This means that after you have filled out the form, you will need to sign it in front of a notary public. The notary verifies your identity and ensures that you are signing the document willingly, adding an essential layer of authenticity and legal weight to the waiver.

What happens if I don’t use this form?

If you choose not to use the waiver form, you retain your right to file a lien against the property for unpaid work or materials. However, doing so may lead to disputes and potentially legal actions, which can be costly and time-consuming. The waiver helps clarify payment agreements and protects all parties involved, so opting out can complicate things for both you and the property owner.

Can the waiver be revoked once it is signed?

Generally, once the waiver is signed and notarized, it cannot be revoked. This means that the contractor or supplier acknowledges that they have been paid for their work, relinquishing any future claims regarding that payment. However, if there are issues or disputes regarding the payment itself, those circumstances may require further attention, possibly involving legal counsel to navigate the situation.

What should I do if I have more questions about this form?

If you have further questions about the Chicago Title Waiver Format form, consider reaching out to a legal professional who specializes in construction law or real estate. They can provide tailored advice that aligns with your specific situation. Additionally, you may want to consult the Chicago Title Insurance Company or resources they provide for further guidance on utilizing this form effectively.

Common mistakes

  1. Omitting Required Information: Many people fail to fill out all the necessary fields, such as the company name, date, and address. Each section of the form must be completed accurately to avoid complications.

  2. Incorrect Amounts: It is common to enter incorrect financial figures, such as the total contract price or amounts paid. Double-check these numbers to ensure they reflect the actual amounts involved.

  3. Not Including Extras: Failing to mention “extras” is a frequent mistake. Be sure to list any additional charges or change orders, as these can significantly affect the waiver's validity.

  4. Improper Signatures: Some individuals neglect to sign the document or have the wrong person sign it. Ensure that all necessary parties have properly authorized the waiver to prevent future disputes.

Documents used along the form

The Chicago Title Waiver Format form is essential in real estate transactions, particularly in Illinois. It serves to release mechanics' liens on various materials and labor associated with a construction project. Along with this form, several other documents can support or clarify its intent. Here are a few key documents often utilized in conjunction with the Chicago Title Waiver.

  • Contractor’s Affidavit: This document provides a sworn statement from the contractor, confirming the amount of the contract, payment received, and that all necessary waivers have been delivered. It ensures that all parties involved in the transaction are informed of the financial status of the project.
  • Final Waiver of Lien: A final waiver of lien is issued at the completion of a project. It confirms that the contractor and subcontractors have been paid in full. This waiver protects the property owner from any future claims for unpaid work.
  • Notice of Intent to Lien: This notice serves to inform property owners of an impending lien that may be filed due to non-payment. It is a precautionary step taken by contractors or suppliers to ensure their claims are addressed before any legal action is taken.
  • Construction Contract: The construction contract outlines the terms of the project between the owner and the contractor. It includes details such as the scope of work, payment schedules, and the timeline for the project, establishing clear expectations for all parties involved.
  • Change Order: A change order documents any modifications to the original construction contract. This may involve adjustments in scope, timelines, or costs. It ensures that all parties agree to the changes and acknowledges any additional work or materials needed.
  • Subcontractor Agreements: These agreements are contracts between the primary contractor and any subcontractors involved in the project. They detail the specific work assigned, costs, and timelines, ensuring accountability and clarity in the project's execution.
  • Certificate of Insurance: This document verifies that the contractor carries adequate insurance coverage. It protects the property owner from potential liabilities arising from accidents or damages that may occur during the construction process.

Utilizing these documents alongside the Chicago Title Waiver Format form helps ensure a smooth and legally compliant construction process. Each document serves a distinct purpose, contributing to the overall clarity and security of real estate transactions.

Similar forms

The Chicago Title Waiver Format form bears similarities to the Contractor’s Affidavit. This form is used in construction projects to declare that all contractual obligations have been fulfilled regarding payments to subcontractors and suppliers. Like the waiver, the affidavit serves a critical purpose in protecting both the contractor and the property owner by ensuring that there are no outstanding debts related to the project. It confirms that the contractor has remitted payment to all relevant parties, thus securing the property from potential mechanics’ liens originating from unpaid subcontractors or material suppliers.

Another document closely aligned with the Chicago Title Waiver Format is the Lien Waiver. Similar to the waiver form, a lien waiver serves to relinquish the right to file a mechanics' lien against a property for work completed. Notably, lien waivers can be conditional or unconditional. The unconditional lien waiver is effective upon receipt of payment, whereas the conditional variety becomes valid once the payment clears. Both documents protect property owners from potential claims by contractors or suppliers after payment has been made, thereby ensuring a smoother transaction process in property improvements.

The Subcontractor’s Lien Waiver is also akin to the Chicago Title Waiver Format. This document allows subcontractors to waive their rights to file a lien on a property in exchange for payment. It plays a crucial role in construction management by assuring property owners that all material and labor costs have been settled. Like the Chicago waiver, it diminishes the risk of future claims against the property, thus fostering a more transparent and conflict-free business relationship among involved parties.

A further comparison can be drawn to the Partial Lien Waiver. This form is employed when a contractor or subcontractor has received payment for a portion of the work completed but retains the right to file a lien for unpaid amounts. It is a compromise document: it waives the right to file for the amount already paid, while simultaneously preserving the right to claim for any outstanding balances. Similar to the Chicago Title Waiver, it is designed to ensure that all parties involved have clarity regarding the status of payments and obligations.

Lastly, the Final Lien Waiver can be compared to the Chicago Title Waiver Format. Used at the completion of a project, this document signifies that the contractor or subcontractor acknowledges full payment for all work performed and waives any future claims against the property. It is similar in function to the Chicago Title waiver, sealing the assurance that upon completion and full payment, no further claims can be made regarding services rendered, thus offering a layer of finality in the transactional process of construction.

Dos and Don'ts

When filling out the Chicago Title Waiver Format form, there are important dos and don’ts to consider. Here’s a helpful guide:

  • Do provide accurate company and project information.
  • Do clearly state the total contract value, including extras.
  • Do ensure all signatures are present and correctly dated.
  • Do double-check the names and addresses of all parties involved.
  • Do review the form for completeness before submission.
  • Don’t leave any sections blank; fill out all required fields.
  • Don’t forget to include details about extras; they are crucial.
  • Don’t misrepresent facts; accuracy is essential.
  • Don’t submit the form without all necessary signatures.
  • Don’t wait until the last minute to file; allow for issues to arise.

Misconceptions

Misconceptions can often lead to confusion, especially when dealing with legal forms such as the Chicago Title Waiver Format. Here are six common misconceptions and clarifications regarding this form:

  1. Only Contractors Need to Use the Waiver: Many people believe that this waiver is only for general contractors. In reality, any party that provides labor or materials for a construction project may need to use the form. This includes subcontractors, suppliers, and service providers.
  2. The Waiver Eliminates All Liens: Another common myth is that signing this waiver completely removes all lien rights. However, the waiver specifically addresses mechanics’ liens related to the work completed up to the date of signing. Future work or claims are not covered.
  3. Payment Is Guaranteed with the Waiver: People often think that by signing the waiver, they automatically receive payment. While the waiver acknowledges receipt of payment for work performed, it doesn't guarantee future payments or shield against non-payment for additional work.
  4. It's Only Valid in Illinois: Some assume that since it references the State of Illinois, this form is only valid within that state. However, while it adheres to Illinois statutes regarding mechanics’ liens, similar waivers exist in other jurisdictions, albeit with different requirements.
  5. All Waivers Are Identical: There is a misconception that all waiver forms are the same. In reality, the content and legal implications of waivers can vary based on factors such as the type of construction project and the relationships between parties involved.
  6. You Cannot Change the Waiver Terms: Finally, some believe the terms in the waiver are set in stone. However, parties may negotiate terms before signing, as long as any modifications align with legal requirements and are agreed upon by all involved parties.

Understanding these misconceptions is vital for anyone involved in construction projects. By having accurate information, stakeholders can make better decisions and protect their rights effectively.

Key takeaways

  • Understanding the Purpose: The Chicago Title Waiver Format form is designed to release claims or liens related to work performed on a property. It ensures that contractors and subcontractors relinquish their right to file a mechanics' lien.
  • Accurate Completion: It is crucial to fill in the company name, property details, and contractor information accurately to avoid any complications in future claims or disputes.
  • Consideration Amount: The form requires the inclusion of the consideration amount, which is the sum of money exchanged. This must be filled out clearly to reflect the agreement.
  • Details of Services Rendered: A complete list of all materials, labor, and services provided up to the date specified in the form is essential for a thorough waiver.
  • Extra Work Documentation: Any additional work or change orders should be explicitly mentioned as they are included in the total amount. The form notes that extras may be oral or written changes to the contract.
  • Affidavit Requirement: The contractor must sign an affidavit confirming the waivers are genuine and that no other claims exist other than those listed on the form.
  • Notarization: The form must be notarized to ensure its legal validity. This involves having a notary public witness the signature and date the document.