Homepage Fill in Your Certificate Of Correction Template
Table of Contents

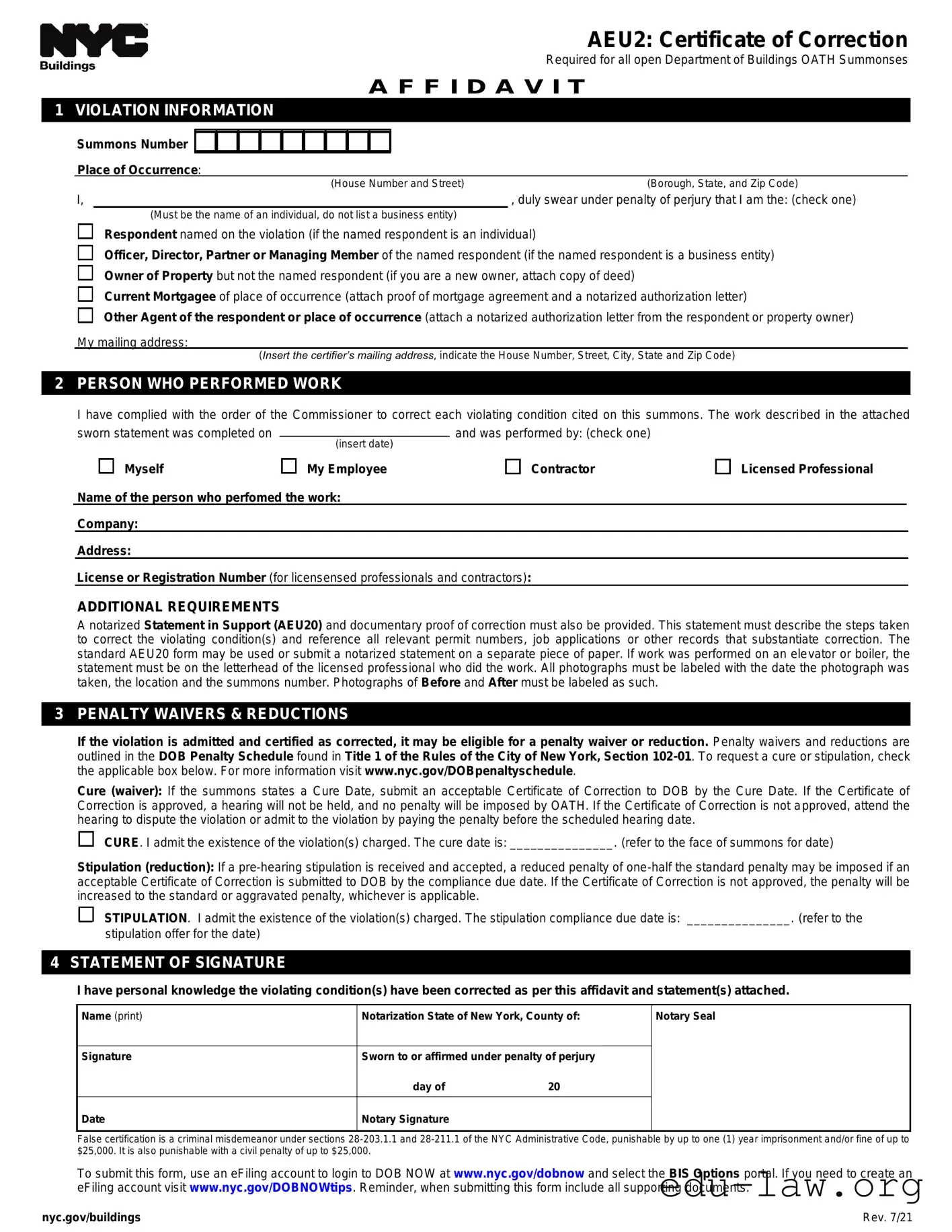
The Certificate of Correction form is an essential document for individuals and entities dealing with violations issued by the Department of Buildings (DOB) in New York City. This form is required for all open OATH summonses and serves as a formal declaration that the cited violations have been addressed. The process begins with the individual or representative, who must provide specific details about the violation, including the summons number and the location where the violation occurred. It is crucial that the person completing the form is authorized to do so, whether they are the respondent named on the violation, an officer of the business entity, or a property owner. The form requires a sworn affidavit confirming that corrective actions have been taken, along with the name and details of the person or contractor who performed the necessary work. Additional documentation, such as a notarized Statement in Support and photographs illustrating the conditions before and after the correction, must also accompany the submission. Notably, if the violation is admitted and the correction is certified, there may be opportunities for penalty waivers or reductions, depending on compliance with specific deadlines outlined in the DOB's penalty schedule. This form ultimately facilitates the resolution of violations while ensuring accountability and compliance with city regulations.

Sample - Certificate Of Correction Form

AEU2: Certificate of Correction

Required for all open Department of Buildings OATH Summonses

A F F I D A V I T

1 VIOLATION INFORMATION

Summons Number 

Place of Occurrence:

(House Number and Street)

(Borough, State, and Zip Code)

I,

(Must be the name of an individual, do not list a business entity)

, duly swear under penalty of perjury that I am the: (check one)

Respondent named on the violation (if the named respondent is an individual)

Officer, Director, Partner or Managing Member of the named respondent (if the named respondent is a business entity)

Owner of Property but not the named respondent (if you are a new owner, attach copy of deed)

Current Mortgagee of place of occurrence (attach proof of mortgage agreement and a notarized authorization letter)

Other Agent of the respondent or place of occurrence (attach a notarized authorization letter from the respondent or property owner)

My mailing address:

(Insert the certifier’s mailing address, indicate the House Number, Street, City, State and Zip Code)

2 PERSON WHO PERFORMED WORK

I have complied with the order of the Commissioner to correct each violating condition cited on this summons. The work described in the attached

sworn statement was completed on

 

and was performed by: (check one)

 

(insert date)

 

 

 

 

Myself

My Employee

Contractor

Licensed Professional

Name of the person who perfomed the work:

Company:

Address:

License or Registration Number (for licensensed professionals and contractors):

ADDITIONAL REQUIREMENTS

A notarized Statement in Support (AEU20) and documentary proof of correction must also be provided. This statement must describe the steps taken to correct the violating condition(s) and reference all relevant permit numbers, job applications or other records that substantiate correction. The standard AEU20 form may be used or submit a notarized statement on a separate piece of paper. If work was performed on an elevator or boiler, the statement must be on the letterhead of the licensed professional who did the work. All photographs must be labeled with the date the photograph was taken, the location and the summons number. Photographs of Before and After must be labeled as such.

3 PENALTY WAIVERS & REDUCTIONS

If the violation is admitted and certified as corrected, it may be eligible for a penalty waiver or reduction. Penalty waivers and reductions are outlined in the DOB Penalty Schedule found in Title 1 of the Rules of the City of New York, Section 102-01. To request a cure or stipulation, check the applicable box below. For more information visit www.nyc.gov/DOBpenaltyschedule.

Cure (waiver): If the summons states a Cure Date, submit an acceptable Certificate of Correction to DOB by the Cure Date. If the Certificate of Correction is approved, a hearing will not be held, and no penalty will be imposed by OATH. If the Certificate of Correction is not approved, attend the hearing to dispute the violation or admit to the violation by paying the penalty before the scheduled hearing date.

CURE. I admit the existence of the violation(s) charged. The cure date is: _______________. (refer to the face of summons for date)

Stipulation (reduction): If a pre-hearing stipulation is received and accepted, a reduced penalty of one-half the standard penalty may be imposed if an acceptable Certificate of Correction is submitted to DOB by the compliance due date. If the Certificate of Correction is not approved, the penalty will be increased to the standard or aggravated penalty, whichever is applicable.

STIPULATION. I admit the existence of the violation(s) charged. The stipulation compliance due date is: _______________. (refer to the stipulation offer for the date)

4 STATEMENT OF SIGNATURE

I have personal knowledge the violating condition(s) have been corrected as per this affidavit and statement(s) attached.

Name (print)

Notarization State of New York, County of:

Notary Seal

 

 

 

Signature

Sworn to or affirmed under penalty of perjury

 

 

day of

20

 

 

 

 

 

Date

Notary Signature

 

 

 

 

 

 

False certification is a criminal misdemeanor under sections 28-203.1.1 and 28-211.1 of the NYC Administrative Code, punishable by up to one (1) year imprisonment and/or fine of up to $25,000. It is also punishable with a civil penalty of up to $25,000.

To submit this form, use an eFiling account to login to DOB NOW at www.nyc.gov/dobnow and select the BIS Options portal. If you need to create an eFiling account visit www.nyc.gov/DOBNOWtips. Reminder, when submitting this form include all supporting documents.

nyc.gov/buildings

Rev. 7/21

File Specs

Fact Name Fact Description
Purpose The Certificate of Correction is required for all open Department of Buildings OATH Summonses in New York City.
Affidavit Requirement An individual must swear under penalty of perjury when completing the affidavit section of the form.
Eligibility The form can be submitted by various parties, including the respondent, property owner, or authorized agent.
Work Completion Verification The individual certifying the correction must indicate who performed the corrective work and provide relevant details.
Supporting Documents A notarized Statement in Support (AEU20) and documentary proof of correction are required to accompany the form.
Penalty Waivers If the violation is admitted and certified as corrected, it may qualify for a penalty waiver or reduction.
Compliance Dates Specific compliance due dates for cure or stipulation must be referenced from the summons or stipulation offer.
Notarization The form must be notarized, affirming that the information provided is accurate and complete.
Governing Law This form is governed by Title 1 of the Rules of the City of New York, Section 102-01.

Certificate Of Correction - Usage Guidelines

Filling out the Certificate of Correction form is a crucial step in addressing violations noted by the Department of Buildings. After completing this form, you will need to submit it along with any required supporting documents through the appropriate online portal. This ensures that your corrections are officially recognized and that you may be eligible for any penalty waivers or reductions.

  1. Begin by entering the Summons Number in the designated space.
  2. Provide the Place of Occurrence, including the house number, street, borough, state, and zip code.
  3. State your name in the section that begins with "I," ensuring it is the name of an individual, not a business entity.
  4. Indicate your relationship to the violation by checking the appropriate box (Respondent, Officer, Owner, Current Mortgagee, or Other Agent).
  5. Fill in your mailing address, including house number, street, city, state, and zip code.
  6. In the section titled PERSON WHO PERFORMED WORK, confirm that you have complied with the order to correct the violation.
  7. Enter the date the work was completed and check who performed the work (Yourself, Employee, Contractor, or Licensed Professional).
  8. Provide the name and address of the person or company that performed the work.
  9. If applicable, include the License or Registration Number for licensed professionals or contractors.
  10. Attach a notarized Statement in Support (AEU20) and any documentary proof of correction.
  11. Label all photographs with the date taken, location, and summons number, ensuring to differentiate between "Before" and "After" photos.
  12. Decide if you wish to request a Cure or Stipulation by checking the relevant box and filling in the corresponding dates.
  13. In the STATEMENT OF SIGNATURE section, print your name and sign where indicated.
  14. Have your signature notarized, ensuring the notary includes their seal and signature.

After you have completed the form, it is essential to gather all supporting documents and submit everything through the eFiling account on the DOB NOW portal. Make sure to follow the instructions carefully to ensure a smooth submission process.

Your Questions, Answered

What is a Certificate of Correction?

A Certificate of Correction is a formal document required by the New York City Department of Buildings (DOB) to confirm that a violation cited in an OATH summons has been corrected. This form must be submitted for all open summonses. It serves as a declaration from the responsible party, affirming that the necessary actions have been taken to address the cited issues.

Who can submit a Certificate of Correction?

The Certificate of Correction can be submitted by various individuals connected to the property or the violation. This includes the named respondent on the violation, an officer or director of a business entity, the property owner, the current mortgagee, or an authorized agent. It is essential that the individual signing the form has personal knowledge of the corrections made and can provide appropriate documentation to support their claims.

What supporting documents are needed with the Certificate of Correction?

When submitting the Certificate of Correction, several supporting documents must be included. A notarized Statement in Support, which outlines the steps taken to correct the violation, is required. This statement should reference relevant permit numbers or job applications. If the work involved specialized systems, such as elevators or boilers, the statement must be on the licensed professional's letterhead. Additionally, photographs showing the condition before and after the corrections must be labeled with the date, location, and summons number.

What happens if the Certificate of Correction is approved or denied?

If the Certificate of Correction is approved, and the violation is certified as corrected, it may be eligible for a penalty waiver or reduction. This means that no hearing will be held, and no penalty will be imposed. Conversely, if the Certificate is denied, the individual must attend a hearing to dispute the violation or admit to it and pay the penalty before the scheduled hearing date. It is crucial to ensure that all corrections are properly documented to avoid penalties.

Common mistakes

  1. Incorrect Summons Number: Failing to provide the correct summons number can lead to processing delays. Ensure that the number matches the violation notice exactly.

  2. Improper Certification: Individuals often mistakenly list a business entity instead of their own name. The form requires the name of an individual, not a company. This can result in rejection of the application.

  3. Missing Supporting Documents: Applicants frequently overlook the requirement to attach necessary documents. This includes proof of correction, a notarized statement, and any relevant photographs. Without these, the application may be deemed incomplete.

  4. Failure to Sign and Notarize: Neglecting to sign the affidavit or obtain notarization can invalidate the submission. A notarized signature is essential to affirm the truthfulness of the information provided.

Documents used along the form

When dealing with a Certificate of Correction form, several other documents may be necessary to ensure compliance and facilitate the correction process. Below is a list of commonly used forms and documents that accompany the Certificate of Correction.

  • Affidavit in Support (AEU20): This document provides a sworn statement detailing the steps taken to correct the violations listed in the summons. It must reference all relevant permits and job applications that substantiate the corrections made.
  • Proof of Correction Documentation: This includes any photographs or records that demonstrate the corrections were completed. Photographs should be labeled with the date taken, location, and summons number, showing before and after conditions.
  • Authorization Letter: If the individual submitting the Certificate of Correction is not the property owner, a notarized authorization letter from the owner or respondent is required. This letter grants permission for the agent to act on behalf of the property owner.
  • Mortgage Agreement Proof: For current mortgagees submitting the form, proof of the mortgage agreement is necessary. This should be accompanied by a notarized authorization letter, confirming the mortgagee's right to act on behalf of the property.
  • Contractor's License or Registration: If a licensed professional or contractor performed the work, their license or registration number must be included in the Certificate of Correction. This ensures that the work was completed by a qualified individual.

Including these documents with the Certificate of Correction is crucial for a smooth review process. Ensure that all forms are filled out accurately and submitted on time to avoid potential penalties or delays in compliance.

Similar forms

The Certificate of Compliance is a document that serves a similar purpose as the Certificate of Correction. It is used to confirm that all work required by a building permit has been completed according to the approved plans and applicable codes. Just like the Certificate of Correction, the Certificate of Compliance requires supporting documentation, including inspection reports and approvals from relevant authorities. This document helps ensure that the property meets safety and regulatory standards, providing peace of mind to owners and potential buyers alike.

The Affidavit of Correction is another document that closely resembles the Certificate of Correction. This affidavit is typically used to declare that specific violations have been remedied. It requires the individual to affirm under oath that the necessary corrective actions have been taken. Similar to the Certificate of Correction, the Affidavit of Correction must be accompanied by evidence supporting the claims made, such as photographs or receipts for work completed. This document is crucial for demonstrating compliance with local regulations and can help avoid penalties associated with outstanding violations.

The Notice of Violation (NOV) is also related to the Certificate of Correction, albeit from a different perspective. An NOV is issued when a property is found to be in violation of local codes or regulations. While the Certificate of Correction is a response to an NOV, it serves as proof that the cited issues have been addressed. The timely submission of a Certificate of Correction after receiving an NOV can lead to the dismissal of penalties and a more favorable outcome for property owners. Understanding the connection between these documents is essential for effective property management.

Finally, the Permit Application is another important document that shares similarities with the Certificate of Correction. When a property owner seeks to make changes or repairs, they must submit a permit application to the relevant authorities. This application outlines the intended work and must be approved before any modifications can begin. Like the Certificate of Correction, the permit application requires detailed information and supporting documents. Both documents emphasize the importance of adhering to local regulations and maintaining safety standards in property management.

Dos and Don'ts

When filling out the Certificate of Correction form, it's essential to follow certain guidelines to ensure your submission is accurate and complete. Here are six things you should and shouldn't do:

  • Do: Ensure that the name on the form is that of an individual, not a business entity.
  • Do: Attach all required supporting documents, such as proof of mortgage or a notarized authorization letter.
  • Do: Clearly label all photographs with the date, location, and summons number.
  • Do: Submit the Certificate of Correction by the Cure Date if applicable to avoid penalties.
  • Don't: Forget to notarize your affidavit and signature before submitting the form.
  • Don't: Leave out any relevant permit numbers or job applications that substantiate the correction.

Misconceptions

Misconceptions about the Certificate of Correction form can lead to confusion and errors in the process. Here are ten common misunderstandings:

  1. Only the property owner can file the form. While the owner often submits the Certificate of Correction, authorized agents can also file on behalf of the property owner.
  2. All violations can be corrected with this form. The Certificate of Correction is specific to certain violations issued by the Department of Buildings. Not all violations are eligible.
  3. Submitting the form guarantees a penalty waiver. While a properly submitted form may lead to a waiver, it does not guarantee one. Approval depends on the specifics of the case.
  4. Photographs are optional. Photographic evidence is required to demonstrate the correction of the violation. Before and after photos must be clearly labeled.
  5. Notarization is not necessary. A notarized statement is a critical part of the submission. Without it, the application may be rejected.
  6. The form can be submitted without supporting documents. All relevant supporting documents must accompany the Certificate of Correction to ensure a complete submission.
  7. There is no deadline for submission. The Certificate of Correction must be submitted by specific cure dates or compliance due dates outlined in the summons or stipulation.
  8. Once submitted, the process is automatic. After submission, applicants may need to attend a hearing if the form is not approved.
  9. Only one correction can be submitted at a time. Multiple corrections can be submitted, but each must be clearly documented and supported.
  10. Filing the form is the last step. After filing, it’s essential to monitor the approval status and respond to any requests from the Department of Buildings.

Understanding these misconceptions can help ensure a smoother process when dealing with violations and the Certificate of Correction form.

Key takeaways

When filling out and using the Certificate of Correction form, it is essential to follow specific guidelines to ensure compliance with the Department of Buildings. Here are key takeaways to consider:

  • Identify the Correct Summons: Ensure you have the correct summons number and details about the place of occurrence. This information is crucial for the form's validity.
  • Certifier's Identity: The individual filling out the form must be personally involved with the property or the violation. Do not list a business entity as the certifier.
  • Proof of Correction: Attach a notarized Statement in Support along with documentary proof that details the steps taken to correct the violation.
  • Work Documentation: Clearly identify who performed the correction work, and include their relevant credentials if applicable. This could be yourself, an employee, a contractor, or a licensed professional.
  • Photographic Evidence: Include labeled photographs showing the violation before and after correction. Each photo should indicate the date taken, location, and summons number.
  • Penalty Waivers: Understand that if the violation is certified as corrected, it may qualify for a penalty waiver or reduction. Familiarize yourself with the DOB Penalty Schedule for more details.
  • Submission Process: Use an eFiling account to submit the form through DOB NOW. Ensure all supporting documents are included to avoid delays or rejections.

By adhering to these guidelines, you can effectively navigate the Certificate of Correction process and ensure compliance with city regulations.