Homepage Fill in Your 13L 50 Template
Table of Contents

The 13L 50 form, officially titled "Exemption from Workers’ Compensation," is a critical document required by the Contractors State License Board (CSLB) in California for individuals seeking to obtain or renew their contractor's license. This form serves as a declaration that the applicant does not employ anyone in a manner that falls under California's workers’ compensation laws. To qualify for this exemption, applicants must complete the form accurately, including providing their business name, address, and contact information. Additionally, they must select one of two options regarding their employment status. It is important to note that certain contractors, specifically those with a C-39 Roofing classification or those who have employees, are not eligible for this exemption and must maintain a Certificate of Workers’ Compensation Insurance. The form requires a signature certifying the truthfulness of the information provided, with a clear understanding that any misrepresentation may lead to disciplinary action. Furthermore, the CSLB collects personal information through this form to ensure compliance with licensing standards and may disclose this information under specific legal circumstances. Applicants should be aware of these requirements and the implications of their certification when submitting the 13L 50 form.

Sample - 13L 50 Form

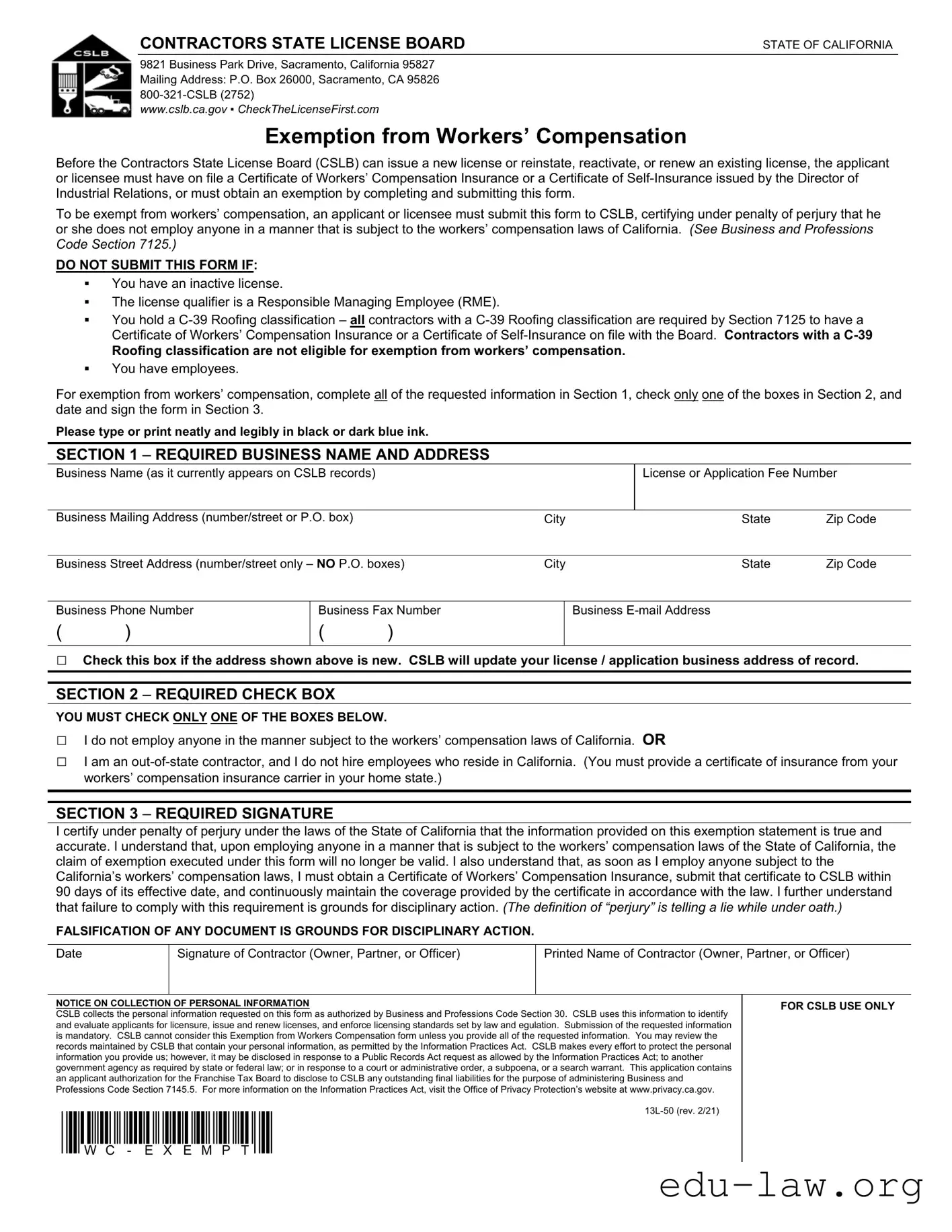
CONTRACTORS STATE LICENSE BOARD

STATE OF CALIFORNIA

9821 Business Park Drive, Sacramento, California 95827

 

Mailing Address: P.O. Box 26000, Sacramento, CA 95826

 

800-321-CSLB (2752)

 

www.cslb.ca.gov ▪ CheckTheLicenseFirst.com

 

Exemption from Workers’ Compensation

Before the Contractors State License Board (CSLB) can issue a new license or reinstate, reactivate, or renew an existing license, the applicant or licensee must have on file a Certificate of Workers’ Compensation Insurance or a Certificate of Self-Insurance issued by the Director of Industrial Relations, or must obtain an exemption by completing and submitting this form.

To be exempt from workers’ compensation, an applicant or licensee must submit this form to CSLB, certifying under penalty of perjury that he or she does not employ anyone in a manner that is subject to the workers’ compensation laws of California. (See Business and Professions Code Section 7125.)

DO NOT SUBMIT THIS FORM IF:

You have an inactive license.

The license qualifier is a Responsible Managing Employee (RME).

You hold a C-39 Roofing classification – all contractors with a C-39 Roofing classification are required by Section 7125 to have a Certificate of Workers’ Compensation Insurance or a Certificate of Self-Insurance on file with the Board. Contractors with a C-39

Roofing classification are not eligible for exemption from workers’ compensation.

You have employees.

For exemption from workers’ compensation, complete all of the requested information in Section 1, check only one of the boxes in Section 2, and date and sign the form in Section 3.

Please type or print neatly and legibly in black or dark blue ink.

SECTION 1 REQUIRED BUSINESS NAME AND ADDRESS

Business Name (as it currently appears on CSLB records)

 

Business Mailing Address (number/street or P.O. box)

City

License or Application Fee Number

State

Zip Code

Business Street Address (number/street only – NO P.O. boxes)

City

State

Zip Code

 

 

 

 

 

 

Business Phone Number

Business Fax Number

 

 

Business E-mail Address

 

(

)

(

)

 

 

 

 

Check this box if the address shown above is new. CSLB will update your license / application business address of record.

SECTION 2 REQUIRED CHECK BOX

YOU MUST CHECK ONLY ONE OF THE BOXES BELOW.

I do not employ anyone in the manner subject to the workers’ compensation laws of California. OR

I am an out-of-state contractor, and I do not hire employees who reside in California. (You must provide a certificate of insurance from your workers’ compensation insurance carrier in your home state.)

SECTION 3 REQUIRED SIGNATURE

I certify under penalty of perjury under the laws of the State of California that the information provided on this exemption statement is true and accurate. I understand that, upon employing anyone in a manner that is subject to the workers’ compensation laws of the State of California, the claim of exemption executed under this form will no longer be valid. I also understand that, as soon as I employ anyone subject to the California’s workers’ compensation laws, I must obtain a Certificate of Workers’ Compensation Insurance, submit that certificate to CSLB within 90 days of its effective date, and continuously maintain the coverage provided by the certificate in accordance with the law. I further understand that failure to comply with this requirement is grounds for disciplinary action. (The definition of “perjury” is telling a lie while under oath.)

FALSIFICATION OF ANY DOCUMENT IS GROUNDS FOR DISCIPLINARY ACTION.

Date

Signature of Contractor (Owner, Partner, or Officer)

Printed Name of Contractor (Owner, Partner, or Officer)

NOTICE ON COLLECTION OF PERSONAL INFORMATION

CSLB collects the personal information requested on this form as authorized by Business and Professions Code Section 30. CSLB uses this information to identify and evaluate applicants for licensure, issue and renew licenses, and enforce licensing standards set by law and egulation. Submission of the requested information is mandatory. CSLB cannot consider this Exemption from Workers Compensation form unless you provide all of the requested information. You may review the records maintained by CSLB that contain your personal information, as permitted by the Information Practices Act. CSLB makes every effort to protect the personal information you provide us; however, it may be disclosed in response to a Public Records Act request as allowed by the Information Practices Act; to another government agency as required by state or federal law; or in response to a court or administrative order, a subpoena, or a search warrant. This application contains an applicant authorization for the Franchise Tax Board to disclose to CSLB any outstanding final liabilities for the purpose of administering Business and Professions Code Section 7145.5. For more information on the Information Practices Act, visit the Office of Privacy Protection’s website at www.privacy.ca.gov.

FOR CSLB USE ONLY

*WC-EXEMPT*

13L-50 (rev. 2/21)

File Specs

Fact Name Details
Purpose The 13L 50 form is used to request an exemption from workers' compensation requirements for contractors in California.
Governing Law This form is governed by the Business and Professions Code Section 7125 in California.
Eligibility Applicants must not employ anyone subject to California’s workers' compensation laws to qualify for exemption.
Submission Requirement Applicants must complete all sections of the form and submit it to the Contractors State License Board (CSLB).
Ineligibility Conditions Do not submit this form if you have an inactive license, are a Responsible Managing Employee, or hold a C-39 Roofing classification.
Personal Information Collection CSLB collects personal information as authorized by Business and Professions Code Section 30 to evaluate applicants.
Consequences of Falsification Providing false information on this form can lead to disciplinary action against the contractor.

13L 50 - Usage Guidelines

After completing the 13L 50 form, submit it to the Contractors State License Board (CSLB). Ensure that all information is accurate and complete, as the CSLB will review it before granting an exemption from workers’ compensation. Follow the steps below to fill out the form correctly.

  1. Write your Business Name as it appears on CSLB records in Section 1.
  2. Fill in your Business Mailing Address (number/street or P.O. box), City, State, and Zip Code.
  3. Provide your Business Street Address (number/street only, no P.O. boxes), City, State, and Zip Code.
  4. Enter your Business Phone Number, Business Fax Number, and Business E-mail Address.
  5. If your address has changed, check the box indicating that the address shown is new.
  6. In Section 2, check only one of the boxes: either I do not employ anyone or I am an out-of-state contractor.
  7. Proceed to Section 3. Certify that the information is true by signing and dating the form.
  8. Print your name clearly as the Contractor (Owner, Partner, or Officer) below your signature.

Your Questions, Answered

What is the purpose of the 13L 50 form?

The 13L 50 form is used to request an exemption from California's workers' compensation insurance requirements for contractors. Before the Contractors State License Board (CSLB) can issue or renew a license, applicants must either provide proof of workers' compensation insurance or submit this form to certify that they do not employ anyone in a manner subject to the state's workers' compensation laws.

Who needs to fill out the 13L 50 form?

What information is required in Section 1 of the form?

Section 1 requires you to provide your business name as it appears on CSLB records, your business mailing address, and your business street address. You will also need to include your business phone number, fax number, and email address. If your address has changed, you can indicate that by checking the appropriate box.

What are the options in Section 2 of the form?

In Section 2, you must check one box to indicate your employment status. The options are: 1) certifying that you do not employ anyone in a manner subject to California's workers' compensation laws, or 2) stating that you are an out-of-state contractor and do not hire employees who reside in California. If you choose the second option, you must also provide a certificate of insurance from your workers' compensation insurance carrier in your home state.

What must I do after signing the form?

After signing the form, you must ensure that you do not employ anyone in a manner that requires workers' compensation coverage. If you do hire someone in such a manner, you must obtain a Certificate of Workers' Compensation Insurance and submit it to CSLB within 90 days of its effective date. Continuous maintenance of this coverage is required by law.

What happens if I provide false information on the form?

Providing false information on the 13L 50 form can have serious consequences. It is considered perjury, which is a criminal offense. Additionally, any falsification of documents can lead to disciplinary action from the CSLB, including the potential revocation of your license.

Can I submit the 13L 50 form if my license is inactive?

No, you cannot submit the 13L 50 form if your license is inactive. The form is only applicable for active applicants or licensees who meet the exemption criteria. If your license is inactive, you will need to address that status before applying for an exemption.

How does CSLB protect my personal information?

CSLB collects personal information as authorized by law to process your application and maintain licensing standards. While they make efforts to protect your information, it may be disclosed under specific circumstances, such as in response to public records requests or legal orders. You can review your personal information maintained by CSLB, as permitted by the Information Practices Act.

What should I do if my business address changes after submitting the form?

If your business address changes after you submit the form, you should notify CSLB as soon as possible. You can update your business address by completing the appropriate sections in the form and indicating that the address is new. Keeping your information current is crucial for maintaining your license status.

Where can I find more information about the 13L 50 form?

For more information about the 13L 50 form and the exemption process, you can visit the CSLB website at www.cslb.ca.gov or contact them directly at 800-321-CSLB (2752). They provide resources and guidance to help you understand the requirements and process related to workers' compensation exemptions.

Common mistakes

  1. Failing to provide a valid business name. The business name must match exactly with what is on file with the Contractors State License Board (CSLB).

  2. Not checking the appropriate box in Section 2. Applicants must select only one box, either certifying they do not employ anyone subject to workers' compensation laws or indicating they are an out-of-state contractor.

  3. Omitting required signatures. The form must be signed and dated by the contractor, owner, partner, or officer. Without a signature, the application is incomplete.

  4. Using illegible handwriting. The form must be filled out in black or dark blue ink, and all information should be clear and legible to avoid processing delays.

  5. Submitting the form when ineligible. Individuals with an inactive license, those who employ anyone, or contractors with a C-39 Roofing classification cannot use this exemption form.

  6. Failing to provide contact information. Missing phone numbers, email addresses, or other contact details can lead to communication issues regarding the application.

Documents used along the form

When applying for an exemption from workers' compensation using the 13L 50 form, several other documents may also be necessary. Each of these documents serves a specific purpose in the licensing process. Below is a brief overview of these forms and documents.

  • Certificate of Workers’ Compensation Insurance: This document proves that a contractor has active workers' compensation insurance. It is required for those who do not qualify for an exemption.
  • Certificate of Self-Insurance: This certificate indicates that a contractor has been authorized to self-insure their workers' compensation liability. It must be issued by the Director of Industrial Relations.
  • Application for Contractor's License: This is the primary application form that contractors must complete to obtain a license. It includes details about the business and its owners.
  • Business Entity Registration: If the contractor operates as a corporation or LLC, they must submit proof of registration with the Secretary of State. This document verifies the legal status of the business entity.
  • Tax Identification Number (TIN): This number is necessary for tax purposes and must be provided to the Contractors State License Board as part of the application process.
  • Financial Statement: This document may be required to demonstrate the financial stability of the contractor. It typically includes balance sheets and income statements.

Understanding these documents can simplify the licensing process and help ensure compliance with California's laws. Having all necessary paperwork ready can save time and reduce stress when applying for a contractor's license.

Similar forms

The 13L 50 form is similar to the Certificate of Workers’ Compensation Insurance, which is a document that contractors must submit to prove they have coverage for their employees. This certificate serves as evidence that the contractor is compliant with California's workers’ compensation laws. It ensures that in the event of a workplace injury, the contractor has the necessary insurance to cover medical expenses and lost wages for their employees. Unlike the 13L 50, which is used to claim an exemption, this certificate confirms that the contractor has employees and is actively covered under a workers’ compensation policy.

Another similar document is the Certificate of Self-Insurance. This certificate is issued by the Director of Industrial Relations and allows certain contractors to self-insure their workers’ compensation liabilities. Like the 13L 50 form, it serves to demonstrate compliance with California’s workers’ compensation laws. However, while the 13L 50 is for those who do not employ anyone subject to these laws, the Certificate of Self-Insurance indicates that the contractor has opted to take on the financial responsibility for any potential claims rather than purchasing a traditional insurance policy.

The Business License Application is another relevant document. This application is necessary for contractors to legally operate their business in California. It requires information about the business and its owners, similar to the information required on the 13L 50 form. Both documents aim to ensure that the contractor is legitimate and compliant with state regulations. However, the Business License Application does not address workers’ compensation specifically, while the 13L 50 form focuses solely on exemptions from that requirement.

The Employer’s Report of Occupational Injury or Illness is also comparable. This document is used to report any workplace injuries or illnesses to the appropriate authorities. It plays a critical role in the workers’ compensation process, similar to the 13L 50 form, which is part of the compliance process for contractors. While the 13L 50 is used to claim exemption from coverage, the Employer’s Report is used after an incident occurs, ensuring that proper procedures are followed for any injuries that do happen.

The Statement of Information is another document that shares similarities with the 13L 50 form. It provides essential information about a business entity to the state, including ownership details and business structure. Both documents require accurate and truthful information to be submitted to the state. However, the Statement of Information focuses more on the business's operational aspects, while the 13L 50 specifically addresses workers’ compensation exemptions.

The Application for a Contractor’s License also bears resemblance to the 13L 50 form. This application is necessary for individuals seeking to become licensed contractors in California. It collects information about the applicant’s business and qualifications, much like the 13L 50. However, the key difference lies in the purpose: the application is about obtaining a license, while the 13L 50 is about certifying an exemption from workers’ compensation.

The Declaration of Exemption from Workers’ Compensation Insurance is another document that aligns closely with the 13L 50 form. This declaration is often used by small business owners who do not have employees and wish to formally state their exemption from workers’ compensation requirements. Like the 13L 50, it requires the business owner to affirm that they do not employ anyone subject to these laws. Both documents serve to protect business owners from unnecessary insurance costs.

The Notice of Compliance is a document that contractors may receive from the state after submitting necessary forms, including the 13L 50. This notice confirms that the contractor is compliant with state regulations regarding workers’ compensation. It serves as a record that the contractor has met their obligations, similar to how the 13L 50 form is used to assert an exemption from those obligations.

Lastly, the Annual Report for Contractors is another document that shares some similarities. This report is required to keep the contractor’s license active and includes updates on the business's status. Like the 13L 50 form, it is essential for maintaining compliance with state regulations. However, the Annual Report focuses on the overall operation of the business, while the 13L 50 specifically addresses the workers’ compensation aspect.

Dos and Don'ts

When filling out the 13L 50 form, it is important to follow certain guidelines to ensure your submission is successful. Here is a list of things you should and shouldn't do:

  • Do ensure that your business name matches exactly as it appears on CSLB records.
  • Do complete all required sections of the form, including your business address and contact information.
  • Do check only one box in Section 2 to indicate your employment status accurately.
  • Do sign and date the form in Section 3, certifying that the information is true.
  • Do use black or dark blue ink and write neatly to enhance readability.
  • Don't submit the form if you have an inactive license.
  • Don't check both boxes in Section 2; doing so may lead to a rejection of your application.
  • Don't forget to provide a Certificate of Workers’ Compensation Insurance if you hold a C-39 Roofing classification.
  • Don't leave any required fields blank, as incomplete forms will not be processed.

Following these guidelines will help ensure that your application is processed smoothly. Taking the time to carefully complete the form can save you from potential delays or complications.

Misconceptions

Here are nine common misconceptions about the 13L 50 form:

  1. Anyone can use the form to avoid workers' compensation insurance. This form is only for those who do not employ anyone in a manner subject to California's workers' compensation laws.
  2. Submitting the form is optional for all contractors. In fact, it is mandatory for those seeking an exemption from workers' compensation if they meet the criteria outlined by the Contractors State License Board (CSLB).
  3. Contractors with an inactive license can submit this form. Contractors with an inactive license are not eligible to submit the 13L 50 form.
  4. All contractors can qualify for exemption. Only certain contractors, specifically those who do not have employees and do not fall under specific classifications, can qualify for exemption.
  5. Once the form is submitted, the exemption is permanent. The exemption is valid only as long as the contractor does not employ anyone subject to the workers' compensation laws. If employment changes, the exemption is no longer valid.
  6. Out-of-state contractors do not need to provide any documentation. Out-of-state contractors must provide a certificate of insurance from their workers' compensation insurance carrier in their home state.
  7. It’s acceptable to submit the form without all required information. The CSLB cannot consider the exemption form unless all requested information is provided.
  8. The form can be signed by anyone in the company. The form must be signed by the contractor, owner, partner, or officer of the business.
  9. Falsifying information on the form has no serious consequences. Falsification is grounds for disciplinary action, which can have significant repercussions for the contractor.

Key takeaways

When filling out and using the 13L 50 form for exemption from workers’ compensation in California, there are several important points to keep in mind. Below are key takeaways that can help ensure the process goes smoothly.

  • The 13L 50 form is required for contractors seeking exemption from workers’ compensation insurance.
  • Applicants must certify that they do not employ anyone in a manner subject to California's workers’ compensation laws.
  • Do not submit this form if you have an inactive license or if the license qualifier is a Responsible Managing Employee (RME).
  • If you hold a C-39 Roofing classification, you are not eligible for exemption and must have workers’ compensation insurance on file.
  • Complete all requested information in Section 1, including your business name and address.
  • In Section 2, you must check only one box indicating your employment status related to California’s workers’ compensation laws.
  • It is crucial to sign and date the form in Section 3, certifying the accuracy of the information provided.
  • Keep in mind that falsifying any information on this form can lead to disciplinary action.
  • Once you employ anyone subject to these laws, you must obtain and submit a Certificate of Workers’ Compensation Insurance to CSLB within 90 days.

Understanding these key points can help streamline the process of completing the 13L 50 form and ensure compliance with California regulations.